Коллекторная разводка труб водоснабжения в частном доме. Важность правильного проектирования
- Коллекторная разводка труб водоснабжения в частном доме. Важность правильного проектирования
- Диаметр трубы для водопровода в частном доме. Диаметральные размеры труб водоснабжения частного дома
- Схема водопровода в частном доме от скважины. Водоснабжение частного дома из колодца и скважины: прокладка труб
- Водопровод в частном доме схема. Схема подачи воды в частный дом, проектирование водоснабжения
- Разводка труб в ванной в частном доме. Рекомендации по разработке схемы разводки труб
- Водопровод в частном доме своими руками из полипропилена. Разновидности разводки для водоснабжения
Коллекторная разводка труб водоснабжения в частном доме. Важность правильного проектирования
Задача по созданию водопроводной системы в квартире выглядит простой. Нужно доставить воду от центрального стояка к каждой точке разбора. Список таких точек в разных квартирах может быть очень разным. Упрощенный вариант состоит из пары умывальников (на кухне и в ванной комнате), а также унитаза и ванны.
Но современные реалии диктуют более сложные схемы. Практически в каждой квартире сегодня найдутся дополнительные бытовые устройства, для работы которых также необходима водопроводная вода. Практически везде имеется автоматическая стиральная машина. Все больше хозяек стремятся дополнить свою кухню еще одной машиной — посудомоечной.
Диаметр трубы для водопровода в частном доме. Диаметральные размеры труб водоснабжения частного дома
Выбирая диаметр труб для монтирования водопровода в частном доме, рекомендуется учитывать следующие характеристики:
- силу водяного напора. Когда он слаб, диаметр труб должен превышать стандартный. Слабость напора+узенькие трубы= слабая струя из кранов;
- общая длина водопроводной системы;
- сколько в доме водоразборных точек: диаметр труб находится в прямой зависимости от их количества;
- то же самое относится к поворотным точкам трубопровода — вообще любая из них немного способствует понижению давления. У вас там «Критский лабиринт»? Значит, диаметр — на любом отрезке трубопровода — водопроводной трубы для частного дома должен быть с некоторым запасом.

Следует учесть также температуру воды — трубы для ХВС и ГВС можно приобрести одинаковые по диаметру, но вот стенки «горячих» непременно должны быть толще.
Как длина водопровода влияет на диаметр труб
Общее правило: чем длинней, тем больше! Итак, как грамотно выбрать диаметр трубы для домашнего водопровода, не вдаваясь в головоломные вычисления? В большинстве случаев оправдывают себя стандартные рекомендации:
- короткий трубопровод меньше 10 м — 20 мм;
- меньше 30 м — минимум 25 мм;
- если трубопровод длинный — больше 30 м — оптимальным решением будет 32 мм.
Какой длины нужны сами отрезки труб для монтирования? Обычно она составляет от 4 до 15 м, смотря какая у вас схема прокладки.
Почему диаметр труб определяет пропускную способность водопровода
Здесь все просто: чем более узка труба, тем меньше жидкости в ней прогоняется за некий временной промежуток. Примеры:
- 25-миллиметровые прогоняют через себя до 30 л/мин;
- 32-миллиметровые — до 50 л/мин.
Учтите также пропускную способность кранов: стандартный в ванной комнате или кухонный способен прогнать не более 5 л/мин. Следовательно, величина диаметра прямо зависит от расхода воды.
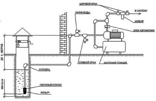
Схема водопровода в частном доме от скважины. Водоснабжение частного дома из колодца и скважины: прокладка труб
Любая из описанных схем водоснабжения частного дома реализуется при помощи насоса, подающего воду к дому. При этом должен быть сооружен трубопровод, соединяющий колодец или скважину с насосной станцией или накопительным баком. Существуют два варианта укладки труб — только для летнего использования или для всесезонного (зимнего).

Участок горизонтальной трубы может находится или ниже глубины промерзания грунта или его нужно утеплять
При устройстве летнего водопровода (для дачи) трубы можно укладывать поверху или в неглубокие канавы. При этом нужно не забыть в самой нижней точке сделать кран — сливать воду перед зимой, чтобы в мороз замерзшая вода не разорвала систему. Или сделать систему разборной — из труб, которые можно скатывать на резьбовых фитингах — а это — трубы ПНД. Тогда осенью все можно разобрать, скрутить и уложить на хранения. Весной все вернуть.
Прокладка труб водоснабжения по участку для зимнего использования требует больших затрат времени, сил и денег. Даже в самые сильные морозы они не должны замерзать. И решений два:
- уложить их ниже глубины промерзания грунта;
- закопать неглубоко, но обязательно обогреть или утеплить (а можно и то, и другое).
Глубокое заложение
Глубоко закапывать водопроводные трубы имеет смысл, если он промерзает не более чем на 1,8 м. Копать придется еще на 20 см глубже, а потом на дно насыпать песок, в который укладывать трубы в защитной оболочке: они будут подвергаться солидной нагрузке, ведь сверху почти двухметровый слой грунта. Раньше в качестве защитной оболочки использовали асбестовые трубы. Сегодня есть еще пластиковый гофорорукав. Он дешевле и легче, проще укладывать в него трубы и придавать нужную форму.

При укладке трубопровода ниже глубины промерзания приходится копать глубокую траншею длинной на всю трассу. Зато водоснабжение частного дома из колодца и скважины не будет замеразть зимой
Хоть подобный метод требует больших затрат труда, его используют, потому что он надежен. Во всяком случае, участок водопровода между колодцем или скважиной и домом стараются уложить именно ниже глубины промерзания. Трубу выводят через стенку колодца ниже глубины промерзания грунта и в траншее ведут под дом, там поднимают выше. Самое проблемное место — выход из земли в дом, можно дополнительно подогревать электрическим греющим кабелем. Он работает в автоматическом режиме поддерживая заданную температуру нагрева — работает только в том случае, если температура ниже заданной.
При использовании в качестве источника воды скважины и насосной станции, устанавливают кессон. Его закапывают ниже глубины промерзания грунта, в нем же ставят оборудование — насосную станцию. Обсадную трубу обрезают так, чтобы она была выше дна кессона, и трубопровод выводят через стенку кессона, тоже ниже глубины промерзания.

Прокладка труб водоснабжения в частном доме из скважины при устройстве кессона
Закопанный в земле водопровод сложно ремонтировать: придется окапывать. Потому постарайтесь заложить цельную трубу без стыков и сварных швов: именно они дают больше всего проблем.
Близко к поверхности
При неглубоком заложении земляных работ меньше, но в этом случае имеет смысл сделать полноценную трассу: траншею выложить кирпичом, тонкими бетонными плитами и т.п. На этапе строительства затраты значительные, но эксплуатация удобная, ремонт и модернизация — без проблем.
В этом случае трубы водоснабжения частного дома из колодца и скважины поднимаются до уровня траншеи и там выводятся. Укладываются они в теплоизоляции, предотвращающей их замерзание. Для страховки их можно еще и греть — использовать греющие кабели.
Один практический совет: если от погружного или скважинного насоса к дому идет кабель электропитания, его можно упрятать в защитную оболочку из ПВХ или др. материала, а потом прикрепить к трубе. Крепят через каждый метр куском скотча. Так вы будете уверены, что электрическая часть у вас в безопасности, кабель не перетрется и не порвется: при подвижках грунта нагрузка будет на трубе, а не на кабеле.
Герметизация входа в колодец
При организации водоснабжение частного дома из колодца своими руками, обратите внимание на заделку места выхода водопроводной трубы из шахты. Именно отсюда чаще всего грязная верховодка попадает внутрь.
Водопровод в частном доме схема. Схема подачи воды в частный дом, проектирование водоснабжения
начинается с составления проекта. На данном этапе необходимо учитывать, какой вид будет выбран, периодичность использования, а также источник воды, количество точек водоотдачи и применяемое оборудование.
Схема водоснабжения будет принципиально отличаться, в зависимости от того, какое насосное оборудование выбрано для использования. Например, это может быть погружной насос, который погружается в воду и оснащен специальной автоматикой. Второй вариант – насосная станция или поверхностный насос. Чаще всего устанавливается в доме, подсобном помещении или кессоне. Третий вариант – использование гидроаккумуляторов.
Последний вариант считается наиболее предпочтительным, так как позволяет значительно уменьшить количество включений-выключений насосного оборудования, не допускать гидроударов, тем самым существенно продлевая срок службы.
Какие факторы надо учитывать при проектировании
Немаловажную роль играют способы очистки и фильтрации воды, которые планируется применять. Это может быть простое обустройство фильтровального слоя на дне скважины и использование простых фильтров, а может установка фильтровальных систем.
Еще одним важным фактором, который обязательно следует учитывать при составлении схемы водоснабжения частного дома – каким образом будет осуществляться подача горячей воды.
Кроме этого обязательно учитывают глубину залегания труб водопровода, что зависит от глубины промерзания грунта в конкретном регионе.
Менее затратным вариантом реализации автономного водоснабжения в частный дом является подача воды из колодца. Обусловлено это меньшей стоимостью работ по рытью колодца, продолжительным сроком его службы. Возможностью использования менее дорогостоящего насосного оборудования.
Схемы подключения
Наиболее распространенная схема водоснабжения – с последовательным подключением. Особенно актуально для помещений с небольшим количеством приборов и оборудования, которое работает от системы водоснабжения. Основными плюсами такого варианта являются простота проведения монтажных работ, относительно небольшой расход труб и фитингов. Минусами является уменьшение давления в трубопроводе, в конечных точках, сложность определить место протечки, нельзя отключать отдельную трубу.
Альтернативой последовательной схеме является коллекторное подключение. Главным достоинствами является эстетичность (скрытая прокладка), высокая надежность, что обусловлено минимальным количеством соединений, плюс простой и легкий доступ к ним. Кроме этого, такая система монтажа дает возможность регулировки отдельно каждого элемента системы и сантехнического прибора. Недостатки – более дорогая стоимость работ и необходимость использования большего количества труб и комплектующих.
Особенности горячего водоснабжения частного дома
Для того, чтобы организовать горячее водоснабжение частного дома используют электрические бойлеры, газовые колонки, и котлы на твердом или жидком топливе. Каждый из этих вариантов имеет свои особенности, плюсы и минусы. В последнее время все более популярными становятся твердотопливные котлы на пеллетах, шелухе, опилках и прочих отходах деревообрабатывающего или бумажного производства.
Разводка труб в ванной в частном доме. Рекомендации по разработке схемы разводки труб
Основное правило качественной разводки труб - обеспечение максимальной эффективности работы санузла, как в комплексе, так и по отдельности.

Правильная разводка труб в ванной способна превратить ее в любимое место для получения комфорта и расслабления.
Перед тем как разработать схему, следует определиться с месторасположением всех изделий сантехнического направления.
В случае, размещения туалета в отдельной комнате, следует учесть, что разводка труб в ванной напрямую связана с туалетом, поэтому рекомендуется делать ее совместно.
При монтаже труб нужно учесть наличие:
- унитаза,
- ванны или душевой кабинки,
- бойлера,
- раковины,
- насоса и т.д.
Для осуществления разводки труб, практически во всех помещениях ванной, схема разводки является однотипной. Она состоит из труб:
- горячего водоснабжения,
- подачи холодной воды,
- канализации.
Основным элементом схемы выступает наличие центрального трубопровода, от которого производится дальнейшая прокладка труб. Все приборы, к которым подключают водоснабжение, требуют подведения трех основных труб: подачи горячей и холодной воды, и отведения отходных вод, то есть канализации. Практически все три вида труб устанавливают вблизи друг друга, хотя точки для их подключения бывают разными.

Во время проведения разводки труб в частном доме, или в квартире с осуществлением горячего водоснабжения через водонагревательные приборы, основная точка подачи горячей воды не совпадает с выходной точкой холодного водоснабжения.
Водопровод в частном доме своими руками из полипропилена. Разновидности разводки для водоснабжения
Водопровод в доме своими руками из полипропилена может быть монтирован на основе последовательной разводки. Она еще называется тройниковой системой и предусматривает последовательное подведение трубопровода от главной магистрали к точкам водопотребления. От стояка с вводным запорным устройством должно отходить две трубы, одна из которых предназначается для горячей, тогда как другая – для холодной воды. От них с использованием тройников организуются отводы ко всем точкам потребления. В качестве основного плюса такой технологии выступает экономичность, ведь будет применяться минимальное количество материалов, кроме того, мастеру удастся завершить работы без всяких проблем.
Среди недостатков можно выделить зависимость сантехнических устройств друг от друга. Это указывает на то, что если понадобится отключить один прибор, придется перекрывать систему. Данный негативный фактор можно нейтрализовать методом монтажа запорной арматуры на отдельные ветки. Помимо прочего, при одновременном задействовании нескольких точек водопотребления могут возникнуть перепады давления. Тройник выступает в качестве достаточно объемного узла, поэтому не всегда есть возможность найти для него место в санузле. Если вы решили обустроить водопровод из полипропилена своими руками на даче, то следует выбрать именно последовательную разводку, так как этот вариант является наиболее экономичным и потребует наименьшего количества материала.