Разводка канализации в доме без подвала своими руками. Особенности прокладки канализационного трубопровода
- Разводка канализации в доме без подвала своими руками. Особенности прокладки канализационного трубопровода
- Как дешево сделать канализацию в частном доме. Как сделать канализацию в частном доме своими руками
- Как сделать канализацию в готовом доме. Фасонные элементы
- Простая канализация в частном доме. Как сделать канализацию в частном доме?
- Канализация в частном доме схема. Как сделать схему канализации в доме своими руками
- Канализация в частном доме септик. Лучшие септики для частного дома без откачки
Разводка канализации в доме без подвала своими руками. Особенности прокладки канализационного трубопровода
Процесс прокладки трубы от дома до септика или выгребной ямы только выглядит таким простым. На самом деле, он достаточно сложный. Здесь существуют важные правила подвода канализации, которые необходимо обязательно учитывать при проектировании и монтаже.
К примеру, большинство людей выполняют монтаж канализационной системы под фундаментом. Это актуально и так можно делать, но лишь в тех случаях, где основание не слишком глубокое, а септик или яма будут не слишком удалены от дома.
Представьте простой пример. Основание коттеджа расположено на глубине до полуметра. Септик установлен в 3 метрах. Так как работа системы очистки стоков обусловлена монтажом трассы с уклоном, вход в яму должна быть расположен не выше 60 см.
Это применимо, если яма достаточно глубокая. Выгребная яма эффективно работает на глубинах, которая ниже сточной трубы. Когда уровень стоков вырастет, сточные воды могут заполнить сливную трубу и там может образоваться пробка.
Глубокое залегание канализации позволяет значительно снизить риск промерзания. Снег зимой это тоже утеплитель. Если сочетать снег с полуметровым слоем почвы, то это надежно защитит систему от промерзания.
Если фундамент глубинный, тогда под ним не слишком рационально, а порой даже невозможно прокладывать канализацию. Здесь лучше еще на этапе заливки основания оставить отверстия для труб.
Если по каким-либо причинам не получится использовать выгребную яму, тога отверстие в основании дома нужно делать максимально близко к краю грунта. Чтобы исключить риск промерзаний, можно применить утеплительные материалы.
Как дешево сделать канализацию в частном доме. Как сделать канализацию в частном доме своими руками
Жить в собственном доме – это прекрасно, особенно если создать при этом наиболее комфортные условия для всей семьи. Туалет на улице и вода из колодца уже мало кого прельщают. Важным пунктом, поэтому в данном вопросе является устройство канализации.
При этом необходимо учесть, что работы по проектированию, монтажу, не говоря уже о цене на материалы, могут обойтись в копеечку.
Внутренняя канализация своими руками в частном доме – это вполне реально, если все сделать правильно, руководствуясь настоящими рекомендациями.
Плюсы налицо – во-первых, точно будете знать, что все сделано как нужно, во вторых, сэкономите значительные средства, например, на приобретение более дорогих и качественных предметов обустройства.
Наиболее известные методы проведения канализации в доме
Система канализации в частном доме своими руками в основном будет зависеть от того, сколько сил и средств вы готовы в это вложить. Варианты предлагаются от самых незатейливых до наиболее трудоемких:
Выгребная яма

Выгребная яма
Накопительный бак

Накопительный бак
Септик

Септик в земле
Канализационная схема будет зависеть от планировки и величины дома. Специалисты советуют разместить поближе друг к другу помещения, предусматривающие так или иначе поступление воды (ванная комната, кухня, туалет и пр.). Идеальный способ размещения – когда все оборудование задействовано через один коллектор, и сточные воды прямиком отправляются в септик или выгребную яму.
Когда дом большой, и вариантов с отводом и подводом воды несколько, да еще и когда данные помещения находятся не близко друг к другу, монтаж канализации своими руками в частном доме лучше всего проводить с учетом использования минимум двух (а то и более) септиков или выгребных ям. Понадобиться также установить стояки, если здание имеет два и более этажей, на каждом из которых расположены санузлы или ванные комнаты.
Общие виды канализации – кратко о главном
- Яма для стока воды и отходов – дешево и сердито. Копают яму на расстоянии от дома в 5-20 м. расчет при этом на одного человека составляет 0,7м3. Для обкладывания стен используют кольца из бетона или кирпичи, которые затем герметизируются битумом, а дно бетонируют.
О том, как устроить канализацию своими руками в частном доме вы можете посмотреть на этом
Когда основные работы закончены, необходимо сделать люк для последующих канализационных очисток. Имеет смысл данная схема, если проживание в доме ограничено по времени.
- Можно оборудовать некую закрытую емкость (специальный бак), который будет служить накопителем для поступающих по трубам отходов со всех помещений. Масштаб зависит от количества жильцов в доме. Существенный недостаток – придется часто чистить.
Как сделать канализацию в готовом доме. Фасонные элементы
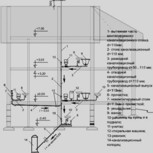
Для подключения трубопроводов от сантехнических приборов к стояку необходимы стыковочные детали (фасонные части), в первую очередь переходники с диаметра 50 мм на 110 мм, а также с несколькими отводами при подсоединении двух труб. Для снижения вероятности засоров, шумов входные и выходные патрубки соединительных деталей располагают под разными углами. Поэтому прокладка канализации в частном доме невозможна без применения различного типа тройников, крестовин с разными углами входных и выходных патрубков.
Также ни одна канализационная магистраль внутри дома не может быть проложена строго по прямой, для изменения ее направления используют отводы с косыми углами.
В любой канализации всегда предусмотрена возможность прочистки трубопровода в случае засорения, поэтому в стояке и на длинных участках труб обязательно помещают фасонные детали с окошками, так называемая канализационная ревизия , через которые можно проводить очистные работы.
Помимо перечисленных элементов, при монтаже используют вспомогательные детали, облегчающие прокладку магистрали и врезку в трубопровод тройников, к ним относят обычные цилиндрические и компрессионные муфты с удлиненным раструбом.
Большинство фасонных элементов рассчитаны на переход с 50 мм диаметра на 100 мм, но к канализации также подключают сливные шланги и от посудомоечных и стиральных машин меньшего диаметра. В этом случае используют переходники других размерных параметров — обычно тройники с 32 мм боковым отводом и прямым 50 мм проходом.
Простая канализация в частном доме. Как сделать канализацию в частном доме?
Обеспечение комфорта и качественной жизни в загородном доме является важным моментом для любого владельца такой постройки. Одним из факторов, которые позволяют обеспечить комфортную жизнь, является удобство оттока использованной воды и продуктов жизнедеятельности. Правильно рассчитанная на стадии проектирования и впоследствии правильно построенная канализация в частном доме будет залогом длительной эксплуатации, при которой не возникнет никаких проблем. Подобную конструкцию можно создать своими руками, если подойти к вопросу с максимальной ответственностью.

Основные требования
Во избежание каких-либо проблем в процессе создания канализации в собственном доме, лучше всего максимально следовать в данном процессе всем требованиям и стандартам, что расписаны в нормативной документации – СНиП. В этом случае все точно будет функционировать безотказно на протяжении длительного периода времени.
В какой угодно постройке, где проложен водопровод и есть забор воды, должна быть выполнена система, которая будет выводить стоковые массы. Механизмы водоотвода должны быть созданы и на участках. В целом такая сеть сможет не только обеспечить комфортную жизнь, но и не навредит экологии, а также существенно увеличит время пользования зданием.
Обычно канализация состоит из следующих систем:
- ливневой, которая отводит воду;
- наружной;
- внутренней.
Их необходимо проложить так, чтобы были соблюдены различные строительные сантребования к канализации в собственном доме.
Среди таких требований можно назвать:
- обеспечение нормального очищения;
- отсутствие риска в вопросе затопления постройки;
- обеспечение необходимого объема сточных вод;
- герметичное накапливание и транспортировка сточных вод.
Если говорить о требованиях к внутренним системам такого типа, то состоять они должных из следующих элементов:
- стояка, к которому прикрепляются все трубы;
- разведения труб, что осуществляет перекачивание сточных вод в направлении стояка;
- сантехприборов для водоотвода.


По нормам в механизме, часть которого расположена в постройке, должно быть достаточно места для свободного транспортирования жидкости от мест, где осуществляется слив до труб, которые осуществляют вывод за пределы постройки. При прокладывании канализации внутри постройки используют трубы из чугуна либо каких-то полимеров. На выходе размер такой трубы должен составлять 11 сантиметров. Естественно, что в данном механизме должна быть еще и вентиляция. Обычно ее проводят через стояк. Над каждым элементом делают вытяжное место, выходящее на крышу.


Если говорить о проекте наружных систем, то его создание осуществляется с учетом требований, прописанных в СНиП за номером 2.04.03-85.
По этому нормативному документу следует учесть следующие моменты:
- в механизме должны устанавливаться колодцы для обслуживания и очищения;
- для вычищения стоков нужна установка с применением биометодов;
- если речь идет о самотечной сети, то применяют полимерные, керамические или асбестоцементные трубы;
- трубы, которые размещены за границами постройки, должны быть в диаметре около пятнадцати сантиметров и заложены на уровне десяти-двенадцати сантиметров;
- если в строении мало этажей, то можно скооперировать несколько домов в единую сеть;
- если нельзя устроить самотечную систему, то лучше сделать выбор в пользу напорной канализации.


Еще один важный момент – подбор конструкции. Это действительно важно при проектировании канализационной автономной сети.
Тут могут быть три варианта септиков, которые используются:
- аэротенки;
- накопительный септик;
- очистной.
Теперь скажем о них чуть подробнее. Аэротенки – новейшие решения с использованием нескольких очистительных методик. После применения подобного септика жидкость очищается почти до 100-процентного значения. Воду можно легко выводить в землю, водоем и применять для полива. Септик накопительной категории является улучшенным вариантом выгребной ямы, в которой очистка не осуществляется, а лишь собираются стоки. Когда септик наполняется до определенного уровня, появляется необходимость его очистки. Обычно это осуществляется при помощи специального ассенизаторского оборудования.
Если говорить об отличиях от выгребной ямы, то никакой фильтрации в грунт в этом случае не осуществляется. Это значит, что никакого вреда экологии не наносится. Но все же данный вид септика применяется в последние годы крайне нечасто по причине дороговизны стоимости услуг специальной ассенизаторской техники. Такой тип можно использовать лишь тогда, если в доме вы проживаете сравнительно нечасто.
Канализация в частном доме схема. Как сделать схему канализации в доме своими руками
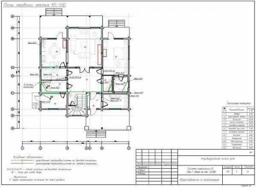
Такой документ представляет собой план действия в графическом исполнении. Проект канализации дает возможность правильно сосчитать потребность в материалах для монтажа канализационной системы для своего дома.
Смотреть видео
Основанием для составления схем водостоков является проект здания , на котором четко обозначаются места установки сантехнических приборов и их наименования, что позволяет правильно подбирать материалы.Факторы, влияющие на состав и устройство канализации в доме
Чтобы определить размеры и размещение основных элементов при устройстве канализации в частном доме, нужно обязательно, определить уровень потребления воды. При расчете используются усредненные данные потребления.
В первом приближении можно использовать норматив в количестве 100 литров на человека. При проектировании следует придерживаться основного правила размещения основного наружного оборудования канализации на расстоянии не ближе 4-х метров от границы участка и не ближе 10 метров от жилого строения.
При этом расстояние до ближайшего водозабора (колодец или скважина) должно составлять не менее 35 метров .
Если на вас пожалуются соседи, то проверяющие органы (санитарно-эпидемиологическая служба) требовать будет, чтоб расстояние было не менее указанной выше цифры!
Ниже представлен пример проекта.

Целью составления плана является расположение основного оборудования системы водоотведения, определения сечения канализационных отводов и подбор соответствующих фитингов для устройства самотечной водосливной сети.
Канализация в частном доме септик. Лучшие септики для частного дома без откачки
Септик для частного дома, не требующий откачки, представлен на рынке России стандартными, усиленными конструкциями для постоянного проживания, временной эксплуатации. Рейтинг изделий включает максимально незаметные конструкции - полное отсутствие запаха, минимальное сервисное обслуживание, небольшая площадь изделий, противостояние грунтовым водам. Модели временного использования отличаются недорогой стоимостью, возможностью установить, обслуживать самостоятельно. Устройства, предназначенные для постоянного проживания, более требовательны к условиям эксплуатации - важно обеспечить рекомендованный минимум стоков, стабильную подачу электроэнергии.

Как правильно выбрать септик для частного дома
Автономные канализации жильцы подбирают индивидуально под условия эксплуатации в конкретном доме. Важными критериями являются:
- Уровень залегания подземных вод, состав почвы. Для сложных грунтов подойдут конструкции, усиленные ребрами жесткости. При высоком залегании грунтовых вод следует отдать предпочтение соответствующей высоте подключения входящей трубы.
- Производительность. Ежедневный объем сбрасываемых стоков определяет производительность септика. Один человек сливает в канализацию 200 л/сутки. Небольшой семье на 3 человека потребуется устройство, перерабатывающее 0,6 м3.
- Материал влияет на срок эксплуатации, безотказность септика. Полимер считается лучшим вариантом, благодаря небольшой массе, дешевизне конструкции.

Важно! Качество септика определяет комфорт проживания постояльцев частного дома.
ТОП 5 лучших септиков для частного дома без откачки - рейтинг 2022 современных моделей
1. Септон
Септик «Септон» - новинка 2020 года! Обслуживает 3-15 человек. Станция обеспечивает глубокую очистку стоков благодаря бактериям, содержащимся в отдельном блоке станции до трех месяцев без поступления органики. Модельный ряд септиков без откачки привлекает многообразием вариантов различной производительности, объема залповых сбросов, глубины врезки подводящего патрубка. Модуль «Смарт» (бесщебневая дренажная система) комплектуется опционально.

Технологические решения лучшего септика 2022 года
Септик «Септон» выполнен из гомогенного интегрально-вспененного сополимера (полипропилен + этилен), выдерживает рабочую температуру +40…-40˚С. Корпус представлен самонесущим цилиндрическим сосудом, оснащенным прямоугольной крышкой. Горловина, крышка окрашена зеленым цветом. Круглая форма, один сварной шов обеспечивает длительную эксплуатацию септика - 25 лет. Изделие обладает минимальными габаритами, занимает 2 м2 площади участка.

Стоки очищаются биологическим методом, используя взвешенный активный ил. Воздух подается мембранным трубчатым полимерным аэратором. Соединения азота лучшим образом удаляются в процессе общей биологической очистки. Системы принудительного отвода стоков оснащены встраиваемым накопителем с дренажным насосом. Обеззараживается жидкость встраиваемым ультрафиолетовым обеззараживателем. GSM-система (продается отдельно) оповещает об изменениях работы септика, упрощает управление.

Септик работает без шума, запаха, не требует откачки. Степень переработки стоков достигает 98%. Допускается переоборудование самотечной конструкции в принудительную. Отсутствие хрупких деталей предупреждает механические поломки.
Принцип аэробного биологического действия
Септики «Септон Смарт» для частного дома выдерживают неравномерное поступление стоков, эффективно работают при малой нагрузке, поддерживают жизнедеятельность бактерий при объемных залповых сбросах, исключая вымывание микрофлоры. Биологическая очистка, сопровождающаяся окислением кислородом, уменьшает БПК, позволяет отводить чистую воду без полей фильтрации.
Аэробно-аноксидная переработка стоков позволяет активному илу усваивать органические, химические соединения при наличии, отсутствии растворенного кислорода. Иловая масса, инкубированная из штаммов бактерий, поступающих вместе с органическими отходами, образует колонии бактерий в форме хлопьев, легко отделяющихся от чистой воды. Предупредить разрушение хлопьев активного ила помогают эрлифты, обеспечивающие циркуляцию жидкости пузырьками сжатого воздуха.
Комплект поставки
Базовые модификации септиков «Септон» без откачки включают корпус, компрессор, техпаспорт, отводящий патрубок 110х15°.
Системы принудительного отвода стоков дополнительно комплектуются накопительным баком, хорошим дренажным насосом с поплавковым выключателем, шлангом ПВХ армированным, фитингами и соединителями.