Устройство канализации в частном доме своими руками. Чертёж – всему голова
- Устройство канализации в частном доме своими руками. Чертёж – всему голова
- Внутренняя канализация в частном доме своими руками. Монтаж канализации в частном доме своими руками
- Канализация в частном доме без септика. Септики-отстойники для частного дома
- Канализация в частном доме схема. Как сделать схему канализации в доме своими руками
- Водопровод и канализация в частном доме своими руками. Проект водопровода и канализации дома
- Самая простая канализация в частном доме. Как сделать канализацию в частном доме?
- Наружная канализация в частном доме. Внешняя канализационная система
Устройство канализации в частном доме своими руками. Чертёж – всему голова
Проект канализации , выполненный по всем правилам, и предусматривающий наиболее оптимальный способ водоотведения для частного дома. Но домовладельцы далеко не всегда стремятся обратиться за помощью к специалистам, а предпочитают решать вопрос самостоятельно.
С чего необходимо начинать, если вы хотите сделать канализацию своими руками? Конечно с чертежа. Но чтобы выполнить его как надо, необходимо выбрать подходящую схему, соответствующую реальным условиям, и понять, как система должна функционировать.
Образец выполнения схемы канализации
Что необходимо знать перед проектированием
Для проектирования системы нужно дать ответы на такие вопросы:
- Есть ли возможность подключиться к городской магистрали, придётся ли производить только сбор канализационных отходов или необходимо организовать ещё и их очистку?
- Какой объём сточных вод будет перерабатываться? Это зависит как от количества и сезонности проживающих в доме людей, так и от наличия и разновидности водоразборных точек.
Рисунок для наглядности — расход воды в сутки
- Следует выяснить глубину, на которую промерзает почва. Это нужно для правильного заглубления канализационного выпуска.
- УГВ – отметка, на которой располагается зеркало грунтовых вод (как проводятся инженерно-геологические изыскания читайте в статье). Если они расположены высоко, на приусадебном участке может сооружаться ещё и канализация для сбора ливневых стоков.
- Необходимо оценить, способствует ли рельеф участка тому, чтобы стоки могли сливаться самотёком. В противном случае, придётся задействовать фекальный насос , и нужно сразу определить место, где он должен быть установлен.
Как правильно сделать канализацию в частном доме, если придётся пользоваться насосом
- При устройстве очистных сооружений, нужно сразу определиться с их типом, рассмотреть возможность доступа ассенизационной техники (как проводится откачка и чистка септиков читайте в статье).
- Необходимо точно установить тип грунта на участке, в соответствии с которым принимается решение либо по устройству дренажного колодца , фильтрационных траншей или полей.
- Требуется начертить схему с указанием всех видов сантехнического оборудования. При этом надо учитывать вариант прокладки трубопровода: внутри пола или поверхностно, чтобы понимать, придётся ли производить какие-либо демонтажные работы.
Для чего нужна схема с разводкой внутренней сети? В первую очередь, чтобы правильно рассчитать количество необходимых материалов и точно определить место их нахождения в системе.
Внутренняя канализация в частном доме своими руками. Монтаж канализации в частном доме своими руками
Комфортное проживание в загородном доме невозможно без обустройства системы канализации. В среднем семья из 4 человек потребляет около 200 литров воды в сутки. Это связано с появлением стиральных и посудомоечных машин. В доме также устанавливают душевые кабины и джакузи.
Для своевременного отвода сточных вод из дома нужно проложить внутреннюю канализацию. Ошибки, допущенные в процессе монтажа, приводят к серьёзным проблемам. В коттедже появляется неприятный запах и постоянно забиваются трубы. Поэтому необходимо соблюдать требования, прописанные в ГОСТах и СНиПе. 
Общие сведения
Система водоотведения загородного или дачного дома состоит из следующих элементов:
- Внутренняя канализация.
- Внешняя канализация.
- Сборный колодец.
- В многоэтажных коттеджах устанавливают фановую трубу (вентиляцию).

Работоспособность внутренней канализации зависит от нескольких факторов:
- Сначала необходимо выбрать подходящий размер труб.
- При укладке системы нужно избегать резких углов и поворотов.
- Трубопровод должен иметь уклон, который составляет 2-3 см на погонный метр.
- Владельцу дома необходимо рассчитать количество строительных материалов.
Особенности обустройства канализация в двухэтажном коттедже
Схема канализации включает в себя совокупность пластиковых труб. Они используются для своевременного отвода сточных вод. Сантехнические устройства должны быть оборудованы сифонами, которые предотвращают проникновение неприятного запаха внутрь помещений. 
Внутренняя разводка
При укладке внутридомовой канализации нужно рассчитать угол наклона. Работоспособность сантехники зависит от состояния внутренней разводки.
Чтобы обеспечить функционирование стояка и унитаза, нужно использовать трубу с диаметром 11 см.
Для душевой кабинки и кухонной раковины рекомендуется использовать трубы, которые имеют диаметр 5 см. В процессе монтажа обеспечивается герметичность системы. В области стыков не должно быть заусенцев и шероховатостей. Наличие прямых углов приводит к появлению засоров.
Если требуется повернуть трубопровод, то можно воспользоваться несколькими коленами. Таким способом добиваются более плавного перехода. 
Появление специфического запаха в доме может быть связано с обратным подсосом из канализации. Избегают этой проблемы за счёт установки сифона или S- образной трубы. Устройство выполняет функцию гидрозатвора.
Чтобы провести трубу через стену, желательно использовать специальную гильзу. При необходимости можно воспользоваться отрезками более широких труб. На участке подключения трубопровода к стене устанавливают тройник, который имеет ревизионное окошко. Его специально закрывают заглушкой.
Ревизионные окошки предназначены для предоставления доступа к системе внутренней канализации. Хозяину достаточно отодвинуть заглушку, чтобы устранить засор.
При обустройстве вывода трубы из здания понадобится выполнить следующие мероприятия:
- В фундаменте делают отверстия диаметром 13-16 см. Они предназначены для установки гильзы.
- Далее приступают к укладке утеплителя вдоль стенок.
- Трубу протягивают через гильзу.

Гидродинамика жидкости в трубах
В случае полного заполнения трубы должен возникнуть «поршневой» эффект. При этом образуется водяная пробка, которая вызывает резкий скачок давления. Образовавшийся вакуум высасывает всю воду из сифона. В помещении появляется характерный запах. Чтобы избавиться от стоков, создают соответствующее давление. Поэтому в процессе проектирования нельзя игнорировать законы гидродинамики.
При прокладке трубопровода учитывают следующие моменты:
- Жидкость по трубопроводу течёт под воздействием гравитации.
- Скорость перемещения стоков зависит от угла уклона. Его величина должна быть не менее 1-2 см на метр.
- В процессе прокладки трубопровода обеспечивают герметичность соединений. С этой целью используются раструбы с резиновыми манжетами.
Чаще всего при проведении канализации владельцы частных домов допускают несколько ошибок:
- Хозяева не предусматривают установку вентиляции. Однако фановая труба не только отводит неприятный запах, но и обеспечивает необходимый уровень давления в системе.
- Неправильное подключение сантехнических приборов к стояку – распространенный вид ошибки. Подводящие трубы не должны находиться ниже унитаза. В противном случае нечистоты могут попасть в раковину или душевую кабину.
Причиной возникновения такой проблемы может быть использование слишком длинной трубы. 
Порядок монтажа внутридомовой канализации
При проведении внутридомовой канализации необходимо придерживаться следующих правил:
- Унитаз к стояку подключают отдельно от других сантехнических устройств.
- Лучше отказаться от размещения нескольких устройств на одной подводящей трубе. Это связано с низкой производительностью системы.
- Оптимальный диаметр отвода от унитаза должен быть равен 100 мм. Причем расстояние от стояка не должно быть больше 1 метра.
- Не рекомендуется использовать подводящую трубу с толщиной меньше 70 мм.
Функционирование системы канализации зависит от факторов:
- угла наклона;
- диаметра трубы.

Канализация в частном доме без септика. Септики-отстойники для частного дома
Это самая простая локальная канализация. Септик – это герметичная емкость, разделенная перегородками на камеры. В септике сток отстаивается, тяжелые примеси оседают, а легкие поднимаются на поверхность. Сточные воды отстаиваются во всех камерах, и затем отводятся наружу. Кроме отстаивания в септиках происходит анаэробное брожение. При таком способе очистки из стока удаляется до 40-50% органики.
Схема работы септика

После анаэробных септиков сток нельзя отводить на грунт без почвенной доочистки. Сооружения для фильтрации и рассеивания стоков – дренажный колодец, поле фильтрации или биофильтр.
Схема отвода стоков из септика в фильтрующий колодец

Схема отвода стоков из септика на поле фильтрации

Расстояние от септика до дома
Согласно санитарным нормам, септик устанавливают не ближе, чем в 5 метрах от дома и дороги. Расстояние от источников питьевой воды (колодцев и скважин) должно быть не меньше 30 метров. Допустимое расстояние от кустов и деревьев – 2-4 метра. Во время замеров на участке инженер выбирает место для септика с учетом всех этих предписаний.
Мы устанавливаем для отвода стоков конические инфильтрационные колодцы. Бетонные кольца сложно монтировать, нужна спецтехника. Готовый пластиковый колодец весит всего 11 кг. Он быстро и легко устанавливается за меньшие деньги.
Гофрированный дренажный колодец

Минимальные расстояния от очистного сооружения до дома, дороги, водоемов, деревьев, колодцев.
Септики не рекомендуется устанавливать:
- При небольшой площади участка . Если на участке не хватает места, то сложно соблюсти требуемые расстояние согласно СНиП от дома, деревьев, колодцев. Также нужно предусматривать место под фильтрационный колодец или поле подземной фильтрации. Кроме того, должен быть подъезд для ассенизаторской машины на 20-30 метров.
- На участках с глинистым грунтом и/или с высоким УГВ . Глина задерживает воду, поэтому делать поле фильтрации или дренажный колодец в таком грунте бесполезно. Скопившаяся вода с поля фильтрации будет затекать обратно в септик, он переполнится и перестанет работать. При высоком УГВ вода начнет подтапливать поле фильтрации или колодец.
Важно! Самотечный септик и глина несовместимы. Установка септика в глину или при высоком уровне грунтовых вод – частая ошибка при монтаже. Решить проблему безболезненно не получается. Приходится выкапывать септик и устанавливать станцию. Наша компания принимает демонтированный септик как б/у, в счет стоимости новой канализации, но это все равно потеря денег.
Три самых популярных септика для загородного дома:
1. Термит.
Производится из полиэтилена методом ротационного формования*. Преимущества: сравнительно низкая цена. Недостатки: материал пластичный, корпус септика прямоугольный, при таких условиях дно или стенки могут вдавиться под тяжестью грунта.
* Гранулы материала засыпают в полую форму, которую одновременно нагревают и вращают. Получается бесшовная герметичная емкость.
2. Росток
Как и Термит, производится по технологии ротоформования. Преимущества : цилиндрический корпус более устойчив к сдавливанию, особая конструкция переливов позволяет лучше задерживать примеси. Недостатки : один из самых дорогих в своем сегменте.
Устройство переливов в септике Росток

3. Флотенк
Изготавливается из стеклопластика методом ручной или машинной намотки стекловолокна. Преимущества : корпус цилиндрический и очень жесткий, можно устанавливать глубже, чем септики из полиэтилена. Это позволяет сделать ввод на большей глубине, с учетом глубины заложения фановой трубы. Недостатки : качество изготовления не всегда хорошее, могут быть протечки в местах присоединения боковин и патрубков к корпусу.

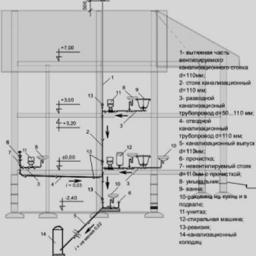
Канализация в частном доме схема. Как сделать схему канализации в доме своими руками
Такой документ представляет собой план действия в графическом исполнении. Проект канализации дает возможность правильно сосчитать потребность в материалах для монтажа канализационной системы для своего дома.
Смотреть видео
Основанием для составления схем водостоков является проект здания , на котором четко обозначаются места установки сантехнических приборов и их наименования, что позволяет правильно подбирать материалы.Факторы, влияющие на состав и устройство канализации в доме
Чтобы определить размеры и размещение основных элементов при устройстве канализации в частном доме, нужно обязательно, определить уровень потребления воды. При расчете используются усредненные данные потребления.
В первом приближении можно использовать норматив в количестве 100 литров на человека. При проектировании следует придерживаться основного правила размещения основного наружного оборудования канализации на расстоянии не ближе 4-х метров от границы участка и не ближе 10 метров от жилого строения.
При этом расстояние до ближайшего водозабора (колодец или скважина) должно составлять не менее 35 метров .
Если на вас пожалуются соседи, то проверяющие органы (санитарно-эпидемиологическая служба) требовать будет, чтоб расстояние было не менее указанной выше цифры!
Ниже представлен пример проекта.

Целью составления плана является расположение основного оборудования системы водоотведения, определения сечения канализационных отводов и подбор соответствующих фитингов для устройства самотечной водосливной сети.
Водопровод и канализация в частном доме своими руками. Проект водопровода и канализации дома
Всем, кто решится создать своими силами систему подвода воды и отвода стоков, придется столкнуться с одной проблемой. В строительстве частного дома техника используется лишь для обустройства фундамента, остальные работы выполняются вручную. Поэтому и точность соответствующая.
Всем, кто собрался провести сантехнику в частном доме своими руками, нужно быть готовым к постоянной корректировке проекта, внесениям изменений по измеренным «вживую» размерам цокольной части стен и внутренних помещений. Схему укладки следует сделать обязательно, но действовать придется во многом методом подгонки по месту.
Привязка канализации к сантехнике
План прокладки канализационных труб проще всего сделать по эскизам планировки помещений. Каждое частное домовладение имеет свою специфику расположения комнат. Поэтому нужно будет снять кальку с плана дома и предварительно нанести точки установки сантехники в ванной комнате и санузле с учетом возможности прокладки канализационных труб.
В простейшем случае канализация в частном домовладении состоит из одной трубы, в которую по мере удаления от канализационного стояка врезана следующая сантехника:
- унитаз;
- биде;
- умывальник;
- ванна или душевая кабина;
- кухонная мойка.
При выборе мест под умывальник, туалет и ванну нужно учитывать индивидуальные предпочтения и особенности анатомии жильцов, но приведенный план расположения сантехники в частном жилье считается оптимальным и наиболее распространенным.
Если придется ставить ванну и кабину до прокладки канализации в частном доме (такое тоже бывает), то нужно дополнительно измерить уровни пола в санузле и ванной комнате.
Визуально кажется, что пол в туалете и ванной комнате находится на одном уровне. На самом деле это не совсем так. Нужно будет составить схему и пересчитать высоту патрубка канализации под ванну и унитаз, чтобы не получилось, что после установки сантехники слив окажется ниже уровня канализационных стоков.
План водопровода
Укладка водопроводных труб проще канализации. Большая часть сантехники в частном доме подключается к «воде» с помощью гибкой подводки, поэтому расположение выводов не столь критично, как в случае канализационных стоков.
Исключением может быть подключение ванны. В этом случае участок водопровода от водяного счетчика до смесителя ванны рекомендуется делать трубой сечением не менее ¾ дюйма.
Самая простая канализация в частном доме. Как сделать канализацию в частном доме?
Обеспечение комфорта и качественной жизни в загородном доме является важным моментом для любого владельца такой постройки. Одним из факторов, которые позволяют обеспечить комфортную жизнь, является удобство оттока использованной воды и продуктов жизнедеятельности. Правильно рассчитанная на стадии проектирования и впоследствии правильно построенная канализация в частном доме будет залогом длительной эксплуатации, при которой не возникнет никаких проблем. Подобную конструкцию можно создать своими руками, если подойти к вопросу с максимальной ответственностью.

Основные требования
Во избежание каких-либо проблем в процессе создания канализации в собственном доме, лучше всего максимально следовать в данном процессе всем требованиям и стандартам, что расписаны в нормативной документации – СНиП. В этом случае все точно будет функционировать безотказно на протяжении длительного периода времени.
В какой угодно постройке, где проложен водопровод и есть забор воды, должна быть выполнена система, которая будет выводить стоковые массы. Механизмы водоотвода должны быть созданы и на участках. В целом такая сеть сможет не только обеспечить комфортную жизнь, но и не навредит экологии, а также существенно увеличит время пользования зданием.
Обычно канализация состоит из следующих систем:
- ливневой, которая отводит воду;
- наружной;
- внутренней.
Их необходимо проложить так, чтобы были соблюдены различные строительные сантребования к канализации в собственном доме.
Среди таких требований можно назвать:
- обеспечение нормального очищения;
- отсутствие риска в вопросе затопления постройки;
- обеспечение необходимого объема сточных вод;
- герметичное накапливание и транспортировка сточных вод.
Если говорить о требованиях к внутренним системам такого типа, то состоять они должных из следующих элементов:
- стояка, к которому прикрепляются все трубы;
- разведения труб, что осуществляет перекачивание сточных вод в направлении стояка;
- сантехприборов для водоотвода.


По нормам в механизме, часть которого расположена в постройке, должно быть достаточно места для свободного транспортирования жидкости от мест, где осуществляется слив до труб, которые осуществляют вывод за пределы постройки. При прокладывании канализации внутри постройки используют трубы из чугуна либо каких-то полимеров. На выходе размер такой трубы должен составлять 11 сантиметров. Естественно, что в данном механизме должна быть еще и вентиляция. Обычно ее проводят через стояк. Над каждым элементом делают вытяжное место, выходящее на крышу.


Если говорить о проекте наружных систем, то его создание осуществляется с учетом требований, прописанных в СНиП за номером 2.04.03-85.
По этому нормативному документу следует учесть следующие моменты:
- в механизме должны устанавливаться колодцы для обслуживания и очищения;
- для вычищения стоков нужна установка с применением биометодов;
- если речь идет о самотечной сети, то применяют полимерные, керамические или асбестоцементные трубы;
- трубы, которые размещены за границами постройки, должны быть в диаметре около пятнадцати сантиметров и заложены на уровне десяти-двенадцати сантиметров;
- если в строении мало этажей, то можно скооперировать несколько домов в единую сеть;
- если нельзя устроить самотечную систему, то лучше сделать выбор в пользу напорной канализации.


Еще один важный момент – подбор конструкции. Это действительно важно при проектировании канализационной автономной сети.
Тут могут быть три варианта септиков, которые используются:
- аэротенки;
- накопительный септик;
- очистной.
Теперь скажем о них чуть подробнее. Аэротенки – новейшие решения с использованием нескольких очистительных методик. После применения подобного септика жидкость очищается почти до 100-процентного значения. Воду можно легко выводить в землю, водоем и применять для полива. Септик накопительной категории является улучшенным вариантом выгребной ямы, в которой очистка не осуществляется, а лишь собираются стоки. Когда септик наполняется до определенного уровня, появляется необходимость его очистки. Обычно это осуществляется при помощи специального ассенизаторского оборудования.
Если говорить об отличиях от выгребной ямы, то никакой фильтрации в грунт в этом случае не осуществляется. Это значит, что никакого вреда экологии не наносится. Но все же данный вид септика применяется в последние годы крайне нечасто по причине дороговизны стоимости услуг специальной ассенизаторской техники. Такой тип можно использовать лишь тогда, если в доме вы проживаете сравнительно нечасто.
Наружная канализация в частном доме. Внешняя канализационная система
В самом простом варианте наружная канализация соединяет здание с централизованной канализацией. К сожалению, реализовать его можно далеко не всегда.
Чаще владельцам частных домов приходится обустраивать автономную канализацию, что предполагает наличие на участке очистных сооружений различного вида
К независимым от централизованных сетей очистным сооружениям относятся различного рода накопители, которые рассмотрим далее.
Вариант #1 — выгребные ямы разных конструкций
Самый дешевый вариант – сооружение системы, дополненной колодцем с фильтрующим дном. Он представляет собой яму, стенки которой выложены, подобным ему материалом или даже. Дно остается свободным, на него насыпают метровый фильтр из песка и гравия мощностью 1 м.
Нечистоты поступают в емкость, жидкость частично впитывается в нижележащие грунтовые слои. Твердый осадок, не прошедший сквозь грунтовый фильтр, накапливается и периодически выкачивается. Достоинством такой схемы помимо невысокой стоимости считается предельная простота обустройства.
Зато недостатков очень много. Прежде всего это опасность заражения окружающей среды стоками, угроза которого возникает при затоплении системы паводковыми водами или при разгерметизации конструктивных частей. По нормативам очищать в этой конструкции разрешено только серые стоки — загрязненные воды из кухни, бани и т.д.
Выгребная яма с дном фильтрующего типа считается наиболее простым вариантом утилизации стоков, но при этом и далеко небезопасным
Установка выгребной ямы без дна возможна только на песчаных грунтах, обладающих достаточными фильтрационными качествами для впитывания очищенной сточной воды. Между условным дном поглощающего колодца — этого канализационного сооружения и уровнем грунтовой воды на участке должно быть не меньше метровой толщи грунта.
Выгребную яму целесообразно строить на даче или для канализации загородного дома, в котором установлено минимальное количество сантехприборов.
