Канализации в частном доме своими руками. Фасонные элементы
- Канализации в частном доме своими руками. Фасонные элементы
- Канализация в частном доме нормы. Монтаж наружной системы канализации
- Самая простая канализация в частном доме. Как сделать канализацию в частном доме?
- Схема канализации в частном доме. Правила обустройства канализации в квартире
- Водопровод и канализация в частном доме своими руками. Монтаж водопровода и канализации в частном доме
- Разводка канализации в частном доме: схема и устройство
Канализации в частном доме своими руками. Фасонные элементы
Для подключения трубопроводов от сантехнических приборов к стояку необходимы стыковочные детали (фасонные части), в первую очередь переходники с диаметра 50 мм на 110 мм, а также с несколькими отводами при подсоединении двух труб. Для снижения вероятности засоров, шумов входные и выходные патрубки соединительных деталей располагают под разными углами. Поэтому прокладка канализации в частном доме невозможна без применения различного типа тройников, крестовин с разными углами входных и выходных патрубков.
Также ни одна канализационная магистраль внутри дома не может быть проложена строго по прямой, для изменения ее направления используют отводы с косыми углами.
В любой канализации всегда предусмотрена возможность прочистки трубопровода в случае засорения, поэтому в стояке и на длинных участках труб обязательно помещают фасонные детали с окошками, так называемая канализационная ревизия , через которые можно проводить очистные работы.
Помимо перечисленных элементов, при монтаже используют вспомогательные детали, облегчающие прокладку магистрали и врезку в трубопровод тройников, к ним относят обычные цилиндрические и компрессионные муфты с удлиненным раструбом.
Большинство фасонных элементов рассчитаны на переход с 50 мм диаметра на 100 мм, но к канализации также подключают сливные шланги и от посудомоечных и стиральных машин меньшего диаметра. В этом случае используют переходники других размерных параметров — обычно тройники с 32 мм боковым отводом и прямым 50 мм проходом.
Канализация в частном доме нормы. Монтаж наружной системы канализации
Для обеспечения надёжности и продолжительного срока эксплуатации канализационной системы при её монтаже необходимо соблюдать ряд правил.
Требования СНиП основываются в на таких факторах, как:
- свойства почвы;
- особенности климата;
- уровень грунтовых вод;
- средний показатель объёма сточных вод;
- расстояние до ближайших насосов и очистных станций.
Также очень важно соблюдения уровня наклона трубы для обеспечения беспрепятственного прохождения сточных вод самотёком. Согласно требованиям СНиП, т рубы должны укладываться под определённым уклоном в стороны колодца. Угол наклона определяется диаметром трубы и составляет 2–3 см на каждый метр трубопровода.
Не старайтесь сделать большой уклон: это, конечно, поспособствует быстрому сливу огромного количества стоков, но может привести к засору системы, так как твёрдые частицы будут задерживаться в трубе.
Согласно требованиям СНиП, размер трубы для наружной канализации нескольких домов, включённых в систему должен быть не менее 20 см, а для одного загородного коттеджа — 10–11 см. Планируя монтаж сточной системы, следует учитывать и дополнительные факторы, влияющие на эксплуатационные качества в дальнейшем.
Прежде чем приступить непосредственно к установке системы канализации необходимо провести подготовительные работы: изучить особенности грунта, произвести расчёт всех элементов , проложить маршрут трубопровода.
Первым делом определяется местоположение сборного колодца, куда будут стекать сточные воды. При этом учитывается и тип водосборника: септик, который способен не только принять, но и утилизировать загрязнения или обычный колодец.
Идеальным вариантом расположения септика или колодца будет самое низкое место на площади проведения трубопровода. Если очищать сборник планируется посредством ассенизаторской машины, колодец, для его комфортного обслуживания, лучше располагать поближе к проезжей части.
Выкапывается траншея, которая в случае необходимости снабжается дополнительными деталями. Стыки труб тщательно закрепить и обработать герметиком. Чтобы не допустить промерзания водопровода в зимний период, необходимо провести теплоизоляцию . Затем канализационная система подключается к очистному сооружению или коллектору и производится пробный пуск.
Канаву засыпают и утрамбовывают только после полной проверки всей конструкции в целом.
Требования к деталям трубопровода:
- Устойчивость материала к коррозии либо обеспечение его дополнительной защиты.
- Наличие основания под монтаж трубопровода с учётом особенностей почвы.
- Обязательное использование задвижек, вантузов и прочих дополнительных элементов при напорных сетях канализации.
Самая простая канализация в частном доме. Как сделать канализацию в частном доме?
Обеспечение комфорта и качественной жизни в загородном доме является важным моментом для любого владельца такой постройки. Одним из факторов, которые позволяют обеспечить комфортную жизнь, является удобство оттока использованной воды и продуктов жизнедеятельности. Правильно рассчитанная на стадии проектирования и впоследствии правильно построенная канализация в частном доме будет залогом длительной эксплуатации, при которой не возникнет никаких проблем. Подобную конструкцию можно создать своими руками, если подойти к вопросу с максимальной ответственностью.

Основные требования
Во избежание каких-либо проблем в процессе создания канализации в собственном доме, лучше всего максимально следовать в данном процессе всем требованиям и стандартам, что расписаны в нормативной документации – СНиП. В этом случае все точно будет функционировать безотказно на протяжении длительного периода времени.
В какой угодно постройке, где проложен водопровод и есть забор воды, должна быть выполнена система, которая будет выводить стоковые массы. Механизмы водоотвода должны быть созданы и на участках. В целом такая сеть сможет не только обеспечить комфортную жизнь, но и не навредит экологии, а также существенно увеличит время пользования зданием.
Обычно канализация состоит из следующих систем:
- ливневой, которая отводит воду;
- наружной;
- внутренней.
Их необходимо проложить так, чтобы были соблюдены различные строительные сантребования к канализации в собственном доме.
Среди таких требований можно назвать:
- обеспечение нормального очищения;
- отсутствие риска в вопросе затопления постройки;
- обеспечение необходимого объема сточных вод;
- герметичное накапливание и транспортировка сточных вод.
Если говорить о требованиях к внутренним системам такого типа, то состоять они должных из следующих элементов:
- стояка, к которому прикрепляются все трубы;
- разведения труб, что осуществляет перекачивание сточных вод в направлении стояка;
- сантехприборов для водоотвода.


По нормам в механизме, часть которого расположена в постройке, должно быть достаточно места для свободного транспортирования жидкости от мест, где осуществляется слив до труб, которые осуществляют вывод за пределы постройки. При прокладывании канализации внутри постройки используют трубы из чугуна либо каких-то полимеров. На выходе размер такой трубы должен составлять 11 сантиметров. Естественно, что в данном механизме должна быть еще и вентиляция. Обычно ее проводят через стояк. Над каждым элементом делают вытяжное место, выходящее на крышу.


Если говорить о проекте наружных систем, то его создание осуществляется с учетом требований, прописанных в СНиП за номером 2.04.03-85.
По этому нормативному документу следует учесть следующие моменты:
- в механизме должны устанавливаться колодцы для обслуживания и очищения;
- для вычищения стоков нужна установка с применением биометодов;
- если речь идет о самотечной сети, то применяют полимерные, керамические или асбестоцементные трубы;
- трубы, которые размещены за границами постройки, должны быть в диаметре около пятнадцати сантиметров и заложены на уровне десяти-двенадцати сантиметров;
- если в строении мало этажей, то можно скооперировать несколько домов в единую сеть;
- если нельзя устроить самотечную систему, то лучше сделать выбор в пользу напорной канализации.


Еще один важный момент – подбор конструкции. Это действительно важно при проектировании канализационной автономной сети.
Тут могут быть три варианта септиков, которые используются:
- аэротенки;
- накопительный септик;
- очистной.
Теперь скажем о них чуть подробнее. Аэротенки – новейшие решения с использованием нескольких очистительных методик. После применения подобного септика жидкость очищается почти до 100-процентного значения. Воду можно легко выводить в землю, водоем и применять для полива. Септик накопительной категории является улучшенным вариантом выгребной ямы, в которой очистка не осуществляется, а лишь собираются стоки. Когда септик наполняется до определенного уровня, появляется необходимость его очистки. Обычно это осуществляется при помощи специального ассенизаторского оборудования.
Если говорить об отличиях от выгребной ямы, то никакой фильтрации в грунт в этом случае не осуществляется. Это значит, что никакого вреда экологии не наносится. Но все же данный вид септика применяется в последние годы крайне нечасто по причине дороговизны стоимости услуг специальной ассенизаторской техники. Такой тип можно использовать лишь тогда, если в доме вы проживаете сравнительно нечасто.
Схема канализации в частном доме. Правила обустройства канализации в квартире

Так как замена канализации будет происходить в многоквартирном доме, в котором расположенные друг над другом квартиры имеют общий стояк, то не забудьте оповестить соседей о предстоящем проведении работ. Ведь вы доставите им ряд неудобств, о чем лучше предупредить.

Кроме того, придется договориться с организацией, занимающейся обслуживанием дома, об отключении подачи воды. Так, вы как минимум обезопасите себя от деятельности забывчивых соседей, связанной с санузлом.
С чисто технической точки зрения необходимо учесть следующие нюансы.
Многие специалисты не рекомендуют производить замену чугунного стояка без особой надобности, так как этот материал действительно прочный, а демонтаж трубы из чугуна – сложный процесс, который в случае необходимости лучше предоставить профессионалам.Чугунный стояк
Современным материалом, наиболее подходящим для монтажа собственными силами, являются трубы и фитинги, выполненные из пластика.Трубы и фитинги из пластика
Важным условием при монтаже разводки является соблюдение уклона на каждый погонный метр трубопровода. Величина наклона зависит от диаметра трубы. Если сечение труб составляет 5 см, то уклон должен быть около 3 см, при диаметре 11 см – 2 см. Изменение наклона не стоит допускать как в большую, так и в меньшую стороны, потому что это в итоге будет приводить к засору.Уклон труб
Диаметр труб зависит от их назначения. Стояк, который будет принимать на себя стоки в больших порциях, должен иметь сечение 100-110 мм. Это касается, например, вертикальной трубы, собирающей сточные воды унитаза, стиральной и посудомоечной машин.
Если установка последней не планируется, а ванная комната имеет отдельный стояк, то вертикальный трубопровод, принимающий воду из кухни, может иметь диаметр 5 см
Для канализационной разводки лучше применять трубы диаметром в 4-5 см.
Важно учитывать, что канализационная система в процессе эксплуатации подвержена динамике. По этой причине при раструбном соединении необходимо вставлять гладкий конец одной трубы в раструб другой не полностью, оставляя зазор в 10 см. Это компенсирует увеличение длины труб при росте температуры
Другая динамика связана с создание в трубопроводе внутреннего напряжения, что регулируется двумя видами крепления стояка при помощи хомутов, о чем будет сказано ниже.
На трубах, отводящих воду из кухонных раковин и посудомоечных машин, рекомендуется устанавливать жироуловители.
Из всех сантехнических приборов в самой нижней точки внутриквартирной канализационной сети должен находиться унитаз. Обязательным является наличие гидрозатворов после сантехники, в которых остается жидкость, препятствующая проникновению в помещение зловонных запахов.Гидрозатвор для канализации
Если в процессе эксплуатации старой сети из сливов сантехники исходил характерный запах, а во время спуска воды из унитаза или стиральной машины из труб раздавался громкий хлюпающий звук, то это говорит о плохой вентиляции стояка. Возможно, забилась фановая труба. Тогда необходимо вызвать слесаря из обслуживающей ваш дом организации. Однако в некоторых случаях простой чистки вентиляции недостаточно. Тогда стояк оборудуют обратным клапаном.Обратный клапан для канализации
После того как произведены все замеры, составлена схема, учитывая все нюансы, и подобраны и куплены необходимые материалы, можно приступать к процессу демонтажа, если речь идет о замене старой сети.
Водопровод и канализация в частном доме своими руками. Монтаж водопровода и канализации в частном доме

Пример схемы водопровода и канализации в частном доме
Прежде, чем начинать монтаж сантехники+водопровода+канализации, следует точно распланировать, в каком именно месте водопровод будет входить в дом и где именно будет выходить канализация, а также – каким будет расстояние от канализации до водопровода.
Такое тщательное планирование нужно для того, чтобы при заливке фундамента можно было либо сразу проложить необходимые трубопроводы, либо зарезервировать для них технологические отверстия.
Кроме того, это помогает избежать неприятных ситуаций, таких как пересечение канализации и водопровода.
В случае, если в доме отсутствуют централизованные коммуникации, следует заранее обдумать место, где будут размещаться скважина и септик.
При размещении септика рекомендуется также обеспечить ассенизаторскому автомобилю возможность подъехать на минимальное расстояние.
В процессе установки септика также следует помнить, что для впитывания в почву сточных вод нижние ряды кирпича необходимо укладывать в шахматном порядке.
Насосную станцию следует выбирать в зависимости от глубины скважины. В случае, когда глубина зеркала воды превышает 8 метров, следует использовать погружной насос, а на меньшей глубине достаточно установить насосную станцию на поверхности.
Гравитационные насосы предназначаются для колодцев, поэтому не рекомендуется использовать их в скважинах. Независимо от типа насоса для удобства его использования можно приобрести специальный комплект автоматизации.
Насосную станцию можно врезать в центральную линию водопровода путем разрыва струи, проще говоря – установки водонакопительного бака объемом от 200 до 2000 литров.
В качестве водонакопительного бака лучше всего приобретать готовые пластиковые емкости, снабженные необходимыми штуцерами и не подверженные действию коррозии, которые особенно удобны благодаря своему маленькому весу.
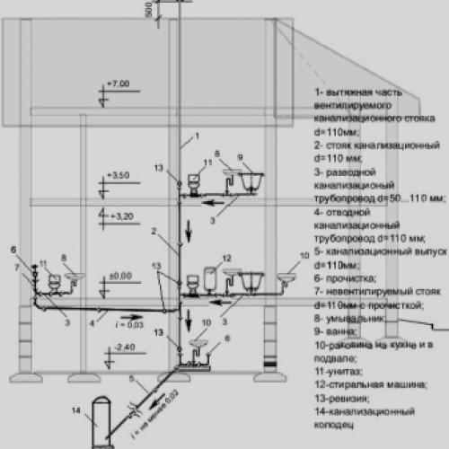
Разводка канализации в частном доме: схема и устройство
Разводка канализации в частном доме или квартире, выполненная с ошибками и нарушением нормативных требований, создаст серьезные проблемы и потребует сложных ремонтных работ.
Для создания канализационной системы частного дома не требуется получать никаких разрешительных документов. Это заметно упрощает процесс создания сети, в отличие от работ с водопроводом, газом или иными коммуникациями. Избежать этого можно, если заранее создать проект и тщательно распланировать монтажные работы с соблюдением всех правил. Рассмотрим этот вопрос внимательнее.
Размещение элементов системы
Канализация — это взаимосвязанная система, где каждый элемент оказывает влияние на общую конфигурацию. Разводка труб канализации в частном доме выполняется с учетом специфики, расположения и технологических потребностей всех сантехнических приборов, установок или отделений. Необходимо обеспечить выполнение обязательных условий:
- трубы должны иметь уклон, соответствующий рекомендованным величинам для данного диаметра;
- размер труб должен обеспечивать достаточную пропускную способность;
- конфигурация канализационных сетей не допускает резких поворотов, сложных изгибов или изменения направления уклона;
- необходимо наличие ревизионных люков, должен быть обеспечен доступ к трубам для проведения ремонтных работ;
- обязательно наличие фановой трубы, обеспечивающей вентиляцию системы.
Соблюдение этих требований определено СНиП и прочими нормативными документами. Кроме того, в грамотной разводке канализационных труб в частном доме в первую очередь заинтересован его владелец, которому придется ежедневно ей пользоваться. Все ошибки будут отражаться на уровне комфорта и качестве проживания в доме, поэтому важно отнестись к созданию системы с максимальной тщательностью.
Выбор и составление схемы
Начинать создание автономной канализационной системы надо с определения ее конфигурации. В этом неоценимую помощь способна оказать заранее составленная схема. Где отображаются все точки установки сантехнических приборов, расстояния и уклоны, ось монтажа стояка и прочие нужные и важные особенности прокладки трубопроводов. При создании схемы надо учитывать специфику и требования к определенным участкам:
- канализационные отводы от кухонной мойки, умывальника, ванны или душевой кабины должны состоять из труб диаметром 50 мм;
- стояк канализации в частном доме, а также отвод от унитаза, присоединенный к нему, должны иметь диаметр 110 мм;
- все элементы горизонтальной части системы должны располагаться с возрастанием диаметра в направлении стояка, но не наоборот;
- оптимальный вариант — использование пластиковых труб;
- канализационный стояк располагается только вертикально. Ревизионный люк в нем должен быть обязательно, в доступном и удобном для выполнения различных работ месте.
