Схема канализации в частном доме. Как сделать схему канализации в доме своими руками
- Схема канализации в частном доме. Как сделать схему канализации в доме своими руками
- Правильная разводка канализации в частном доме. Как сделать канализацию в частном доме?
- Внутренняя канализация в частном доме. Общие монтажные правила
- Наружная канализация в частном доме. Обстоятельства и схема укладки внешней канализации
- Схема канализации в одноэтажном частном доме. Какую канализацию лучше сделать в частном доме
Схема канализации в частном доме. Как сделать схему канализации в доме своими руками
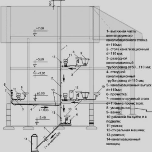
Такой документ представляет собой план действия в графическом исполнении. Проект канализации дает возможность правильно сосчитать потребность в материалах для монтажа канализационной системы для своего дома.
Смотреть видео
Основанием для составления схем водостоков является проект здания , на котором четко обозначаются места установки сантехнических приборов и их наименования, что позволяет правильно подбирать материалы.Факторы, влияющие на состав и устройство канализации в доме
Чтобы определить размеры и размещение основных элементов при устройстве канализации в частном доме, нужно обязательно, определить уровень потребления воды. При расчете используются усредненные данные потребления.
В первом приближении можно использовать норматив в количестве 100 литров на человека. При проектировании следует придерживаться основного правила размещения основного наружного оборудования канализации на расстоянии не ближе 4-х метров от границы участка и не ближе 10 метров от жилого строения.
При этом расстояние до ближайшего водозабора (колодец или скважина) должно составлять не менее 35 метров .
Если на вас пожалуются соседи, то проверяющие органы (санитарно-эпидемиологическая служба) требовать будет, чтоб расстояние было не менее указанной выше цифры!
Ниже представлен пример проекта.

Целью составления плана является расположение основного оборудования системы водоотведения, определения сечения канализационных отводов и подбор соответствующих фитингов для устройства самотечной водосливной сети.
Правильная разводка канализации в частном доме. Как сделать канализацию в частном доме?
Обеспечение комфорта и качественной жизни в загородном доме является важным моментом для любого владельца такой постройки. Одним из факторов, которые позволяют обеспечить комфортную жизнь, является удобство оттока использованной воды и продуктов жизнедеятельности. Правильно рассчитанная на стадии проектирования и впоследствии правильно построенная канализация в частном доме будет залогом длительной эксплуатации, при которой не возникнет никаких проблем. Подобную конструкцию можно создать своими руками, если подойти к вопросу с максимальной ответственностью.

Основные требования
Во избежание каких-либо проблем в процессе создания канализации в собственном доме, лучше всего максимально следовать в данном процессе всем требованиям и стандартам, что расписаны в нормативной документации – СНиП. В этом случае все точно будет функционировать безотказно на протяжении длительного периода времени.
В какой угодно постройке, где проложен водопровод и есть забор воды, должна быть выполнена система, которая будет выводить стоковые массы. Механизмы водоотвода должны быть созданы и на участках. В целом такая сеть сможет не только обеспечить комфортную жизнь, но и не навредит экологии, а также существенно увеличит время пользования зданием.
Обычно канализация состоит из следующих систем:
- ливневой, которая отводит воду;
- наружной;
- внутренней.
Их необходимо проложить так, чтобы были соблюдены различные строительные сантребования к канализации в собственном доме.
Среди таких требований можно назвать:
- обеспечение нормального очищения;
- отсутствие риска в вопросе затопления постройки;
- обеспечение необходимого объема сточных вод;
- герметичное накапливание и транспортировка сточных вод.
Если говорить о требованиях к внутренним системам такого типа, то состоять они должных из следующих элементов:
- стояка, к которому прикрепляются все трубы;
- разведения труб, что осуществляет перекачивание сточных вод в направлении стояка;
- сантехприборов для водоотвода.


По нормам в механизме, часть которого расположена в постройке, должно быть достаточно места для свободного транспортирования жидкости от мест, где осуществляется слив до труб, которые осуществляют вывод за пределы постройки. При прокладывании канализации внутри постройки используют трубы из чугуна либо каких-то полимеров. На выходе размер такой трубы должен составлять 11 сантиметров. Естественно, что в данном механизме должна быть еще и вентиляция. Обычно ее проводят через стояк. Над каждым элементом делают вытяжное место, выходящее на крышу.


Если говорить о проекте наружных систем, то его создание осуществляется с учетом требований, прописанных в СНиП за номером 2.04.03-85.
По этому нормативному документу следует учесть следующие моменты:
- в механизме должны устанавливаться колодцы для обслуживания и очищения;
- для вычищения стоков нужна установка с применением биометодов;
- если речь идет о самотечной сети, то применяют полимерные, керамические или асбестоцементные трубы;
- трубы, которые размещены за границами постройки, должны быть в диаметре около пятнадцати сантиметров и заложены на уровне десяти-двенадцати сантиметров;
- если в строении мало этажей, то можно скооперировать несколько домов в единую сеть;
- если нельзя устроить самотечную систему, то лучше сделать выбор в пользу напорной канализации.


Еще один важный момент – подбор конструкции. Это действительно важно при проектировании канализационной автономной сети.
Тут могут быть три варианта септиков, которые используются:
- аэротенки;
- накопительный септик;
- очистной.
Теперь скажем о них чуть подробнее. Аэротенки – новейшие решения с использованием нескольких очистительных методик. После применения подобного септика жидкость очищается почти до 100-процентного значения. Воду можно легко выводить в землю, водоем и применять для полива. Септик накопительной категории является улучшенным вариантом выгребной ямы, в которой очистка не осуществляется, а лишь собираются стоки. Когда септик наполняется до определенного уровня, появляется необходимость его очистки. Обычно это осуществляется при помощи специального ассенизаторского оборудования.
Если говорить об отличиях от выгребной ямы, то никакой фильтрации в грунт в этом случае не осуществляется. Это значит, что никакого вреда экологии не наносится. Но все же данный вид септика применяется в последние годы крайне нечасто по причине дороговизны стоимости услуг специальной ассенизаторской техники. Такой тип можно использовать лишь тогда, если в доме вы проживаете сравнительно нечасто.
Внутренняя канализация в частном доме. Общие монтажные правила
Внутренняя канализация в частном доме обустраивается с выполнением ряда правил:
- Элементы стояков с поворотом на 90° собираются из двух колен из пластика, повернутых на 45°. Если же монтируется чугунный трубопровод, используются два отвода на 135°.
- Чтобы была возможность устранять возможные засоры на участках трубопровода, устанавливается косой пластиковый или чугунный тройник на 45° с заглушкой и одно колено либо чугунный отвод.Чугунная фасонина отличается от пластиковой в наименованиях и градациях. Например, колено пластиковое на 45° будет полностью соответствовать отводу чугунному на 135°.
- Отводные трубопроводы, которые располагаются в подвалах, под потолком помещений соединяются со стояками при помощи крестовин или же косых тройников.
- Высота от нижнего участка горизонтального раструба тройника или прямой крестовины до пола должна составлять не больше 20 мм.
- Длина трубопровода от унитаза и до стояка не должна быть более 1 м. Для остальных сантехнических приборов – не более 3,5 м.
- Для выполнения поворотов на стояках или в местах перехода на горизонтальные участки можно использовать крестовины на 90° или прямые тройники.
- Для предотвращения появления запахов из канализации в помещении обязательно обустраивается вытяжка. Так называемую фановую трубу выводят через крышу на высоту около 0,7 м. Недопустимо соединять ее с дымоходом или вентиляцией.
- Если установка фановой трубы невозможна, монтируется специальный воздушный клапан для канализации.
- Диаметр стояка должен быть равен диаметру вытяжной части. Одной вытяжкой можно объединять два и даже больше стояков на верхнем этаже или на чердаке. Горизонтальные участки такого трубопровода фиксируются подвесными кронштейнами или просто проволокой к стропилам.
- На стояках, у которых нет отступов в верхнем и нижнем этажах, устанавливаются ревизии для канализации. Стандартная высота обустройства ревизии – 1000 мм от уровня пола. Если деталь приходится устанавливать в угол помещения, ее стоит развернуть под углом 45° относительно стен.
- При монтаже системы внутренней канализации все трубы из пластика, проходящие через перекрытия, устанавливаются в специальные металлические гильзы. Высота элемента зависит от ширины перекрытия. Верх детали должен выступать на 20 мм от уровня пола, а низ – быть заподлицо с потолком.
- Стояк устанавливается с надетой гильзой. Для того чтобы она не падала с трубы, ее привязывают тонкой проволокой за вышестоящий раструб крестовины или тройника либо распирают кусочками пенопласта.
- Если предполагается, что на горизонтальном участке последовательно будут подключены унитаз и другие сантехнические приборы, между ними обязательно устанавливается переходник для канализации. Пластиковые детали нельзя высоко поворачивать. Это грозит проблемами с последующим подключением оборудования, особенно с душевой кабиной или ванной. В среднем разворот должен проводиться на половину раструба тройника по высоте с направлением в сторону стены.
- Для закрепления канализации используют хомуты. Пластиковые трубы крепят на горизонтальных участках по мере необходимости, так, чтобы не возникло переломов. В среднем устанавливается один хомут на полметра – метр длины магистрали.
- Чугунные трубы крепят на кронштейны из стали с загибом на конце, которые предотвращают смещение трубопровода. Крепежи устанавливаются под каждую трубу около раструба.
Наружная канализация в частном доме. Обстоятельства и схема укладки внешней канализации
Наружная часть канализационной системы в частном доме соединяет трубопроводной сетью выходное отверстие внутреннего стока с емкостью для накопления отходов, расположенной на участке, либо с центральной канализацией. О внутренней разводки в доме читайте в статье «Прокладка внутренней канализации в частном доме своими руками, схема монтажа и разводки канализационных труб» . Укладка внешних канализационных труб осуществляется по разработанной заранее схеме, учитывающей следующие обстоятельства:
- особенности рельефа местности;
- погодные условия;
- удаленность колодцев и водоемов;
- общий объем стоков, зависящий от количества постоянно проживающих в доме людей;
- глубину промерзания почвы и ее состав;
- пути подъезда машины ассенизатора при необходимости.
В схеме укладки внешней канализации обязательно нужно предусмотреть ее вентиляцию, так как в противном случае с течением времени неприятные запахи будут проникать в жилые помещения. О правилах устройства вентиляции канализации читайте в статье «Как правильно сделать своими руками вентиляцию канализации в частном доме» . Вентиляция обустраивается с помощью фановой трубы, которую можно расположить на крышке септика или на участке трубопровода, проходящего от дома к накопительной емкости стоков.

Схема обустройства автономной наружной канализации
Септик оборудуется в нижней точке геологического рельефа местности участка. Такое расположение позволяет наиболее оптимально выполнить монтаж наружной канализации. Ее следует прокладывать по прямой линии к расположению выходной трубы внутренней системы удаления сточных вод.
Схема канализации в одноэтажном частном доме. Какую канализацию лучше сделать в частном доме
Устройство канализации в частном доме состоит из разводки по помещениям и наружной сети. Внутри система может включать в себя один или несколько вертикальных стояков, к которым примыкают трубы с меньшим диаметром. По этим трубам, обязательно располагаемым с уклоном, сточная вода движется самотёком от точек расхода до места общего слива.
Устройство самотечной канализации в строящемся доме
Какие нюансы учесть при разводке труб
Попадая в стояк, вода под действием гравитации опускается вниз и поступает во внешний трубопровод большего диаметра, соединённый либо с центральной магистралью, либо с локальным накопительным или очистным сооружением.
При разработке схемы нужно учитывать несколько простых правил:
- Лучший вариант разводки для частного владения – это когда в схеме присутствует всего один стояк. А это возможно только тогда, когда санузел и кухня сконцентрированы в одной части дома и их разделяет только перегородка. Именно поэтому в квартирах эти помещения чаще всего располагаются рядом.
- К стояку идёт подводящая труба, к которой, как на фото снизу, подсоединяются все сантехнические приборы. Уклон труб диаметром до 80 мм должен составлять порядка 2 см на 1 м/п.
- Точки слива воды из приборов должны располагаться так, чтобы унитаз находился к стояку ближе всего – в этом случае, место его присоединения к отводной трубе окажется в самой низкой точке. Это важно, так как в противном случае стоки из унитаза могут попадать в отверстия для слива из других приборов.
Стояк в санузле
Совет: на трубе, идущей от посудомоечной машины и кухонной раковины, желательно установить жироуловитель.
Схема с жироуловителем
- По возможности, нужно избегать лишних поворотов трубопровода, так как именно в этих местах чаще всего и случаются засоры. Но если без них не обойтись, поворот нужно сделать как можно более плавным. Так, чтобы получить прямой угол, используют либо 3 колена по 30, либо 2 по 45 градусов.
Колено в 45 градусов
На заметку: чтобы не огибать дом, выход трубопровода из него должен располагаться с той стороны, где находится автономное очистное сооружение или центральный трубопровод.
Ввод канализации в дом в непосредственной близости от септика
Какие материалы лучше использовать
Сегодня уже не только в частном строительстве, но и в многоэтажках, для сборки канализационных трубопроводов используют не тяжёлую чугунину, а лёгкий, прочный и недорогой пластик, стыки которого заделываются полимерным герметиком.
Ассортимент смазок и паст для канализационных труб велик
При соединении сливного отверстия санитарного прибора с отводной трубой, очень важно устраивать гидрозатворы, роль которых играют U-образные трубы. Постоянно находящаяся в их изгибе вода является препятствием для проникновения в помещение зловонных запахов из канализации.
Пример устройства гидрозатвора
Ниже приведены сечения труб (в миллиметрах) для монтажа ветвей разводки, в зависимости от вида санитарного оборудования:
- ванна, раковина и душевой слив, если труба общая – 50;
- если всё по отдельности – 40;
- биде — 30 или 40;
- унитаз – 100
Примечание: эти цифры актуальны при условии, что унитаз находится в 1 метре от стояка, а остальные точки слива – не дальше 3-х. Если эти расстояния больше, диаметр труб придётся увеличивать.
Для стояка, в который идёт не только вода из кухни, но и стоки из туалета, трубы берут диаметром 100 или 110 мм. Такое же сечение должно быть у любого стояка в. Если же в доме туалета нет, а только душ и кухонная мойка, трубы размером 50 мм для установки стояка вполне достаточно.