Монтаж и разводка водопровода в частном доме своими руками. Правила проектирования
- Монтаж и разводка водопровода в частном доме своими руками. Правила проектирования
- Монтаж системы водоснабжения в частном доме. Схема подключения воды в частном доме
- Коллекторная разводка воды в частном доме. Типовая схема водопровода частного дома
- Диаметр трубы для водопровода в частном доме. Как выбрать диаметр трубы для водоснабжения в частном доме
- Разводка воды в частном доме. 3 схемы разводки воды в частном доме
- Водопровод в частном доме из скважины. Водоснабжение частного дома из колодца и скважины: прокладка труб
Монтаж и разводка водопровода в частном доме своими руками. Правила проектирования
Правильно составленная схема облегчает дальнейший монтаж системы. При ее разработке нужно принимать в расчет множество нюансов, связанных с домом и участком. Она обязательно должна учитывать такие вещи, как разводка воды и тип используемых труб, число фильтров, планируемое количество точек водозабора, тип водонагревателя и его объем.
Варианты водоснабжения в частном доме Водопровод для частного дома Водоснабжение дома из скважины Вариант коллекторной разводки Коллекторная схема водоснабжения Разводка водоснабжения Система водоснабжения Схема водопровода в частном доме Схема водопровода на даче
Варианты водоснабжения в частном доме Водопровод для частного дома Водоснабжение дома из скважины Вариант коллекторной разводки Коллекторная схема водоснабжения Разводка водоснабжения Система водоснабжения Схема водопровода в частном доме Схема водопровода на даче
На схеме должно быть указано нахождение каждого элемента. Поэтому предварительно для системы делается чертеж дома и план участка – для внешней части конструкции. При этом масштаб для обеих частей должен быть одинаковым.
Последовательная разводка труб
Предполагается, что имеется общая труба, от нее к каждой точке выполнены отводы. Недостатком является то, что такая конструкция не позволяет обеспечить одинаковое давление у каждой точки потребления. Чем большее их количество, тем меньшим будет напор воды.
Коллекторная схема разведения водопровода
От других видов разводки схема отличается наличием специального распределительного узла . Это и есть коллектор, от которого к каждой точке потребления воды обустраивается трубопровод, что позволяет обеспечить одинаковое давление и напор.
Монтаж системы водоснабжения в частном доме. Схема подключения воды в частном доме
Первый этап обустройства внутреннего водоснабжения частного дома – разработка схемы. Вам нужно будет определить, сколько придется размещать точек горячего и холодного водоснабжения и где они будут находиться. Чем больше мокрых зон в доме, тем сложнее будет выглядеть схема. Параллельно желательно нарисовать и схему водоотведения. В идеале всем этим лучше заниматься не просто до начала монтажа системы водоснабжения дома, но и до строительства дома. Так вы сможете проложить трубы скрыто в полу и стенах, сделать более грамотную разводку и сэкономить много денег.
Кроме того, схема поможет рассчитать точное количество материалов, труб и фитингов, а также будет проще подобрать бойлер для горячей воды.
Совет! При проектировании дома нужно обратить внимание на несколько моментов. Во-первых, в 2-х и более этажных домах санузлы должны располагаться строго друг над другом. Если трубы водоснабжения еще можно провести под потолком или сделать скрытую проводку в полах, то со 110-ой трубой канализации это сделать не выйдет. Во-вторых, мокрые зоны (котельная, кухня, санузел) желательно располагать с одной стороны дома, а не так что кухня с одной стороны коридора, а котельная с санузлом – с другой. Это позволить сделать тройниковую разводку с возможностью слива воды из системы самотеком в холодное время года.
По возможности запланируйте в доме небольшую комнату под котельную или техпомещение. В ней будет удобно разместить узел автоматики, гидроаккумулятор, котел системы отопления. Зачастую в двухэтажном доме для котельной выделяют пространство под лестницей.
Наличие техпомещения желательно:
- При обустройстве скважины с адаптером, так как автоматика и гидробак размещаются в доме.
- При обустройстве колодца с насосной станцией, так как станция шумит и занимает много места.
- При горячем водоснабжении от системы отопления.
Коллекторная разводка воды в частном доме. Типовая схема водопровода частного дома
Основных схем всего две. Это последовательное распределение воды и коллекторная схема, при которой каждая точка водозабора имеет свою трубу и общий коллектор.

Схема оборудования для водоснабжения загородного дома
Последовательная схема подключения предполагает прокладку основного трубопровода и при помощи врезок тройников осуществляется последовательное подключение точек водоснабжения. Таким образом, напор воды на первой точке будет максимальным, при одновременном использовании нескольких подключений, напор воды на последнем подключении будет самым слабым. Схема экономична, проста в монтаже, достаточно надежна, но не рекомендуется при одновременном проживании более 2 человек.
Коллекторная схема водоснабжения отличается более сложным монтажом, высокой стоимостью, зато обеспечивает примерно одинаковый напор воды на всех участках.
Виды внутренней разводки водопровода
Типовая схема коллекторного водозабора выглядит следующим образом

Водоснабжение частного дома на схеме
- Источник водоснабжения.
- Водонапорная станция с гидроаккумулятором. Обязательно выбирайте модели с реле сухого хода во избежание порчи оборудования.
- Распределительный запорный узел. Предназначен для распределения воды для технических нужд и домашних.
- На ветку, выделенную для домашних нужд, устанавливается система водоочистки.
- После фильтрации устанавливается разделение воды на холодную и горячую.
- Устанавливается распределительный коллектор для холодной воды и запорными кранами на каждой ветке.
- Труба с горячей водой подключается к бойлеру.
- Монтируется распределительный коллектор для горячей воды.

Диаметр трубы для водопровода в частном доме. Как выбрать диаметр трубы для водоснабжения в частном доме
Если вы решили подвести водоснабжение к частному дому, то сначала нужно выбрать подходящий диаметр трубы. Здесь нельзя ошибиться: в случае неправильного расчета пользоваться водопроводом будет неудобно. А это эмоциональное раздражает, и дополнительные финансовые траты на переделки и частый ремонт системы.
Диаметральные размеры труб водоснабжения частного дома
Выбирая диаметр труб для монтирования водопровода в частном доме, рекомендуется учитывать следующие характеристики:
- силу водяного напора. Когда он слаб, диаметр труб должен превышать стандартный. Слабость напора+узенькие трубы= слабая струя из кранов;
- общая длина водопроводной системы;
- сколько в доме водоразборных точек: диаметр труб находится в прямой зависимости от их количества;
- то же самое относится к поворотным точкам трубопровода — вообще любая из них немного способствует понижению давления. У вас там «Критский лабиринт»? Значит, диаметр — на любом отрезке трубопровода — водопроводной трубы для частного дома должен быть с некоторым запасом.

Следует учесть также температуру воды — трубы для ХВС и ГВС можно приобрести одинаковые по диаметру, но вот стенки «горячих» непременно должны быть толще.
Как длина водопровода влияет на диаметр труб
Общее правило: чем длинней, тем больше! Итак, как грамотно выбрать диаметр трубы для домашнего водопровода, не вдаваясь в головоломные вычисления? В большинстве случаев оправдывают себя стандартные рекомендации:
- короткий трубопровод меньше 10 м — 20 мм;
- меньше 30 м — минимум 25 мм;
- если трубопровод длинный — больше 30 м — оптимальным решением будет 32 мм.
Какой длины нужны сами отрезки труб для монтирования? Обычно она составляет от 4 до 15 м, смотря какая у вас схема прокладки.
Почему диаметр труб определяет пропускную способность водопровода
Здесь все просто: чем более узка труба, тем меньше жидкости в ней прогоняется за некий временной промежуток. Примеры:
- 25-миллиметровые прогоняют через себя до 30 л/мин;
- 32-миллиметровые — до 50 л/мин.
Учтите также пропускную способность кранов: стандартный в ванной комнате или кухонный способен прогнать не более 5 л/мин. Следовательно, величина диаметра прямо зависит от расхода воды.
Размеры труб для квартиры
Подбирать нужный диаметр труб для водопровода в квартире нужно, исходя из их пропускной способности. Оптимальная будет у труб:
- с малым числом поворотных точек и локальных сужений;
- с коллекторной разводкой (предназначенных для питания одной точки);
- коротких, при этом «широких изнутри»;
- с незначительной шероховатостью (пластик предпочтительнее стали).
Типовые решения
Существуют рекомендации:
- обычный диаметр трубопровода — 10 и 15 мм;
- стояк потребует чуть большего — 25.
Необходимо знать: приобретенные изделия создаются не ювелирами, и трубы «10 мм» легко окажутся на пару миллиметров побольше. Обязательно руководствуйтесь таким параметром, как толщина стеночек: нужно так подобрать диаметр именно внутри (для этого нужно вычесть из общего толщину стенок), чтоб все фитинги подошли!

Чем выше уровень сложности будущих сантехнических работ в домовладении, тем больше должен быть диаметр всех труб, и длинных, и коротких. Когда предполагается «сложносочиненный» водопровод со многими поворотными точками, стыками и предполагаемыми скачками давления, стоит подстраховаться с помощью увеличения диаметра. Следует также непременно учесть максимальные значения как давления, так и температуры в вашем водопроводе, чтобы он не лопнул от первого же гидроудара.
Экономия здесь неоправданна. Дополнительный совет: чтоб водопроводная система отличалась безупречной работой и надежностью в эксплуатации, нужно подбирать изделия высокого качества. Это касается и труб, и мелких элементов (фитинги и муфты). Обидно будет «угробить» выверенную систему дешевой арматурой.
Разводка воды в частном доме. 3 схемы разводки воды в частном доме
Как сделать разводку воды в частном доме правильно? Для этого во время создания схемы водоснабжения коттеджа выберите подходящую под ваши условия схему. Разводка может быть тройниковая, коллекторная либо комбинированная.
- Тройниковая схема разводка воды
Тройниковая разводка воды от скважины в частном доме – это оптимальное решение, если в вашем коттедже мало сантехнических приборов и вы не можете скрыть трубопровод под напольным покрытием либо в стенах. Когда разводка тройниковая, по зданию пускают две магистральные трубы: для горячей и холодной воды, монтируют на них тройники, через которые оборудуют отвод воды на все точки водопотребления. У такого типа разводки есть свои особенности.
Прежде всего, это небольшое количество труб. В комнатах будет размещено минимум труб, поэтому разводка может быть открытой. Данный вариант подходит, когда коттедж достаточно старый, вы не планируете перестройку и серьезный ремонт.
Бюджетность. Цена разводки воды в частном доме, если она тройниковая, будет невысокой по сравнению с коллекторной.
Желательно не открывать сразу все краны, поскольку в этом случае напор воды в последней точке будет недостаточным. Это весомый минус, поскольку если работает посудомойка и на кухне кто-то включит воду, пока вы принимаете ванну, из крана будет течь кипяток. Будьте готовы к таким сюрпризам, если выберете данный вид разводки, а также неправильно подберете сечение труб.
Однако если у вас маленький загородный коттедж или дачный домик, такое решение подойдет лучше всего.
- Коллекторная разводка труб воды в частном доме
Другое ее название – лучевая. Она идеально подходит, когда в коттедже 2-3 санузла, кухня, где установлены стиральная машинка и посудомойка. Потребуется применение двух коллекторов: одного для горячей, второго для холодной воды. От него к каждой водозаборной точке будет идти отдельная труба.
Особенностью лучевой разводки является необходимость в монтаже большого количества труб, поскольку к каждому сантехническому прибору будет подходить по 2 трубы (для горячей и холодной воды). Данное правило не относится к унитазу, стиральной и посудомоечной машинам, для которых достаточно подачи холодной воды. Если вы решите делать открытую систему, интерьер дома будет испорчен. Рекомендуется монтировать такой тип разводки при проведении строительных или ремонтных работ.
Затратный способ обустройства водоснабжения. Потребуется большое количество труб, стоимость которых выше, чем у изделий из полипропилена. Кроме того, их придется прятать под гипсокартонном, штрабить стены, а это дополнительные затраты.
Сложность установки. На монтаж вы потратите много времени и сил по сравнению с предыдущим видом разводки.
Напор воды всегда будет хорошим. Даже если вы откроете все краны в доме одновременно, давление воды не станет меньше. Поэтому можно не бояться, что, если вы пойдете в душ, пока работает посудомойка, вас ошпарит кипятком.
Есть возможность отремонтировать один кран, при этом не придется полностью перекрывать воду.
К числу минусов можно отнести следующие моменты: необходима большая площадь для коллекторов. Если у вас есть отдельная подсобка, то это не будет проблемой.
Кроме того, проблематично сливать воду из водопровода на зиму. Для этого потребуется компрессор, его подсоединяют к коллектору, причем как с холодной, так и с горячей водой.
Коллекторная разводка воды в частном доме – идеальный вариант, если у вас коттедж с несколькими этажами и имеет большую площадь.

- Комбинированная разводка
Если объединить лучевую и тройниковую разводку, получится комбинированная, которая сочетает в себе преимущества двух вышеописанных способов. Часть магистрали монтируют последовательно, затем соединяют в коллектор. Подобная система также называется смешанной. Такой подход позволяет снизить затраты, даже если в вашем коттедже много точек водопотребления, например, когда дом с двумя этажами и вам необходимо проложить трубы в другом крыле здания.
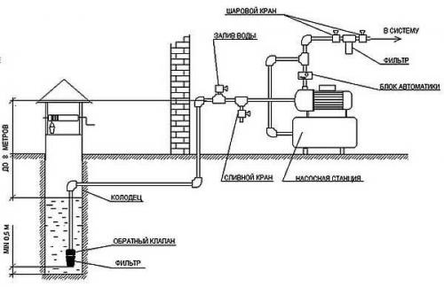
Водопровод в частном доме из скважины. Водоснабжение частного дома из колодца и скважины: прокладка труб
Любая из описанных схем водоснабжения частного дома реализуется при помощи насоса, подающего воду к дому. При этом должен быть сооружен трубопровод, соединяющий колодец или скважину с насосной станцией или накопительным баком. Существуют два варианта укладки труб — только для летнего использования или для всесезонного (зимнего).

Участок горизонтальной трубы может находится или ниже глубины промерзания грунта или его нужно утеплять
При устройстве летнего водопровода (для дачи) трубы можно укладывать поверху или в неглубокие канавы. При этом нужно не забыть в самой нижней точке сделать кран — сливать воду перед зимой, чтобы в мороз замерзшая вода не разорвала систему. Или сделать систему разборной — из труб, которые можно скатывать на резьбовых фитингах — а это — трубы ПНД. Тогда осенью все можно разобрать, скрутить и уложить на хранения. Весной все вернуть.
Прокладка труб водоснабжения по участку для зимнего использования требует больших затрат времени, сил и денег. Даже в самые сильные морозы они не должны замерзать. И решений два:
- уложить их ниже глубины промерзания грунта;
- закопать неглубоко, но обязательно обогреть или утеплить (а можно и то, и другое).
Глубокое заложение
Глубоко закапывать водопроводные трубы имеет смысл, если он промерзает не более чем на 1,8 м. Копать придется еще на 20 см глубже, а потом на дно насыпать песок, в который укладывать трубы в защитной оболочке: они будут подвергаться солидной нагрузке, ведь сверху почти двухметровый слой грунта. Раньше в качестве защитной оболочки использовали асбестовые трубы. Сегодня есть еще пластиковый гофорорукав. Он дешевле и легче, проще укладывать в него трубы и придавать нужную форму.

При укладке трубопровода ниже глубины промерзания приходится копать глубокую траншею длинной на всю трассу. Зато водоснабжение частного дома из колодца и скважины не будет замеразть зимой
Хоть подобный метод требует больших затрат труда, его используют, потому что он надежен. Во всяком случае, участок водопровода между колодцем или скважиной и домом стараются уложить именно ниже глубины промерзания. Трубу выводят через стенку колодца ниже глубины промерзания грунта и в траншее ведут под дом, там поднимают выше. Самое проблемное место — выход из земли в дом, можно дополнительно подогревать электрическим греющим кабелем. Он работает в автоматическом режиме поддерживая заданную температуру нагрева — работает только в том случае, если температура ниже заданной.
При использовании в качестве источника воды скважины и насосной станции, устанавливают кессон. Его закапывают ниже глубины промерзания грунта, в нем же ставят оборудование — насосную станцию. Обсадную трубу обрезают так, чтобы она была выше дна кессона, и трубопровод выводят через стенку кессона, тоже ниже глубины промерзания.

Прокладка труб водоснабжения в частном доме из скважины при устройстве кессона
Закопанный в земле водопровод сложно ремонтировать: придется окапывать. Потому постарайтесь заложить цельную трубу без стыков и сварных швов: именно они дают больше всего проблем.
Близко к поверхности
При неглубоком заложении земляных работ меньше, но в этом случае имеет смысл сделать полноценную трассу: траншею выложить кирпичом, тонкими бетонными плитами и т.п. На этапе строительства затраты значительные, но эксплуатация удобная, ремонт и модернизация — без проблем.
В этом случае трубы водоснабжения частного дома из колодца и скважины поднимаются до уровня траншеи и там выводятся. Укладываются они в теплоизоляции, предотвращающей их замерзание. Для страховки их можно еще и греть — использовать греющие кабели.
Один практический совет: если от погружного или скважинного насоса к дому идет кабель электропитания, его можно упрятать в защитную оболочку из ПВХ или др. материала, а потом прикрепить к трубе. Крепят через каждый метр куском скотча. Так вы будете уверены, что электрическая часть у вас в безопасности, кабель не перетрется и не порвется: при подвижках грунта нагрузка будет на трубе, а не на кабеле.
Герметизация входа в колодец
При организации водоснабжение частного дома из колодца своими руками, обратите внимание на заделку места выхода водопроводной трубы из шахты. Именно отсюда чаще всего грязная верховодка попадает внутрь.
