ЧТО такое канализационная насосная СТАНЦИЯ.. КНС с погружными насосами – решение проблем
- ЧТО такое канализационная насосная СТАНЦИЯ.. КНС с погружными насосами – решение проблем
- Канализационная насосная станция промышленная. Канализационная насосная станция RODLEX PUMPS® с обвязкой и насосами Grundfos, KSB, Pedrollo, Zenit, Willo, Dab. Приемные корпуса.
- Канализационная насосная станция для многоквартирного дома. Сферы применения и преимущества КНС
- Что такое КНС в строительстве. Виды КНС, типовые проекты и принцип работы
ЧТО такое канализационная насосная СТАНЦИЯ.. КНС с погружными насосами – решение проблем
Канализационные насосные станции и
Насосное оборудование
, которые оснащены такими устройствами, как погружные насосы, полностью удовлетворяют потребности организаций и предприятий по объемам перекачивания сточных вод в специальные резервуары. Именно такие устройства позволяют полноценно решить актуальную глобальную проблему современного человечества по сохранению здоровой экологической обстановки – чистоты водных ресурсов.
Как сообщает
Оптовый интернет магазин Профи Трейд
уникальность КНС на базе погружных насосов состоит в том, что они успешно работают даже в самых сложных условиях, где не могут справиться поверхностные насосы. Это касается работы на большой глубине, с агрессивными жидкостями и в условиях сложного рельефа. Более того, такая установка справляется и с сильнозагрязненными стоками с большой долей твердого включения различного происхождения. Именно поэтому такие станции успешно используются в жилом секторе и в промышленных организациях.
Именно потому, что канализационные насосные станции используются, зачастую, для самых тяжелых работ в водных стоках, погружные насосы являют собой водонепроницаемую, надежную и долговечную конструкцию. Это очень важно, ведь наполненная сточными водами емкость опустошается не сразу, а постепенно через нижнее небольшое отверстие. Весь процесс осложняется тем, что в сточной воде (особенно на промышленных объектах) присутствует машинное масло, песок и грязь, и другие примеси. Их и откачивает из приямка погружные насосы.
.
Канализационная насосная станция промышленная. Канализационная насосная станция RODLEX PUMPS® с обвязкой и насосами Grundfos, KSB, Pedrollo, Zenit, Willo, Dab. Приемные корпуса.

Компания RODLEX® производит комплектные (блочные) канализационные станции (КНС) в сборе с погружными насосами полной заводской готовности готовыми к монтажу. Вертикальные насосные станции выпускаются диаметром 1000, 1500, 2000 мм., высотой до 8 метров.
Канализационная насосная станция является незаменимым инженерным сооружением предназначенным для перекачивания под напором на необходимое расстояние промышленных, хозяйственно-бытовых, производственных, ливневых и дождевых сточных вод с разных геодезических высот.
Напорные насосные установки для канализации применяются и устанавливаются в случае, когда отвести сточные воды самотеком невозможно или расстояние до канализационной магистрали находится на большом расстоянии, когда необходимо поднять уровень входящего стока на необходимый уровень.
Насосные станции промышленного назначения: однокорпусные, многокорпусные, с сухой камерой, погружными насосами
КНС с трубной обвязкой в сборе без насосов
Готовые вертикальные колодцы под КНС с обвязкой для установки 2-х насосов фекального или дренажного типа. Комплект поставки включает в себя бесшовный корпус с крышкой, подводящий патрубок, напорный трубопровод, обратные клапана и задвижки.
Цена от 280 000 руб.
КНС с обвязкой, насосами, шкафами управления
Для удобного подбора необходимой вертикальной канализационной насосной станции мы подготовили полностью готовые решения заводского изготовления с корпусом, трубной обвязкой и насосами Grundfos, KSB, Zenit, Pedrollo готовыми к монтажу и подключению.
Цена от 350 000 руб.
Вертикальные шахты под КНС D 1400, 1500, 2000мм
Бесшовные и долговечные пластиковые корпуса, шахты и колодцы используемые в качестве приемного резервуара подземного типа для размещения насосных агрегатов и напорного трубопровода, фасонных частей к ним. Для размещения 1-го или 2-х погружных насосов.
Канализационная насосная станция RODLEX PUMPS®
Компания RODLEX® производит комплектные (блочные) канализационные станции (КНС) в сборе с погружными насосами полной заводской готовности готовыми к монтажу.
| Диаметр | Высота |
|---|---|
| 1000 мм. | до 8 метров |
| 1500 мм. | до 8 метров |
| 2000 мм. | до 8 метров |
Канализационная насосная станция является незаменимым инженерным сооружением, предназначенным для перекачивания под напором на необходимое расстояние промышленных, хозяйственно-бытовых, производственных, ливневых и дождевых сточных вод с разных геодезических высот.
Напорные насосные установки для канализации применяются и устанавливаются в случае, когда отвести сточные воды самотеком невозможно или расстояние до канализационной магистрали находится на большом расстоянии, когда необходимо поднять уровень входящего стока на необходимый уровень.
Готовые вертикальные колодцы
Готовые вертикальные колодцы под КНС с обвязкой для установки 2-х насосов фекального или дренажного типа.
| Компоненты |
|---|
| Бесшовный корпус с крышкой |
| Подводящий патрубок |
| Напорный трубопровод |
| Обратные клапана и задвижки |
Для удобного подбора необходимой вертикальной канализационной насосной станции мы подготовили полностью готовые решения заводского изготовления с корпусом, трубной обвязкой и насосами Grundfos, KSB, Zenit, Pedrollo готовыми к монтажу и подключению.
Бесшовные корпуса
Бесшовные и долговечные пластиковые корпуса, шахты и колодцы используемые в качестве приемного резервуара подземного типа для размещения насосных агрегатов и напорного трубопровода, фасонных частей к ним.
Для размещения 1-го или 2-х погружных насосов.
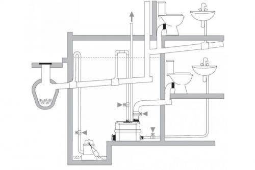
Канализационная насосная станция для многоквартирного дома. Сферы применения и преимущества КНС
Сложность устанавливаемой канализационной станции зависит от условий их использования, модели будут различаться эксплуатационными характеристиками и общей сложностью конструкций. Так, для бытового использования в частных домах подойдет простая КНС, сложная категория будет востребована на производственных предприятиях с большими объемами стоковых отходов.

Особенно актуально использование канализационной насосной станции при прокладке коммуникационных сетей в неблагоприятных для этого условиях.
- Использование на большом расстоянии (до 100 метров) между коллектором и точкой вывода канализации при горизонтальном расположении.
- Объект находится ниже уровня выгребной ямы или коллектора, появляется возможность устанавливать бытовую технику и санитарно-техническое оборудование в подвальных помещениях. Монтаж бытовой техники в подвале позволяет экономить жилую площадь помещений.
- Использование трубопровода небольшого диаметра (30-50 мм) при подключении канализационных насосов с измельчителем.
- Предотвращение проникновения зловоний и неприятных запахов в жилое помещение с помощью угольных фильтров.
Среди владельцев частных домов оборудование востребовано при отсутствии канализационных коллекторов.
В отличие от септиков, насосные станции не накапливают стоки. После установки КНС не нужно периодически откачивать накопившуюся жидкость, не нужно оборудовать фильтрационные поля. Принцип работы КНС состоит в механическом перекачивании жидких отходов, поэтому можно свободно пользоваться средствами бытовой химии.
Что такое КНС в строительстве. Виды КНС, типовые проекты и принцип работы
Канализационная насосная станция – это комплекс гидротехнического оборудования, с помощью которого происходит утилизации бытовых, промышленных, сточных вод, если самостоятельное движение отходов невозможно. КНС устанавливают в промышленных установках, а также в частном порядке — в домах частного типа. Типовой проект КНС содержит в себе всю необходимую документацию и регламентирован нормативными документами.
Основные причины установки КНС
Конструкция представляет собой емкость, внутри которой погружены насосы, трубопроводы, патрубки. Станции имеют люк и лестницу для удобного обслуживания.

КНС производят импортные и российские фирмы. Большое внимание при производстве уделяется экологичности товара.
Когда нужны КНС:
- Если выгребная яма далеко от источника сточных вод.
- Если выгребная яма ниже, чем трубопровод.
- Если нет возможности создать естественный отвод.
- Отходы слишком медленно перемещаются по трубам.
Все станции работают по схожему принципу. В большинстве случаев работа полностью на автоматическом управлении. Предусмотрен перевод работы на ручное управление. Бытовые отходы поступают в приемный бак, после выкачиваются насосами в трубопровод.

В КНС есть обратный клапан , чтобы не было прихода воды в резервуар. Есть резервный насос, который начинает работу, если объем стоков превышает допустимый уровень. Контроль за объемом отходов регулируют поплавковые датчики, которые расположены на нескольких уровнях.
Принцип работы датчиков на каждом уровне
- Первый уровень — указывает на маленький объем стоков.
- Второй уровень — подключаются насосы в обычном режиме для перекачки отходов.
- Третий уровень — подается сигнал, если уровень жидкости превышен. В данном случае включается резервный насос.
- Четвертый уровень — сигнализирует, что насосы не справляются с поступлением отходов. Включается аварийный сигнал. Когда заканчивается откачка отходов из бака уровень воды опускается до первого датчика.

Установка канализационных насосных станций даст вам комфортное проживание в доме и экологическую безопасность на участке.
Канализационные системы последнего поколения компактные и не занимают много места.
Преимуществами установки КНС
- Быстрый сбор и удаление стоков.
- Экономия электроэнергии
- КНС работают тихо, не создают лишних вибраций.
- Легкий монтаж и демонтаж оборудования.
- Экологически безопасное оборудование.
- Компактность, герметичность.

Классификация
Насосные станции делают из полипропилена и стеклопластика. По типу установки делят на вертикальные, горизонтальные, с самовсасывающими насосами. А также на наземные, заглубленные, частично заглубленные.

По способу управления:
- Дистанционные. Управление работой происходит удаленно.
- Автоматические. Управление происходит с помощью датчиков.
- На ручном управлении. Запуск и остановка работы оборудования осуществляется вручную.
Канализационные насосные станции делят на 4 типа:
- Бытовые . Сборка рассчитана на эксплуатацию в нормальных условиях.
- Ливневые . Есть дополнительные очистительные системы.
- Промышленные . Изготавливают из более прочных материалов, которые устойчивы к агрессивным химическим отходам.
- Дренажные .

Монтаж и обслуживание КНС
Производители обещают работу КНС до 50 лет. Покупая станцию при строительстве дома, вы создаете комфортное канализационное обслуживание в будущем. Бытовые КНС бывают разного размера: мини, средние, большие.

Для мини станций не нужна особая подготовка, обслуживается она автоматически. Это герметичную ёмкость, которую крепятся в туалетной комнате или подвальном помещении. К ней подводят трубы и подключают к источнику питания.
Принцип работы мини станции простой – датчики реагируют на поступление воды в резервуар, запускается работа двигателя и воды выходят в централизованную систему водоотведения.
Самые популярные по применению – средние и большие КНС. Они требуют подготовительной работы, в дальнейшем систематическое обслуживание специалистами.
При выборе установки следует учесть: какой примерный объем жидкости будет наполнять бак, вязкость жидкости, которая будет перекачиваться, гидравлические особенности местности, место расположение КНС. При покупке установки рекомендуется проконсультироваться с профессионалами и монтажерами.

С первого взгляда монтаж установки кажется легким процессом, однако есть технические моменты и лучше обратиться за помощью в сервисный центр. Самый распространенный метод установки КНС – это погружение емкости, датчиков, насосов под землю, а панель управление оставляют сверху.
Как происходит процесс установки канализационной насосной станции
При монтаже стоит учитывать:
- Станция должна быть удалена от жилого дома не менее, чем на 20 метров.
- Станция размещается на бетонный фундамент.
- Для уплотнения установки используйте грунт с частицами от 3 миллиметров. Трамбуйте слои каждые полметра.

Готовим котлован для накопительного бака. При размещении бака нужно учитывать, что он должен быть выше земли минимум на 100 сантиметров. В котловане также необходимо сделать песчаную подушку около 1.5 метров. Погружаем накопительный бак и подключаем комуникации. Засыпаем грунт трамбуя его.