Как правильно вывести канализацию из частного дома. Что необходимо знать перед проектированием
- Как правильно вывести канализацию из частного дома. Что необходимо знать перед проектированием
- Как вывести канализацию через фундамент. Проведение канализации через ленточный фундамент
- Наружная канализация в частном доме. Как сделать канализацию в частном доме?
- Вывод канализации из частного дома. Обстоятельства и схема укладки внешней канализации
- Разводка канализации в частном доме. Правила обустройства канализации в квартире
- Вывод канализации через стену
- Как провести канализацию в уже построенном доме. Вариант #1 — выгребные ямы разных конструкций
Как правильно вывести канализацию из частного дома. Что необходимо знать перед проектированием
Для проектирования системы нужно дать ответы на такие вопросы:
- Есть ли возможность подключиться к городской магистрали, придётся ли производить только сбор канализационных отходов или необходимо организовать ещё и их очистку?
- Какой объём сточных вод будет перерабатываться? Это зависит как от количества и сезонности проживающих в доме людей, так и от наличия и разновидности водоразборных точек.
Рисунок для наглядности — расход воды в сутки
- Следует выяснить глубину, на которую промерзает почва. Это нужно для правильного заглубления канализационного выпуска.
- УГВ – отметка, на которой располагается зеркало грунтовых вод (как проводятся инженерно-геологические изыскания читайте в статье). Если они расположены высоко, на приусадебном участке может сооружаться ещё и канализация для сбора ливневых стоков.
- Необходимо оценить, способствует ли рельеф участка тому, чтобы стоки могли сливаться самотёком. В противном случае, придётся задействовать фекальный насос , и нужно сразу определить место, где он должен быть установлен.
Как правильно сделать канализацию в частном доме, если придётся пользоваться насосом
- При устройстве очистных сооружений, нужно сразу определиться с их типом, рассмотреть возможность доступа ассенизационной техники (как проводится откачка и чистка септиков читайте в статье).
- Необходимо точно установить тип грунта на участке, в соответствии с которым принимается решение либо по устройству дренажного колодца , фильтрационных траншей или полей.
- Требуется начертить схему с указанием всех видов сантехнического оборудования. При этом надо учитывать вариант прокладки трубопровода: внутри пола или поверхностно, чтобы понимать, придётся ли производить какие-либо демонтажные работы.
Для чего нужна схема с разводкой внутренней сети? В первую очередь, чтобы правильно рассчитать количество необходимых материалов и точно определить место их нахождения в системе.
Как вывести канализацию через фундамент. Проведение канализации через ленточный фундамент
Планировать и укладывать канализационные трубы лучше и проще до процесса заливки бетонной ленты основания. При этом способ укладки коммуникации зависит от типа ленточного фундамента:
- При мелкозаглубленном основании трубы укладывают ниже уровня промерзания грунта, непосредственно под фундаментом. Траншею рекомендуется вырыть до строительства ленты. Причем отрезок трубы, который будет расположен под ленточным основанием, рекомендуется поместить в гильзу, которая представляет собой обрезок металлической трубы.
- Фундамент ленточный глубокого заложения требует выполнения действий другого характера. В опалубке пропиливают отверстие, в которое вставляют асбестоцементную или стальную гильзу. Ее закрепляют в опалубке и заливают бетонным раствором. В эту гильзу в последствие вставляют трубы коммуникаций.
Ленточный фундамент позволяет прокладывать канализационные трубы уже после заливки основания. Выполнение работ такого типа требует больших сил и затрат, но все можно сделать своими руками. Процесс может осуществляться двумя способами: под фундаментом делают подкоп и через него проводят трубы или сверлят отверстие в бетонной ленте.

Канализация в ленточном фундаменте
Первый способ используется в том случае, если фундамент имеет большую толщину. В этом случае роют траншею в том месте, где планируется выведение канализационных труб наружу. Для облегчения работы используют метод наклонного бурения. Бур заводится под фундамент на определенную глубину и под нужным углом.Второй способ выполняется следующим образом:
- На фундаменте делают отметку, где должна проходить канализационная труба. Отверстие должно иметь размеры, позволяющие вставить защитную гильзу для трубы.
- С помощью перфоратора в бетоне выдалбливают отверстие.
- Встречающиеся прутья арматуры высверливают посредством дрели.
- В подготовленный канал вставляют гильзу и заделывают пространство вокруг нее цементным раствором.
- Через защитную гильзу проводят канализационную трубу, а зазор между ними заполняют монтажной пеной. Она служит хорошим теплоизолятором.
Наружная канализация в частном доме. Как сделать канализацию в частном доме?
Обеспечение комфорта и качественной жизни в загородном доме является важным моментом для любого владельца такой постройки. Одним из факторов, которые позволяют обеспечить комфортную жизнь, является удобство оттока использованной воды и продуктов жизнедеятельности. Правильно рассчитанная на стадии проектирования и впоследствии правильно построенная канализация в частном доме будет залогом длительной эксплуатации, при которой не возникнет никаких проблем. Подобную конструкцию можно создать своими руками, если подойти к вопросу с максимальной ответственностью.

Основные требования
Во избежание каких-либо проблем в процессе создания канализации в собственном доме, лучше всего максимально следовать в данном процессе всем требованиям и стандартам, что расписаны в нормативной документации – СНиП. В этом случае все точно будет функционировать безотказно на протяжении длительного периода времени.
В какой угодно постройке, где проложен водопровод и есть забор воды, должна быть выполнена система, которая будет выводить стоковые массы. Механизмы водоотвода должны быть созданы и на участках. В целом такая сеть сможет не только обеспечить комфортную жизнь, но и не навредит экологии, а также существенно увеличит время пользования зданием.
Обычно канализация состоит из следующих систем:
- ливневой, которая отводит воду;
- наружной;
- внутренней.
Их необходимо проложить так, чтобы были соблюдены различные строительные сантребования к канализации в собственном доме.
Среди таких требований можно назвать:
- обеспечение нормального очищения;
- отсутствие риска в вопросе затопления постройки;
- обеспечение необходимого объема сточных вод;
- герметичное накапливание и транспортировка сточных вод.
Если говорить о требованиях к внутренним системам такого типа, то состоять они должных из следующих элементов:
- стояка, к которому прикрепляются все трубы;
- разведения труб, что осуществляет перекачивание сточных вод в направлении стояка;
- сантехприборов для водоотвода.


По нормам в механизме, часть которого расположена в постройке, должно быть достаточно места для свободного транспортирования жидкости от мест, где осуществляется слив до труб, которые осуществляют вывод за пределы постройки. При прокладывании канализации внутри постройки используют трубы из чугуна либо каких-то полимеров. На выходе размер такой трубы должен составлять 11 сантиметров. Естественно, что в данном механизме должна быть еще и вентиляция. Обычно ее проводят через стояк. Над каждым элементом делают вытяжное место, выходящее на крышу.


Если говорить о проекте наружных систем, то его создание осуществляется с учетом требований, прописанных в СНиП за номером 2.04.03-85.
По этому нормативному документу следует учесть следующие моменты:
- в механизме должны устанавливаться колодцы для обслуживания и очищения;
- для вычищения стоков нужна установка с применением биометодов;
- если речь идет о самотечной сети, то применяют полимерные, керамические или асбестоцементные трубы;
- трубы, которые размещены за границами постройки, должны быть в диаметре около пятнадцати сантиметров и заложены на уровне десяти-двенадцати сантиметров;
- если в строении мало этажей, то можно скооперировать несколько домов в единую сеть;
- если нельзя устроить самотечную систему, то лучше сделать выбор в пользу напорной канализации.


Еще один важный момент – подбор конструкции. Это действительно важно при проектировании канализационной автономной сети.
Тут могут быть три варианта септиков, которые используются:
- аэротенки;
- накопительный септик;
- очистной.
Теперь скажем о них чуть подробнее. Аэротенки – новейшие решения с использованием нескольких очистительных методик. После применения подобного септика жидкость очищается почти до 100-процентного значения. Воду можно легко выводить в землю, водоем и применять для полива. Септик накопительной категории является улучшенным вариантом выгребной ямы, в которой очистка не осуществляется, а лишь собираются стоки. Когда септик наполняется до определенного уровня, появляется необходимость его очистки. Обычно это осуществляется при помощи специального ассенизаторского оборудования.
Если говорить об отличиях от выгребной ямы, то никакой фильтрации в грунт в этом случае не осуществляется. Это значит, что никакого вреда экологии не наносится. Но все же данный вид септика применяется в последние годы крайне нечасто по причине дороговизны стоимости услуг специальной ассенизаторской техники. Такой тип можно использовать лишь тогда, если в доме вы проживаете сравнительно нечасто.
Вывод канализации из частного дома. Обстоятельства и схема укладки внешней канализации
Наружная часть канализационной системы в частном доме соединяет трубопроводной сетью выходное отверстие внутреннего стока с емкостью для накопления отходов, расположенной на участке, либо с центральной канализацией. О внутренней разводки в доме читайте в статье «Прокладка внутренней канализации в частном доме своими руками, схема монтажа и разводки канализационных труб» . Укладка внешних канализационных труб осуществляется по разработанной заранее схеме, учитывающей следующие обстоятельства:
- особенности рельефа местности;
- погодные условия;
- удаленность колодцев и водоемов;
- общий объем стоков, зависящий от количества постоянно проживающих в доме людей;
- глубину промерзания почвы и ее состав;
- пути подъезда машины ассенизатора при необходимости.
В схеме укладки внешней канализации обязательно нужно предусмотреть ее вентиляцию, так как в противном случае с течением времени неприятные запахи будут проникать в жилые помещения. О правилах устройства вентиляции канализации читайте в статье «Как правильно сделать своими руками вентиляцию канализации в частном доме» . Вентиляция обустраивается с помощью фановой трубы, которую можно расположить на крышке септика или на участке трубопровода, проходящего от дома к накопительной емкости стоков.

Схема обустройства автономной наружной канализации
Септик оборудуется в нижней точке геологического рельефа местности участка. Такое расположение позволяет наиболее оптимально выполнить монтаж наружной канализации. Ее следует прокладывать по прямой линии к расположению выходной трубы внутренней системы удаления сточных вод.
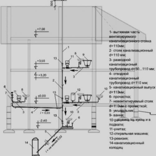
Разводка канализации в частном доме. Правила обустройства канализации в квартире

Так как замена канализации будет происходить в многоквартирном доме, в котором расположенные друг над другом квартиры имеют общий стояк, то не забудьте оповестить соседей о предстоящем проведении работ. Ведь вы доставите им ряд неудобств, о чем лучше предупредить.

Кроме того, придется договориться с организацией, занимающейся обслуживанием дома, об отключении подачи воды. Так, вы как минимум обезопасите себя от деятельности забывчивых соседей, связанной с санузлом.
С чисто технической точки зрения необходимо учесть следующие нюансы.
Многие специалисты не рекомендуют производить замену чугунного стояка без особой надобности, так как этот материал действительно прочный, а демонтаж трубы из чугуна – сложный процесс, который в случае необходимости лучше предоставить профессионалам.Чугунный стояк
Современным материалом, наиболее подходящим для монтажа собственными силами, являются трубы и фитинги, выполненные из пластика.Трубы и фитинги из пластика
Важным условием при монтаже разводки является соблюдение уклона на каждый погонный метр трубопровода. Величина наклона зависит от диаметра трубы. Если сечение труб составляет 5 см, то уклон должен быть около 3 см, при диаметре 11 см – 2 см. Изменение наклона не стоит допускать как в большую, так и в меньшую стороны, потому что это в итоге будет приводить к засору.Уклон труб
Диаметр труб зависит от их назначения. Стояк, который будет принимать на себя стоки в больших порциях, должен иметь сечение 100-110 мм. Это касается, например, вертикальной трубы, собирающей сточные воды унитаза, стиральной и посудомоечной машин.
Если установка последней не планируется, а ванная комната имеет отдельный стояк, то вертикальный трубопровод, принимающий воду из кухни, может иметь диаметр 5 см
Для канализационной разводки лучше применять трубы диаметром в 4-5 см.
Важно учитывать, что канализационная система в процессе эксплуатации подвержена динамике. По этой причине при раструбном соединении необходимо вставлять гладкий конец одной трубы в раструб другой не полностью, оставляя зазор в 10 см. Это компенсирует увеличение длины труб при росте температуры
Другая динамика связана с создание в трубопроводе внутреннего напряжения, что регулируется двумя видами крепления стояка при помощи хомутов, о чем будет сказано ниже.
На трубах, отводящих воду из кухонных раковин и посудомоечных машин, рекомендуется устанавливать жироуловители.
Из всех сантехнических приборов в самой нижней точки внутриквартирной канализационной сети должен находиться унитаз. Обязательным является наличие гидрозатворов после сантехники, в которых остается жидкость, препятствующая проникновению в помещение зловонных запахов.Гидрозатвор для канализации
Если в процессе эксплуатации старой сети из сливов сантехники исходил характерный запах, а во время спуска воды из унитаза или стиральной машины из труб раздавался громкий хлюпающий звук, то это говорит о плохой вентиляции стояка. Возможно, забилась фановая труба. Тогда необходимо вызвать слесаря из обслуживающей ваш дом организации. Однако в некоторых случаях простой чистки вентиляции недостаточно. Тогда стояк оборудуют обратным клапаном.Обратный клапан для канализации
После того как произведены все замеры, составлена схема, учитывая все нюансы, и подобраны и куплены необходимые материалы, можно приступать к процессу демонтажа, если речь идет о замене старой сети.
Вывод канализации через стену
Процесс сооружения трубопровода своими руками на самом деле простой, особенно если тщательно разобраться в том, как осуществляется его прокладка.
Первое, что вы должны понять, это то, что нужно позаботиться не только о внутренней и внешней системе, но и произвести вывод канализационной трубы из дома.
Так выглядит вывод канализационной трубы из дома
Организация вывода канализации из дома
Перед тем, как перейти к подробному описанию того, как вывести канализационную трубу из дома, не помешает ознакомиться с основными требованиями к данному процессу.
- Если в плане частного дома не предусмотрено отверстие, необходимое для прокладывания труб, через которые внутренняя сточная вода выходит наружу, то нужно будет пробивать его через готовый фундамент.
Вывод через фундамент
Правильный угол наклона канализации
Утеплительный материал для трубы
Пошаговая инструкция «Как вывести канализационную трубу из дома»
Вывод канализации из частного дома заключается в том, что выполняется монтаж пограничной части системы, соединяющей отходящие от стояков трубы с септиком.
Выводить их стоит через толщу фундамента на глубине ниже промерзания грунта.
Так выглядит схема (чертеж) вывода трубы
Итак, как обеспечить выход канализационной трубы из дома правильно? Пошаговая инструкция:
- сначала роется траншея в месте, где по схеме должны быть соединены внутренняя и наружная системы;
Так делается траншея для вывода трубы
Так выглядит отверстие, пробитое в фундаменте
Гильзы, установленные в фундамент
Дополнительные работы по выведению домашней канализации
После того, как внутри частного дома все работы по соединению сантехнических приборов и отводящих труб завершены, отверстие в фундаменте удалось сделать, и организован вывод канализации, можно приступать к непосредственному монтажу отводящих коммуникаций.
Этот процесс заключается в подключении трубопровода к очистительным сооружениям, роль которых выполняют выгребные ямы и септики.
Труба, подведенная к септику
Как уже стало понятно, на выводе канализации из дома все не заканчивается.
Еще нужно вырыть траншею, куда будут уложены трубы, по которым стоки доберутся до септика.
Ее глубина должна быть не более 50 см, что же касается длины, то она зависит от отдаленности очистительной системы от дома.
Не стоит забывать о том, что для обеспечения самотечного стекания воды нужно располагать все трубы под уклоном.
Это означает, что если в начале глубина траншеи составляла ½ м, то далее придется ее углублять на 2-2,5 см.
Траншея для канализационной трубы
По большому счету, провести автономную канализационную систему — задача выполнимая.
Главное в этом деле, правильно составить схему разводки, провести монтажные работы в соответствии с ней.
Стоит отметить, что на канализации экономить нельзя, потому что в противном случае она может функционировать с перебоями или вовсе выйти из строя.
И наверняка вам не захочется полностью переделывать систему, или какую-то ее часть, когда в местах прохождения труб будут разбиты клумбы с цветами или возведены хозяйственные постройки.
Как провести канализацию в уже построенном доме. Вариант #1 — выгребные ямы разных конструкций
Самый дешевый вариант – сооружение системы, дополненной колодцем с фильтрующим дном. Он представляет собой яму, стенки которой выложены, подобным ему материалом или даже. Дно остается свободным, на него насыпают метровый фильтр из песка и гравия мощностью 1 м.
Нечистоты поступают в емкость, жидкость частично впитывается в нижележащие грунтовые слои. Твердый осадок, не прошедший сквозь грунтовый фильтр, накапливается и периодически выкачивается. Достоинством такой схемы помимо невысокой стоимости считается предельная простота обустройства.
Зато недостатков очень много. Прежде всего это опасность заражения окружающей среды стоками, угроза которого возникает при затоплении системы паводковыми водами или при разгерметизации конструктивных частей. По нормативам очищать в этой конструкции разрешено только серые стоки — загрязненные воды из кухни, бани и т.д.
Выгребная яма с дном фильтрующего типа считается наиболее простым вариантом утилизации стоков, но при этом и далеко небезопасным
Установка выгребной ямы без дна возможна только на песчаных грунтах, обладающих достаточными фильтрационными качествами для впитывания очищенной сточной воды. Между условным дном поглощающего колодца — этого канализационного сооружения и уровнем грунтовой воды на участке должно быть не меньше метровой толщи грунта.
Выгребную яму целесообразно строить на даче или для канализации загородного дома, в котором установлено минимальное количество сантехприборов.