Как сделать разводку канализации в частном доме. Чертёж – всему голова
- Как сделать разводку канализации в частном доме. Чертёж – всему голова
- Внутренняя разводка канализации в частном доме. Как сделать канализацию в частном доме?
- Схема внутренней канализации в частном доме. Общая структура канализации
- Как сделать разводку канализации в доме. Вариант #1 — выгребные ямы разных конструкций
- Схема канализации в одноэтажном частном доме. Какую канализацию лучше сделать в частном доме
Как сделать разводку канализации в частном доме. Чертёж – всему голова
Проект канализации, выполненный по всем правилам, обеспечивает наилучший способ водоотведения для частного дома. Но домовладельцы не всегда готовы обращаться за помощью к профессионалам и часто предпочитают решать проблему самостоятельно.
С чего начать, если вы хотите сделать дренаж своими руками? Разумеется, с чертежа. Но чтобы сделать это грамотно, необходимо выбрать подходящую схему, которая будет соответствовать реальным условиям, а также понимать, как должна работать система.

Что необходимо знать перед проектированием
Чтобы спроектировать канализацию, необходимо ответить на следующие вопросы:
- Какой объем сточных вод будет очищаться? Это зависит как от количества и сезонности проживающих в доме людей, так и от наличия и типа водоразборных точек.
- Возможно ли подключение к общественной сети, нужно ли только собирать сточные воды или необходимо также организовать их очистку?
- УГВ - это уровень, на котором находятся грунтовые воды (см. статью для получения дополнительной информации о геологических и инженерных изысканиях). Если они расположены достаточно высоко, то можно создать еще и дренажную систему для сбора дождевых стоков.
- Вы должны оценить, подходит ли рельеф участка для самотечного дренажа. Если нет, то потребуется фекальный насос, причем место его установки должно быть определено в самом начале. В большинстве случаев, установка насосной станции является необходимостью.
- Проверьте, насколько глубоко промерзает грунт. Это необходимо для правильного заглубления канализационного слива.
- Необходимо точно определить тип почвы на участке, на основе которого вы решите сделать дренажный колодец, фильтрующую канаву или поле.
- Необходимо составить план с указанием всех типов гидравлического оборудования. Примите во внимание, будет ли трубопровод проложен в полу или на поверхности, чтобы определить необходимость демонтажных работ.
- При строительстве очистных сооружений необходимо определиться с типом очистных сооружений, учесть возможность подъезда ассенизаторских машин (читайте статью о том, как происходит откачка и очистка септиков).
Внутренняя разводка канализации в частном доме. Как сделать канализацию в частном доме?
Обеспечение комфорта и качественной жизни в загородном доме является важным моментом для любого владельца такой постройки. Одним из факторов, которые позволяют обеспечить комфортную жизнь, является удобство оттока использованной воды и продуктов жизнедеятельности. Правильно рассчитанная на стадии проектирования и впоследствии правильно построенная канализация в частном доме будет залогом длительной эксплуатации, при которой не возникнет никаких проблем. Подобную конструкцию можно создать своими руками, если подойти к вопросу с максимальной ответственностью.

Основные требования
Во избежание каких-либо проблем в процессе создания канализации в собственном доме, лучше всего максимально следовать в данном процессе всем требованиям и стандартам, что расписаны в нормативной документации – СНиП. В этом случае все точно будет функционировать безотказно на протяжении длительного периода времени.
В какой угодно постройке, где проложен водопровод и есть забор воды, должна быть выполнена система, которая будет выводить стоковые массы. Механизмы водоотвода должны быть созданы и на участках. В целом такая сеть сможет не только обеспечить комфортную жизнь, но и не навредит экологии, а также существенно увеличит время пользования зданием.
Обычно канализация состоит из следующих систем:
- ливневой, которая отводит воду;
- наружной;
- внутренней.
Их необходимо проложить так, чтобы были соблюдены различные строительные сантребования к канализации в собственном доме.
Среди таких требований можно назвать:
- обеспечение нормального очищения;
- отсутствие риска в вопросе затопления постройки;
- обеспечение необходимого объема сточных вод;
- герметичное накапливание и транспортировка сточных вод.
Если говорить о требованиях к внутренним системам такого типа, то состоять они должных из следующих элементов:
- стояка, к которому прикрепляются все трубы;
- разведения труб, что осуществляет перекачивание сточных вод в направлении стояка;
- сантехприборов для водоотвода.


По нормам в механизме, часть которого расположена в постройке, должно быть достаточно места для свободного транспортирования жидкости от мест, где осуществляется слив до труб, которые осуществляют вывод за пределы постройки. При прокладывании канализации внутри постройки используют трубы из чугуна либо каких-то полимеров. На выходе размер такой трубы должен составлять 11 сантиметров. Естественно, что в данном механизме должна быть еще и вентиляция. Обычно ее проводят через стояк. Над каждым элементом делают вытяжное место, выходящее на крышу.


Если говорить о проекте наружных систем, то его создание осуществляется с учетом требований, прописанных в СНиП за номером 2.04.03-85.
По этому нормативному документу следует учесть следующие моменты:
- в механизме должны устанавливаться колодцы для обслуживания и очищения;
- для вычищения стоков нужна установка с применением биометодов;
- если речь идет о самотечной сети, то применяют полимерные, керамические или асбестоцементные трубы;
- трубы, которые размещены за границами постройки, должны быть в диаметре около пятнадцати сантиметров и заложены на уровне десяти-двенадцати сантиметров;
- если в строении мало этажей, то можно скооперировать несколько домов в единую сеть;
- если нельзя устроить самотечную систему, то лучше сделать выбор в пользу напорной канализации.


Еще один важный момент – подбор конструкции. Это действительно важно при проектировании канализационной автономной сети.
Тут могут быть три варианта септиков, которые используются:
- аэротенки;
- накопительный септик;
- очистной.
Теперь скажем о них чуть подробнее. Аэротенки – новейшие решения с использованием нескольких очистительных методик. После применения подобного септика жидкость очищается почти до 100-процентного значения. Воду можно легко выводить в землю, водоем и применять для полива. Септик накопительной категории является улучшенным вариантом выгребной ямы, в которой очистка не осуществляется, а лишь собираются стоки. Когда септик наполняется до определенного уровня, появляется необходимость его очистки. Обычно это осуществляется при помощи специального ассенизаторского оборудования.
Если говорить об отличиях от выгребной ямы, то никакой фильтрации в грунт в этом случае не осуществляется. Это значит, что никакого вреда экологии не наносится. Но все же данный вид септика применяется в последние годы крайне нечасто по причине дороговизны стоимости услуг специальной ассенизаторской техники. Такой тип можно использовать лишь тогда, если в доме вы проживаете сравнительно нечасто.
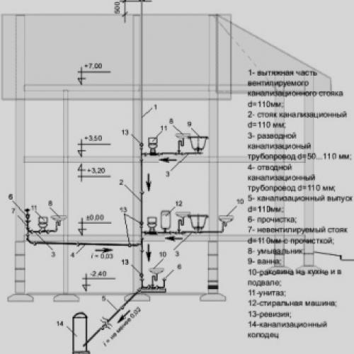
Схема внутренней канализации в частном доме. Общая структура канализации
В многоэтажных жилых домах канализационная система имеет достаточно сложную организацию. Предпочтительно, чтобы к началу монтажных работ был составлен проект, в котором должны быть обозначены:
- Аксонометрический план расположения трубопроводов и точек подключения.
- Перечень сантехнического оборудования и бытовой техники, которые будут подключены к системе стоков.
- Пропускная способность труб, направление потока и значение уклона на всех участках.

Структура системы представлена деревом, от ствола которого расходятся магистральные трубопроводы, в которые осуществляется врезка точек подключения. Все ветви системы располагаются на нескольких уровнях, условно — на уровне пола каждого этажа. Количество и протяжённость ветвей практически не ограничены, однако все они должны иметь уклон в сторону стояка 3% для труб диаметром 50 мм и 2% для магистралей 110 мм.
В классическом варианте устраивается только один стояк, к которому подключены все ветви системы. Если сброс стоков осуществляется в септик , имеет смысл производить раздельный сброс чисто органических стоков и включающих большую концентрацию бытовых чистящих средств с содержанием хлора. Также устройство двух стояков может быть целесообразным при оснащении крупных загородных домов, где на одном этаже расположено более двух санузлов. В таких случаях каждый стояк подключается к собственному локальному очистному сооружению.
Пример схемы канализации в частном доме: 1 — колено 90°; 2 — прямой тройник 90°; 3 — труба внутренней разводки; 4 — заглушка; 5 — люк для прочистки; 6 — невентилируемый стояк; 7 — отводная труба; 8 — ревизия; 9 — вентилируемый стояк
При определении структуры отдельных веток следует руководствоваться тем принципом, что ближе к стояку должны размещаться точки с наибольшим объёмом залпового сброса. Например, если между унитазом и стояком врезать слив раковины или ванны, то при спуске бачка образуется разрежение, которое вытянет воду из гидрозатвора сифона. Именно по этой причине сброс воды из унитазов чаще всего осуществляется напрямую в стояк.
Как сделать разводку канализации в доме. Вариант #1 — выгребные ямы разных конструкций
Самый дешевый вариант – сооружение системы, дополненной колодцем с фильтрующим дном. Он представляет собой яму, стенки которой выложены, подобным ему материалом или даже. Дно остается свободным, на него насыпают метровый фильтр из песка и гравия мощностью 1 м.
Нечистоты поступают в емкость, жидкость частично впитывается в нижележащие грунтовые слои. Твердый осадок, не прошедший сквозь грунтовый фильтр, накапливается и периодически выкачивается. Достоинством такой схемы помимо невысокой стоимости считается предельная простота обустройства.
Зато недостатков очень много. Прежде всего это опасность заражения окружающей среды стоками, угроза которого возникает при затоплении системы паводковыми водами или при разгерметизации конструктивных частей. По нормативам очищать в этой конструкции разрешено только серые стоки — загрязненные воды из кухни, бани и т.д.
Выгребная яма с дном фильтрующего типа считается наиболее простым вариантом утилизации стоков, но при этом и далеко небезопасным
Установка выгребной ямы без дна возможна только на песчаных грунтах, обладающих достаточными фильтрационными качествами для впитывания очищенной сточной воды. Между условным дном поглощающего колодца — этого канализационного сооружения и уровнем грунтовой воды на участке должно быть не меньше метровой толщи грунта.
Выгребную яму целесообразно строить на даче или для канализации загородного дома, в котором установлено минимальное количество сантехприборов.
Схема канализации в одноэтажном частном доме. Какую канализацию лучше сделать в частном доме
Устройство канализации в частном доме состоит из разводки по помещениям и наружной сети. Внутри система может включать в себя один или несколько вертикальных стояков, к которым примыкают трубы с меньшим диаметром. По этим трубам, обязательно располагаемым с уклоном, сточная вода движется самотёком от точек расхода до места общего слива.
Устройство самотечной канализации в строящемся доме
Какие нюансы учесть при разводке труб
Попадая в стояк, вода под действием гравитации опускается вниз и поступает во внешний трубопровод большего диаметра, соединённый либо с центральной магистралью, либо с локальным накопительным или очистным сооружением.
При разработке схемы нужно учитывать несколько простых правил:
- Лучший вариант разводки для частного владения – это когда в схеме присутствует всего один стояк. А это возможно только тогда, когда санузел и кухня сконцентрированы в одной части дома и их разделяет только перегородка. Именно поэтому в квартирах эти помещения чаще всего располагаются рядом.
- К стояку идёт подводящая труба, к которой, как на фото снизу, подсоединяются все сантехнические приборы. Уклон труб диаметром до 80 мм должен составлять порядка 2 см на 1 м/п.
- Точки слива воды из приборов должны располагаться так, чтобы унитаз находился к стояку ближе всего – в этом случае, место его присоединения к отводной трубе окажется в самой низкой точке. Это важно, так как в противном случае стоки из унитаза могут попадать в отверстия для слива из других приборов.
Стояк в санузле
Совет: на трубе, идущей от посудомоечной машины и кухонной раковины, желательно установить жироуловитель.
Схема с жироуловителем
- По возможности, нужно избегать лишних поворотов трубопровода, так как именно в этих местах чаще всего и случаются засоры. Но если без них не обойтись, поворот нужно сделать как можно более плавным. Так, чтобы получить прямой угол, используют либо 3 колена по 30, либо 2 по 45 градусов.
Колено в 45 градусов
На заметку: чтобы не огибать дом, выход трубопровода из него должен располагаться с той стороны, где находится автономное очистное сооружение или центральный трубопровод.
Ввод канализации в дом в непосредственной близости от септика
Какие материалы лучше использовать
Сегодня уже не только в частном строительстве, но и в многоэтажках, для сборки канализационных трубопроводов используют не тяжёлую чугунину, а лёгкий, прочный и недорогой пластик, стыки которого заделываются полимерным герметиком.
Ассортимент смазок и паст для канализационных труб велик
При соединении сливного отверстия санитарного прибора с отводной трубой, очень важно устраивать гидрозатворы, роль которых играют U-образные трубы. Постоянно находящаяся в их изгибе вода является препятствием для проникновения в помещение зловонных запахов из канализации.
Пример устройства гидрозатвора
Ниже приведены сечения труб (в миллиметрах) для монтажа ветвей разводки, в зависимости от вида санитарного оборудования:
- ванна, раковина и душевой слив, если труба общая – 50;
- если всё по отдельности – 40;
- биде — 30 или 40;
- унитаз – 100
Примечание: эти цифры актуальны при условии, что унитаз находится в 1 метре от стояка, а остальные точки слива – не дальше 3-х. Если эти расстояния больше, диаметр труб придётся увеличивать.
Для стояка, в который идёт не только вода из кухни, но и стоки из туалета, трубы берут диаметром 100 или 110 мм. Такое же сечение должно быть у любого стояка в. Если же в доме туалета нет, а только душ и кухонная мойка, трубы размером 50 мм для установки стояка вполне достаточно.