Разводка канализации по дому. Разводка канализации в частном доме: схема и устройство
- Разводка канализации по дому. Разводка канализации в частном доме: схема и устройство
- Правильная разводка канализации в квартире. Подготовительные работы
- Внутренняя разводка канализации в частном доме. Как сделать канализацию в частном доме?
- Схема сантехники в частном доме. Сантехника в частном доме: схема прокладки
- Схема канализации в одноэтажном частном доме. Какую канализацию лучше сделать в частном доме
- Схема канализации в частном доме. Правила обустройства канализации в квартире
Разводка канализации по дому. Разводка канализации в частном доме: схема и устройство
Разводка канализации в частном доме или квартире, выполненная с ошибками и нарушением нормативных требований, создаст серьезные проблемы и потребует сложных ремонтных работ.
Для создания канализационной системы частного дома не требуется получать никаких разрешительных документов. Это заметно упрощает процесс создания сети, в отличие от работ с водопроводом, газом или иными коммуникациями. Избежать этого можно, если заранее создать проект и тщательно распланировать монтажные работы с соблюдением всех правил. Рассмотрим этот вопрос внимательнее.
Размещение элементов системы
Канализация — это взаимосвязанная система, где каждый элемент оказывает влияние на общую конфигурацию. Разводка труб канализации в частном доме выполняется с учетом специфики, расположения и технологических потребностей всех сантехнических приборов, установок или отделений. Необходимо обеспечить выполнение обязательных условий:
- трубы должны иметь уклон, соответствующий рекомендованным величинам для данного диаметра;
- размер труб должен обеспечивать достаточную пропускную способность;
- конфигурация канализационных сетей не допускает резких поворотов, сложных изгибов или изменения направления уклона;
- необходимо наличие ревизионных люков, должен быть обеспечен доступ к трубам для проведения ремонтных работ;
- обязательно наличие фановой трубы, обеспечивающей вентиляцию системы.
Соблюдение этих требований определено СНиП и прочими нормативными документами. Кроме того, в грамотной разводке канализационных труб в частном доме в первую очередь заинтересован его владелец, которому придется ежедневно ей пользоваться. Все ошибки будут отражаться на уровне комфорта и качестве проживания в доме, поэтому важно отнестись к созданию системы с максимальной тщательностью.
Выбор и составление схемы
Начинать создание автономной канализационной системы надо с определения ее конфигурации. В этом неоценимую помощь способна оказать заранее составленная схема. Где отображаются все точки установки сантехнических приборов, расстояния и уклоны, ось монтажа стояка и прочие нужные и важные особенности прокладки трубопроводов. При создании схемы надо учитывать специфику и требования к определенным участкам:
- канализационные отводы от кухонной мойки, умывальника, ванны или душевой кабины должны состоять из труб диаметром 50 мм;
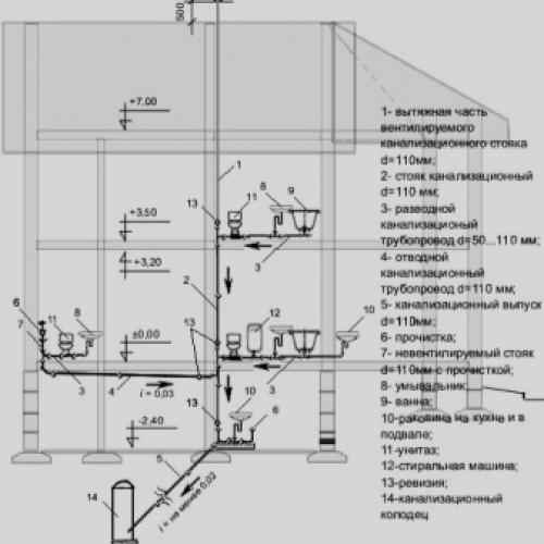
- стояк канализации в частном доме, а также отвод от унитаза, присоединенный к нему, должны иметь диаметр 110 мм;
- все элементы горизонтальной части системы должны располагаться с возрастанием диаметра в направлении стояка, но не наоборот;
- оптимальный вариант — использование пластиковых труб;
- канализационный стояк располагается только вертикально. Ревизионный люк в нем должен быть обязательно, в доступном и удобном для выполнения различных работ месте.

Правильная разводка канализации в квартире. Подготовительные работы
Созданию канализации в квартире своими руками должна предшествовать определенная подготовка. Она состоит в планировке, создании проекта будущей системы. Необходимо сделать схему, которая будет отображать состав, конфигурацию, параметры и размеры всех элементов. Схема канализации в квартире позволит рассчитать количество труб, соединительных элементов, обеспечить положенный уклон горизонтальной разводки. Уклон трубопроводов необходим для исключения застоя стоков, ведущего к образованию заторов. Величина минимального уклона зависит от диаметра труб:
- для труб 50 мм — 30 мм/м длины;
- 110 мм — 20 мм/м;
- 160 мм — 8 мм;
- 200 мм — 7 мм.
Более подробно в статье: Уклон канализационных труб по СНиП
При этом, существует ограничение на максимальную величину уклона, который не долен превышать 150 мм/м .
Перед началом устройства системы необходимо оповестить о своих намерениях соседей сверху. Кроме того, надо обратиться в управляющую компанию и решить вопрос с временным отключением водоснабжения, поскольку соседи могут просто забыть о ремонтных работах и начать пользоваться водопроводом в обычном режиме, что приведет к затоплению квартиры. Надо приготовить все необходимые инструменты, материалы, крепежные детали, чтобы не затягивать процесс и выполнить монтаж в кратчайший срок. Важно помнить, что все время, пока будет вестись прокладка канализации в квартире, соседи останутся без воды, поэтому надо постараться максимально уменьшить для них проблему и сократить время выполнения работ.
Внутренняя разводка канализации в частном доме. Как сделать канализацию в частном доме?
Обеспечение комфорта и качественной жизни в загородном доме является важным моментом для любого владельца такой постройки. Одним из факторов, которые позволяют обеспечить комфортную жизнь, является удобство оттока использованной воды и продуктов жизнедеятельности. Правильно рассчитанная на стадии проектирования и впоследствии правильно построенная канализация в частном доме будет залогом длительной эксплуатации, при которой не возникнет никаких проблем. Подобную конструкцию можно создать своими руками, если подойти к вопросу с максимальной ответственностью.

Основные требования
Во избежание каких-либо проблем в процессе создания канализации в собственном доме, лучше всего максимально следовать в данном процессе всем требованиям и стандартам, что расписаны в нормативной документации – СНиП. В этом случае все точно будет функционировать безотказно на протяжении длительного периода времени.
В какой угодно постройке, где проложен водопровод и есть забор воды, должна быть выполнена система, которая будет выводить стоковые массы. Механизмы водоотвода должны быть созданы и на участках. В целом такая сеть сможет не только обеспечить комфортную жизнь, но и не навредит экологии, а также существенно увеличит время пользования зданием.
Обычно канализация состоит из следующих систем:
- ливневой, которая отводит воду;
- наружной;
- внутренней.
Их необходимо проложить так, чтобы были соблюдены различные строительные сантребования к канализации в собственном доме.
Среди таких требований можно назвать:
- обеспечение нормального очищения;
- отсутствие риска в вопросе затопления постройки;
- обеспечение необходимого объема сточных вод;
- герметичное накапливание и транспортировка сточных вод.
Если говорить о требованиях к внутренним системам такого типа, то состоять они должных из следующих элементов:
- стояка, к которому прикрепляются все трубы;
- разведения труб, что осуществляет перекачивание сточных вод в направлении стояка;
- сантехприборов для водоотвода.


По нормам в механизме, часть которого расположена в постройке, должно быть достаточно места для свободного транспортирования жидкости от мест, где осуществляется слив до труб, которые осуществляют вывод за пределы постройки. При прокладывании канализации внутри постройки используют трубы из чугуна либо каких-то полимеров. На выходе размер такой трубы должен составлять 11 сантиметров. Естественно, что в данном механизме должна быть еще и вентиляция. Обычно ее проводят через стояк. Над каждым элементом делают вытяжное место, выходящее на крышу.


Если говорить о проекте наружных систем, то его создание осуществляется с учетом требований, прописанных в СНиП за номером 2.04.03-85.
По этому нормативному документу следует учесть следующие моменты:
- в механизме должны устанавливаться колодцы для обслуживания и очищения;
- для вычищения стоков нужна установка с применением биометодов;
- если речь идет о самотечной сети, то применяют полимерные, керамические или асбестоцементные трубы;
- трубы, которые размещены за границами постройки, должны быть в диаметре около пятнадцати сантиметров и заложены на уровне десяти-двенадцати сантиметров;
- если в строении мало этажей, то можно скооперировать несколько домов в единую сеть;
- если нельзя устроить самотечную систему, то лучше сделать выбор в пользу напорной канализации.


Еще один важный момент – подбор конструкции. Это действительно важно при проектировании канализационной автономной сети.
Тут могут быть три варианта септиков, которые используются:
- аэротенки;
- накопительный септик;
- очистной.
Теперь скажем о них чуть подробнее. Аэротенки – новейшие решения с использованием нескольких очистительных методик. После применения подобного септика жидкость очищается почти до 100-процентного значения. Воду можно легко выводить в землю, водоем и применять для полива. Септик накопительной категории является улучшенным вариантом выгребной ямы, в которой очистка не осуществляется, а лишь собираются стоки. Когда септик наполняется до определенного уровня, появляется необходимость его очистки. Обычно это осуществляется при помощи специального ассенизаторского оборудования.
Если говорить об отличиях от выгребной ямы, то никакой фильтрации в грунт в этом случае не осуществляется. Это значит, что никакого вреда экологии не наносится. Но все же данный вид септика применяется в последние годы крайне нечасто по причине дороговизны стоимости услуг специальной ассенизаторской техники. Такой тип можно использовать лишь тогда, если в доме вы проживаете сравнительно нечасто.
Схема сантехники в частном доме. Сантехника в частном доме: схема прокладки
Провести сантехнику в частном доме можно несколькими способами. При этом разные схемы подключения основаны на единых принципах обустройства.

1. Схема водопровода в частном доме
Независимо от выбранной схемы подачи воды в частном доме и используемой сантехники существует два основных варианта подключения точек раздачи:
последовательный способ подключения потребителей;
параллельный способ подключения сантехники для водопотребления.
Схема с последовательным подключением используется для обустройства небольшого частного дома с малым числом точек потребления воды. Согласно ее принципам вода от источника водозабора поступает к одному устройству сантехники и дальше идет к другому (т. е. насос подает воду в гидроаккумулятор, потом к раковине, после чего в санузел, ванную и т. д.).
При использовании этой схемы для подачи воды на несколько видов сантехники наблюдается значительное падение напора на устройствах, расположенных в конечных точках. Обустройство последовательной системы водоснабжения отличается простотой. На трубе, которая подходит к устройству потребления воды, монтируется тройник с одним входом и двумя выходами (один подает воду к нужной сантехнике, а другой – к следующему оборудованию).
Параллельная схема подключения водопровода частного дома обязательно содержит такой вид оборудования, как коллектор, от которого вода подается отдельно на каждый элемент сантехники потребления.
Последовательная и параллельная схемы подключения сантехники частного дома могут быть применены как при подключении к централизованному водопроводу, так и при подаче воды из автономных источников.
В стандартную систему водоснабжения частного дома входят следующие элементы.
Точка забора воды (центральный водопровод или автономные источники).
Насосное оборудование (для автономных источников).
Гидроаккумулятор для накопления определенных объемов воды.
Сантехника для очистки воды. После аккумулятора воды устанавливается тройник с запорной сантехникой, обеспечивающей подачу воды в частных дом, и для полива растений и деревьев приусадебного участка. Фильтрационная сантехника устанавливается на тот выход, который подает воду к домашним приборам водозабора.
За фильтрационной сантехникой необходимо установить еще один тройник с запорной сантехникой, которая будет разделять систему на контуры с горячей и холодной водой.
Схема канализации в одноэтажном частном доме. Какую канализацию лучше сделать в частном доме
Устройство канализации в частном доме состоит из разводки по помещениям и наружной сети. Внутри система может включать в себя один или несколько вертикальных стояков, к которым примыкают трубы с меньшим диаметром. По этим трубам, обязательно располагаемым с уклоном, сточная вода движется самотёком от точек расхода до места общего слива.
Устройство самотечной канализации в строящемся доме
Какие нюансы учесть при разводке труб
Попадая в стояк, вода под действием гравитации опускается вниз и поступает во внешний трубопровод большего диаметра, соединённый либо с центральной магистралью, либо с локальным накопительным или очистным сооружением.
При разработке схемы нужно учитывать несколько простых правил:
- Лучший вариант разводки для частного владения – это когда в схеме присутствует всего один стояк. А это возможно только тогда, когда санузел и кухня сконцентрированы в одной части дома и их разделяет только перегородка. Именно поэтому в квартирах эти помещения чаще всего располагаются рядом.
- К стояку идёт подводящая труба, к которой, как на фото снизу, подсоединяются все сантехнические приборы. Уклон труб диаметром до 80 мм должен составлять порядка 2 см на 1 м/п.
- Точки слива воды из приборов должны располагаться так, чтобы унитаз находился к стояку ближе всего – в этом случае, место его присоединения к отводной трубе окажется в самой низкой точке. Это важно, так как в противном случае стоки из унитаза могут попадать в отверстия для слива из других приборов.
Стояк в санузле
Совет: на трубе, идущей от посудомоечной машины и кухонной раковины, желательно установить жироуловитель.
Схема с жироуловителем
- По возможности, нужно избегать лишних поворотов трубопровода, так как именно в этих местах чаще всего и случаются засоры. Но если без них не обойтись, поворот нужно сделать как можно более плавным. Так, чтобы получить прямой угол, используют либо 3 колена по 30, либо 2 по 45 градусов.
Колено в 45 градусов
На заметку: чтобы не огибать дом, выход трубопровода из него должен располагаться с той стороны, где находится автономное очистное сооружение или центральный трубопровод.
Ввод канализации в дом в непосредственной близости от септика
Какие материалы лучше использовать
Сегодня уже не только в частном строительстве, но и в многоэтажках, для сборки канализационных трубопроводов используют не тяжёлую чугунину, а лёгкий, прочный и недорогой пластик, стыки которого заделываются полимерным герметиком.
Ассортимент смазок и паст для канализационных труб велик
При соединении сливного отверстия санитарного прибора с отводной трубой, очень важно устраивать гидрозатворы, роль которых играют U-образные трубы. Постоянно находящаяся в их изгибе вода является препятствием для проникновения в помещение зловонных запахов из канализации.
Пример устройства гидрозатвора
Ниже приведены сечения труб (в миллиметрах) для монтажа ветвей разводки, в зависимости от вида санитарного оборудования:
- ванна, раковина и душевой слив, если труба общая – 50;
- если всё по отдельности – 40;
- биде — 30 или 40;
- унитаз – 100
Примечание: эти цифры актуальны при условии, что унитаз находится в 1 метре от стояка, а остальные точки слива – не дальше 3-х. Если эти расстояния больше, диаметр труб придётся увеличивать.
Для стояка, в который идёт не только вода из кухни, но и стоки из туалета, трубы берут диаметром 100 или 110 мм. Такое же сечение должно быть у любого стояка в. Если же в доме туалета нет, а только душ и кухонная мойка, трубы размером 50 мм для установки стояка вполне достаточно.
Схема канализации в частном доме. Правила обустройства канализации в квартире

Так как замена канализации будет происходить в многоквартирном доме, в котором расположенные друг над другом квартиры имеют общий стояк, то не забудьте оповестить соседей о предстоящем проведении работ. Ведь вы доставите им ряд неудобств, о чем лучше предупредить.

Кроме того, придется договориться с организацией, занимающейся обслуживанием дома, об отключении подачи воды. Так, вы как минимум обезопасите себя от деятельности забывчивых соседей, связанной с санузлом.
С чисто технической точки зрения необходимо учесть следующие нюансы.
Многие специалисты не рекомендуют производить замену чугунного стояка без особой надобности, так как этот материал действительно прочный, а демонтаж трубы из чугуна – сложный процесс, который в случае необходимости лучше предоставить профессионалам.Чугунный стояк
Современным материалом, наиболее подходящим для монтажа собственными силами, являются трубы и фитинги, выполненные из пластика.Трубы и фитинги из пластика
Важным условием при монтаже разводки является соблюдение уклона на каждый погонный метр трубопровода. Величина наклона зависит от диаметра трубы. Если сечение труб составляет 5 см, то уклон должен быть около 3 см, при диаметре 11 см – 2 см. Изменение наклона не стоит допускать как в большую, так и в меньшую стороны, потому что это в итоге будет приводить к засору.Уклон труб
Диаметр труб зависит от их назначения. Стояк, который будет принимать на себя стоки в больших порциях, должен иметь сечение 100-110 мм. Это касается, например, вертикальной трубы, собирающей сточные воды унитаза, стиральной и посудомоечной машин.
Если установка последней не планируется, а ванная комната имеет отдельный стояк, то вертикальный трубопровод, принимающий воду из кухни, может иметь диаметр 5 см
Для канализационной разводки лучше применять трубы диаметром в 4-5 см.
Важно учитывать, что канализационная система в процессе эксплуатации подвержена динамике. По этой причине при раструбном соединении необходимо вставлять гладкий конец одной трубы в раструб другой не полностью, оставляя зазор в 10 см. Это компенсирует увеличение длины труб при росте температуры
Другая динамика связана с создание в трубопроводе внутреннего напряжения, что регулируется двумя видами крепления стояка при помощи хомутов, о чем будет сказано ниже.
На трубах, отводящих воду из кухонных раковин и посудомоечных машин, рекомендуется устанавливать жироуловители.
Из всех сантехнических приборов в самой нижней точки внутриквартирной канализационной сети должен находиться унитаз. Обязательным является наличие гидрозатворов после сантехники, в которых остается жидкость, препятствующая проникновению в помещение зловонных запахов.Гидрозатвор для канализации
Если в процессе эксплуатации старой сети из сливов сантехники исходил характерный запах, а во время спуска воды из унитаза или стиральной машины из труб раздавался громкий хлюпающий звук, то это говорит о плохой вентиляции стояка. Возможно, забилась фановая труба. Тогда необходимо вызвать слесаря из обслуживающей ваш дом организации. Однако в некоторых случаях простой чистки вентиляции недостаточно. Тогда стояк оборудуют обратным клапаном.Обратный клапан для канализации
После того как произведены все замеры, составлена схема, учитывая все нюансы, и подобраны и куплены необходимые материалы, можно приступать к процессу демонтажа, если речь идет о замене старой сети.