Установка насоса в скважину своими руками. Установка насоса в скважину
- Установка насоса в скважину своими руками. Установка насоса в скважину
 - На какую глубину опускать насос в скважину. На какую глубину рекомендуется опускать насос в скважину: методы определения оптимальных показателей
 - Установка насоса в колодец. 1 Характеристика и типы насосов
 - Поверхностный насос на скважину. Познакомимся с типами поверхностных насосов для воды
 - Установка насоса Водолей в скважину. Как правильно выбрать насос для скважины Водолей
 - Электрическая схема подключения погружного насоса. Реле сухого хода
 - Схема установки насоса в скважине. Монтаж погружного насоса
 
Установка насоса в скважину своими руками. Установка насоса в скважину
Когда конструкция собрана, начинается самое сложное – это монтаж в скважину. Прежде чем засунуть насос в обсадную трубу на него одевается защита, в виде кольца.
 Опускать насос в скважину необходимо аккуратно и медленно. Так как насос весит достаточно много, эту работу необходимо выполнять нескольким людям.
Один отпускает страховочный трос, а остальные удерживают насос. Страховочный трос должен быть из нержавеющей стали, т.к. только данный металл сможет находиться долгое время в вое без появления коррозий.
Если вдруг при погружении насоса появилось какое-то препятствие, то, не совершая резких движений, попробуйте его обойти или вправо или влево.
Как правило, до начала погружения насоса проводится проверка скважины на наличие непредвиденных участков. 
Насос крепится на той высоте, которая Вам необходима, при условии, что она совпадает с техническими возможностями оборудования. Плюс насос должен полностью находиться в воде, но не должен доставать дна скважины.
Самое удачно расстояние до дна составляет два метра. Без учета таких особенностей все это может привести к быстрой поломке насоса из-за попадания мельчайших частиц, а также работы вхолостую.
В конце необходимо убедиться, что именно трос держит насос, а не труба. После этого трос прикрепляется к кронштейну.
 Водоподающую трубу соединяем с насосом с одной стороны, а другим концом подсоединяем с накопительным баком. 
В последнюю очередь насос подключается к электрическому питанию. При этом необходимо использовать специальный электрический кабель.
Место соединения с силовым кабелем должно быть закрыто термоусадочной муфтой. Если в доме зафиксированы скачки питания, то нужно установить генератор напряжения. Иначе, частые скачки могут вывести из строя насос.
При монтаже глубинного насоса необходимо его испытать и установить сколько расходуется воды за одну единицу времени и сколько потребляется электрической энергии. Заводские характеристики, указанные в паспорте насоса не всегда соответствуют действительности.
Манометром определяется рабочее давление в водопроводе. После выявленных значений Вы сможете определить точку работы глубинного насоса.
Если Вы хотите произвести монтаж глубинного насоса своими руками, то в сети интернет находится большое количество
При неправильном монтаже возникает вероятность быстрой поломки скважинного насоса. 
Одним из примеров, может быть насос, который находится не на своей рабочей глубине. Вместо 30 метров, его эксплуатировали на 50.
При таки параметрах такой насос не сможет поднимать воду, насос будет работать «впустую», без настроенного рабочего давления воды.
На какую глубину опускать насос в скважину. На какую глубину рекомендуется опускать насос в скважину: методы определения оптимальных показателей
В случае отсутствия на земельном участке природного источника воды самостоятельно организовать бесперебойное водоснабжение возможно, выкопав колодец либо пробурив скважину. Водяная скважина обеспечивает сравнительно большую водоотдачу, более продолжительный срок эксплуатации и постоянный уровень воды. Однако при монтаже скважинного оборудования часто возникает вопрос, на какую глубину опускать насос в скважину.
Границы глубины установки насоса в скважине
При установке погружного оборудования важно учитывать следующие ограничения:
- насосный прибор, погруженный в середину водного пласта, должен иметь над собой не менее 1 метра воды;
 - устройство не должно соприкасаться со скважинным дном.
 

Схема расположения уровней различных подземных вод.
Первое ограничение обусловлено принципом работы погружного насосного оборудования и его устройством. Скважинный насос не всасывает окружающую воду. Отбор и подача ее наверх осуществляется за счет объема воды, которая под давлением попадает в устройство. Кроме того, охлаждение оборудования происходит за счет окружающей среды. Недостаточное количество жидкости чревато перегревом прибора и его быстрым выходом из строя.
Ограничение по расположению насосного оборудования над дном связано с тем, что в нижнем водном слое присутствует большое количество твердых частиц грунта. Особенно это касается песчаной выработки. Попадая внутрь механизма насоса, взвеси могут повредить его. Также частицы песка и глины загрязняют выкачиваемую воду, и она становится непригодной для использования в быту или питья.
Учитывая необходимость размещения устройства в нескольких метрах от дна и наличия воды над ним, легко рассчитать оптимальную глубину установки насоса в скважине.
Определение оптимальных глубин установки насоса
Практический метод
Практический метод позволяет определить необходимую глубину погружения насоса в ходе монтажных работ по его установке.
Данный метод реализуется следующим образом:
- оборудование опускается на всю глубину водяной скважины на страховочном тросе;
 - достигнув дна колодца, после соприкосновения устройство поднимается вверх на 1,5-2 м;
 - зафиксировав насос в данном положении, производят проверку его работы, а также качества подаваемой воды;
 - при необходимости высота поднятия прибора повторно корректируется;
 - при отсутствии недостатков устройство закрепляют в данном положении для последующей эксплуатации.
 
Несмотря на свою очевидную простоту, практический метод применяется на средней глубине до 15 м и не подходит для глубинных скважин.
Метод использования динамической характеристики скважины
Для правильной установки насосного оборудования руководствуются динамическим уровнем — одним из главных параметров скважины. Этот показатель определяет расстояние от поверхности земли до водяного слоя. Причем подразумевается значение, на котором находится вода во время эксплуатации устройства в сезон максимального потребления влаги. Количество выработки непостоянное и может меняться в разные сезоны года и по многим причинам, будь то большие объемы потребления или длительная засуха.
Данный параметр определяет максимально возможное опускание водяного слоя, ниже которого вода не должна опускаться даже в случае наибольшего забора жидкости. Динамическая характеристика указана в паспорте скважины и может меняться в зависимости от типа используемого насосного оборудования.

Контрольные параметры скважины.
Для создания достаточного давления на устройство и его нормальной работы необходимо опускать прибор ниже расчетного динамического уровня не менее чем на 1 м. Чем выше мощность используемого насоса, тем большей должна быть глубина его погружения. В противном случае уровень воды упадет до уровня забора, и устройство может выйти из строя из-за попадания песка, ила или глины.
Использование характеристики динамического уровня является наиболее точным методом, по которому определяется рекомендованная глубина погружения насоса в скважину.
Но для его применения необходимы основные данные, которые указываются в паспорте скважины:
- динамический уровень;
 - статический уровень (расстояние от поверхности земли до поверхности устоявшейся воды);
 - дебит (производительность скважины, которая должна быть меньше мощности насосного оборудования).
 
Данный метод нежелателен при эксплуатации слишком мощного погружного оборудования, а также связан с ограничениями по забору в засушливые периоды.
Устанавливая насосное оборудование, необходимо учитывать ряд стандартных рекомендаций:
- производительность погружного насоса не должна превышать дебита скважины, что чревато ее иссушением;
 - при «верхней» установке прибора желательно использование датчиков сухого хода, что позволяет отключить насос при проседании водяного слоя;
 - при «нижней» установке важно соблюдать необходимую границу между насосом и дном в 1,5-2 м.
 
Это позволит не только организовать стабильное водоснабжение, но и обеспечить долгий срок эксплуатации оборудованию.
Установка насоса в колодец. 1 Характеристика и типы насосов
Чтобы организовать эффективный подъем воды из колодца либо скважины, глубина которых более 10 м, и которые находятся на некотором удалении от дома, используют погружной насос для колодца. Они более производительные, чем поверхностные насосы, поднимают воду на 60-90 м под напором, затрачивая на это меньше энергии.
Корпус агрегата герметичен, потому устройство устанавливают прямо в колодец, в отличии от поверхностных устройств, которые нуждаются в защите от осадков и воздействия окружающей среды. Также они бесшумные в работе, слышно лишь щелканье реле. В холодное время года погруженный в колодец водяной аппарат не замерзает, всегда и при любых погодных условиях работает стабильно.
Схема установки насоса в колодец и монтаж водопровода
В колодцах используют несколько типов аппаратов, которые отличаются по принципу работы. Как правило, в колодцах с небольшой глубиной используют вибрационные насосы, с большей — центробежные.
1.1 Вибрационные
Вибрационные устройства. Данный тип аппарата не имеет вращающихся деталей. В середине корпуса расположен сердечник с обмоткой. Подаваемый на сердечник электроток образует вокруг него электромагнитное поле. Под воздействием поля притягивается шток, который скреплен с поршнем. В камере впуска образуется разрежение, и в нее поступает вода. Электромагнитное поле исчезает, и шток, возвращаясь на место, закрывает клапан на входе в аппарат. Давление поршня выталкивает воду в камеру за поршнем. Когда шток притянется к сердечнику, вода поступит в трубопровод.
Работа штока – это и есть вибрации, от которых пошло название аппаратов – вибрационные. Данный тип помп не рекомендует использовать в колодцах, построенных на плавуне, потому что вибрации негативно сказываются на непрочных грунтах. Также помпу следует располагать на расстоянии от дна источника, чтобы мелкие частицы песка под действием вибраций не засасывались в насос. Не отличаются высокой производительностью. Однако они считаются надежными, потому что не имеют деталей, способных перегреться под действием трения. Но все же центробежные модели более эффективны.
1.2 Центробежные
Центробежные устройства имеют другое устройство и принцип работы. В корпусе располагается рабочее колесо с лопастями, изогнутыми против движения крыльчатки. Внутри также расположен двигатель, приводящий в движение крыльчатку при помощи вала. Вращаясь, крыльчатка создает центробежную силу, под действием которой вода засасывается внутрь помпы и проталкивается затем в трубопровод. В середине крыльчатки создается пониженное давление, а на периферии – повышенное. Благодаря разнице давлений жидкость поступает сначала в центр, а потом вверх, в трубопровод.
Погружной насос следует использовать только полностью опущенным в воду, чтобы не возник «сухой ход». Это также спасет от скачков напряжения или иных аварийных ситуаций. Данные аппараты снабжены автоматикой, сигнализирующей о понижении уровня воды.
Центробежный насос готов к установке в колодец
Для изготовления корпуса центробежных устройств используют пластик или нержавейку, из нержавеющей стали аппараты более долговечные и дорогие. Такие насосы могут перекачивать жидкость с содержанием частиц песка до 185 г/м3. Имеют высокую производительность.
Поверхностный насос на скважину. Познакомимся с типами поверхностных насосов для воды
Как размещаются поверхностные насосы, понятно из их названия – оборудование этого вида располагается на поверхности земли в любом удобном месте, рядом со скважиной глубиной до 10 — 15 метров. Заметим, что для относительно глубокой скважины порядка 30 метров, используются погружные насосы, с которыми можно ознакомиться в статье «Как правильно выбрать глубинный насос для скважины, какой лучше на глубине более 15-20 метров».
Перекачивающий агрегат поверхностного типа соединяется с водой шлангом или трубопроводом. В зависимости от особенностей конструкции различают следующие виды поверхностных насосов:
- ручные;
 - центробежные;
 - вихревые;
 - эжекторные станции.
 

Зачастую можно обойтись ручным насосом
Вызывающие улыбку колонки, у которых необходимо качать длинный рычаг для извлечения воды, не потеряли своего значения и в настоящее время. Ручные насосы отличаются простотой устройства и чрезвычайной надежностью в эксплуатации. Поршень, воздушный и водяной клапан – вот и все элементы его конструкции. При перемещении рычагом поршня в колонку засасывается нужное количество воды.
В этом случае используется только мышечная сила, и обеспечена полная независимость от энергетических источников. Насосы такой конструкции просто незаменимы на дачных участках, к которым еще не подведено электричество. Объема воды, обеспечиваемого ручными колонками, бывает вполне достаточно для нужд небольшого хозяйства.

Центробежный насос АГИДЕЛЬ популярен многие годы
Наиболее широко в бытовых условиях применяется центробежный насос для скважины. В его конструкции применяется турбина с крыльчаткой. При быстром вращении лопастей центробежные силы отбрасывают поток жидкости к внешней поверхности корпуса турбины, а по центральной оси создается разрежение. За счет разницы давления в выходном контуре устройства создается необходимый для работы насоса напор воды.
В вихревом насосе используется крыльчатка особой формы. При ее вращении создается не только центробежное ускорение, но и формируется турбулентный поток жидкости, значительно повышающий ее напор в выходном контуре агрегата. Насосы подобной конструкции позволяют обеспечивать постоянное давление в обслуживаемой водопроводной магистрали, но их применение ограничивают особые требования к чистоте перекачиваемой жидкости. При ее загрязнении твердыми механическими частицами насос быстро выходит из строя.

Эжекторный насос эффективен при глубине скважины 10-15 метров
Для поднятия воды из скважин глубиной порядка 10 — 15 метров используют эжекторные насосные станции. Их функционирование основано на прокачке жидкости с большой скоростью по трубе меньшего диаметра, установленной внутри основной водозаборной трубы. В результате в выходном контуре водозабора повышается давление за счет разрежения, создаваемого внутренним эжектором. Соответственно, увеличивается и напор, но производительность агрегата снижается вследствие того, что часть жидкости отправляется обратно для прохождения по эжектору.
Установка насоса Водолей в скважину. Как правильно выбрать насос для скважины Водолей
Выбор и установка скважинного насоса Водолей должны учитывать характеристики скважины (ее дебит должен обеспечивать нужный объем водозабора) и расстояние до источника потребления воды, подбор устройства с нужными параметрами рассмотрим на следующем примере.
Необходимо обеспечить водой семью из 3 человек, расстояние до дома равно 30 м., максимальное расстояние до водного зеркала в скважине (динамический уровень воды, определяется при работающем электронасосе) составляет 20 м.
Решая, как определить потребление воды семьей из трех человек, можно воспользоваться усредненными данными, в большинстве случаев оно составляет 1,8 м. куб./ч.
Чтобы определить напор воды, необходимо суммировать длину вертикального и горизонтального участков с учетом потерь, а также рабочее давление в системе, переведенное в метры. Если напорный трубопровод имеет диаметр 1 дюйм, метр вертикального водяного столба приравнивают к 10 м горизонтального участка, общие потери в линии берут равными 20% (при расчетах напор в трубах умножаем на 1,2). Электронасос опускают на 2 метра ниже динамического уровня, для корректной работы автоматики в системе управления требуется создание в линии максимального давления около 3 бар., что соответствует 30 метрам вертикального водяного столба. В итоге получаем следующую формулу для расчета общего напора H в метрах вертикального столба:
Н = (22 + 30/10) х 1,2 + 30 = 60 метров.
Для выбора подходящей модели электронасоса используются графики напорных характеристик, из которых видно, указанной подаче в 1,8 м. куб./ч. и номинальному напору 60 м соответствует модель БЦПЭ 0,5 63У.
Электрическая схема подключения погружного насоса. Реле сухого хода
Во многих схемах установки электронасосов в колодец или скважину и подключения к автоматике не указан такой важный элемент, как реле сухого хода.
Что произойдет в случае, если в водозаборном источнике закончится вода? Погружной насос будет работать без необходимого водного охлаждения, пока не выйдет из строя — напор в системе будет низким, реле давления не отключит насосное оборудование.
Реле сухого хода конструктивно напоминает устройство реле давления и работает точно по такому же принципу, но наоборот — при низком давлении в системе оно размыкает цепь питания электронасоса, а при высоком замыкает.
Многие модели глубинных электронасосов оснащены встроенным термореле, прерывающим цепь питания при перегреве обмотки, которое происходит в работающих без воды погружных агрегатах.
Некоторые пользователи полагают, что данная защита может успешно заменить такой элемент автоматики, как реле сухого хода. Это мнение ошибочно в связи с тем, что перегрев обмотки является аварийной ситуацией, приводящий к нагреву изоляции и потери ей своих физических параметров. Многократный нагрев через некоторое время приведет к затвердеванию и отслаиванию изолирующего лака и в конечном итоге к межвитковому замыканию и выходу электронасоса из строя.
Рис. 4 Схема индивидуального подключения глубинного насоса в частном доме
Поплавковые датчики. Если схема подсоединения насосов для скважины обязательно должна иметь в своем составе реле сухого хода, которое работает в паре с реле давления в автоматическом режиме, то для глубоких колодцев его присутствие не обязательно. Дело в том, водозабор из колодцев производится с использованием конструкций, имеющих встроенный поплавковый выключатель. Устройство является аналогом реле сухого хода и отключает агрегат при падении уровня воды ниже определенной отметки.
Поплавковый выключатель работает следующим образом: при падении уровня жидкости в источнике его плавающая головка опускается и установленный внутри шарик размыкает контакты, которые встроены в цепь питания электронасоса.
Сенсорные датчики. Основным недостатком поплавковых выключателей является необходимость в свободном пространстве для работы, появившиеся на рынке колодезные электронасосы с сенсорными датчиками, не имеют подобных проблем.
Электролитический датчик уровня жидкости в таких моделях располагается сбоку и передвигается в вертикальном направлении, устанавливая порог срабатывания. Два его контакта работают в замкнутой цепи при наличии жидкости, как только ее уровень падает, цепь разрывается и электронная схема отключает питание электронасоса.
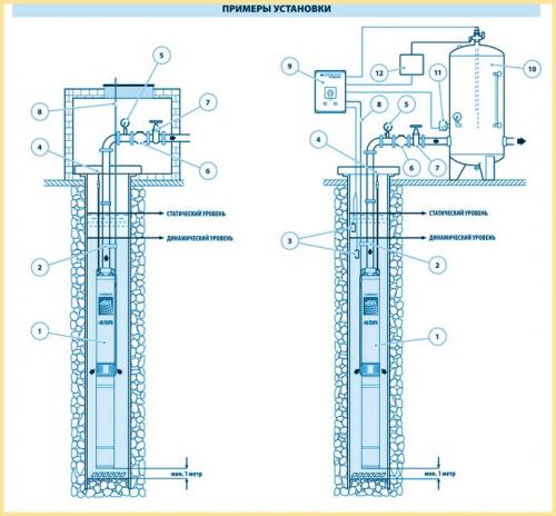
Схема установки насоса в скважине. Монтаж погружного насоса
Установка погружного насоса производится в скважине, не нужно отдельно оборудовать хозпостройку или устраивать кессон. Сначала выполняется сборка агрегата, к нему присоединяют кабель и трубу, которая обеспечивает подачу воды, трос, после этого конструкцию спускают в скважину.
Шаг 1: Подготовка к монтажу оборудования
В данном случае необходим обратный клапан, чтобы предотвратить слив воды. На него устанавливают фильтр, напоминающий по форме чашу и не пропускающий мелкие частицы ила.
За клапаном производится установка трубы/нагнетательного шланга. Для закрепленной трубы важно, чтобы она была ровной. Силовой кабель расправляют и выравнивают. Для всех соединений делается надежная гидроизоляция.
Шаг 2: Погружение насоса в скважину

Схема погруженного скважинного насоса.
После соединения описанных выше конструкций подготовительная часть считается завершенной и можно приступать к установке насоса.
Производится его опускание или погружение следующим образом:
- надевают изготовленную из резины прокладку на обсадную трубу;
 - монтируют оголовок;
 - через отверстие оголовка протаскивают агрегат и плавно опускают его вниз.
 
Специалисты рекомендуют перед опусканием надеть на погружной насос защитное кольцо, которое предотвратит повреждение обсадной трубы.
Можно этого и не делать, но тогда погружение насоса потребует большей аккуратности. Конструкция весит немало, и плавное движение обеспечить нелегко, но это необходимо.
Даже если владелец участка монтирует систему отопления своими руками, то для опускания агрегата в скважину либо колодец ему понадобится помощь еще как минимум 2 человек. Это нужно для того, чтобы двое людей могли удерживать агрегат на весу, а третий постепенно должен опускать трос без сильных рывков.
При монтаже оборудования нужно тщательно следить за тем, чтобы в скважину не попали посторонние детали, которые потом стали бы препятствием. Стандартно между стенками трубы и насосом остается совсем маленький зазор, и даже предмет размером не больше гайки может создать проблему.
Глубина установки погруженного насоса.
Насос закрепляют на такой высоте, чтобы она была ниже динамического уровня воды, тогда он будет постоянно покрыт ею. При этом нельзя устанавливать его слишком низко, поскольку чем ближе он ко дну, тем выше риск засасывания песка или ила.
Кроме того, учитывается глубина установки для выбранной модели оборудования , которая указывается в техдокументации. В среднем для большинства агрегатов она составляет 10 м, но для эжекторных насосов больше — до 15-20 м. Бывают и специальные приборы, рассчитанные на глубину 25-40 м.
Оптимальный вариант — размещение насоса на расстоянии 1-2 м от дна скважины. После установки трос фиксируют на специальном кронштейне, расположенном на внешней стороне.
Шаг 3: Определение точки работы насоса
После завершения монтажных работ необходимо определить рабочие характеристики агрегата при имеющейся нагрузке. В техпаспорте указывают усредненные сведения, практические показатели могут от них отличаться.
Владелец должен провести испытания, в ходе которых измерит такой показатель, как расход воды за единицу времени. Для этого ему нужно проверить скорость заполнения жидкостью заданного объема.
В то же время с помощью манометра нужно измерить давление, создающееся в системе водоснабжения при работе оборудования. После этого следует проверить электрическую часть. Для этого к насосу нужно подсоединить специальные щипцы, проводящие ток. Это поможет измерить силу тока и потребление энергии при работе прибора.