На какую глубину опускать насос в скважину. Как определить расстояние погружения?
- На какую глубину опускать насос в скважину. Как определить расстояние погружения?
- На какую глубину опускать насос в колодец. Установка оборудования
- Глубина погружения насоса, это. Метод применения динамической характеристики скважины
- На какую глубину опускать заборную трубу в скважину. Требования к обсадке
- Глубина погружения насоса Водолей. Как правильно выбрать насос для скважины Водолей
- Как правильно опустить насос в скважину. Установка насоса в скважину
- Установка насоса Водолей в скважину. Как правильно выбрать насос для колодца
- На какую глубину можно опускать насос малыш. Руководство по эксплуатации электронасосов Малыш, Малыш-М, Малыш-3 (БВ0,12-40, БВ0,12-20. 2014 15:59
На какую глубину опускать насос в скважину. Как определить расстояние погружения?
При погружении оборудования в скважину, необходимо придерживаться 2 основных правил:
- Расстояние от дна скважины до оборудования — 0.5-1 м. Таким образом, в насос не попадет песок и другие примеси, которые не только засоряют воду, но и могут быть причиной поломки.
Расстояние между поверхностью воды и насосом должно быть не менее 1 м, а лучше 3-5 м.Это обеспечит необходимое давление для достаточного напора и охлаждение агрегата.
Для определения глубины погружения насоса в скважину, существует 2 метода: практический и динамический. Выполнение практического метода определяется следующими действиями:
- погружение агрегата на дно скважины;
- поднятие его на 1-2 м;
- временная фиксация и подключение оборудования;
- проверка качества работы и воды;
- если проверка удовлетворительна, то насос фиксируется окончательно.
Это простой метод, но не совсем надежный. Так как остается непонятным, какой уровень воды находится над агрегатом. Кроме того, в этом случае необходимо рассчитывать максимальный метраж троса, трубы и кабеля, а это дополнительные затраты.
Динамический способ более сложен, но оправдан экономичностью и надежностью. Он определяется уровнем между поверхностью воды и линией земли. Такой показатель указывается в паспорте скважины, это статические данные.
Для определения динамическим способом глубины погружения насоса, нужно учитывать следующие факторы:
- Минимальный уровень воды во время повышенного испарения влаги.
- Мощность насоса. Чем она больше, тем глубже опускается оборудование.
Учитывая данные параметры, высчитывается динамический уровень, и агрегат погружается не менее, чем на 1 м от его значения. Такие расчеты, обычно, производятся рабочими во время тестирования скважины.
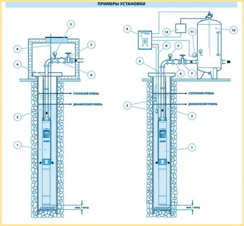
На какую глубину опускать насос в колодец. Установка оборудования
В случае с поверхностными моделями все просто – здесь необходимо обеспечить ровность и жесткость опорной площадки. С погружным оборудованием нужно выполнить больше действий. Рассмотрим особенности, как установить насос в колодец для бесперебойной подачи воды в дом в течение всего года.
Начинается процесс установки дренажного или иного погружного насоса с обустройства водопровода. Для круглогодичной эксплуатации системы каналы заглубляются в землю. Рекомендуется выбирать участок, на котором можно проложить прямую трубу без изгибов и фитингов. Траншея выкапывается глубиной 100-150 см, шириной до 50 см.
Дно засыпается слоем песка (10-20 см) и укрывается геотекстилем. Впоследствии краями полотна оборачивается и водопровод. С целью теплоизоляции можно использовать утеплитель, поместить канал в асбестовую или канализационную трубу. Питающий кабель протягивается здесь же.
Далее в стенке колодца и при необходимости в фундаменте формируются отверстия. В них размещаются гильзы с жесткой фиксацией и герметизацией. В кольце водопровод вводится с выступом на 25 см. На него мастера рекомендуют установить кран для слива жидкости, если система водоснабжения обустраивается с гидробаком.
Следующий шаг – установка шланга. Его длины должно хватать, чтобы подключить его к трубе в траншее и опущенному в воду насосу. Заготовку соединяют с упомянутыми точками с помощью фитингов и обжимных хомутов (если это предусмотрено). Выбор приспособлений определяется особенностями используемых материалов и оборудования.
В заключение нужно решить как закрепить насос в колодце. Здесь решением могут быть капроновая нить или оцинкованный трос. Простой стальной аналог лучше не использовать, так как он быстро покроется ржавчиной и в итоге выйдет из строя. Один конец «держателя» закрепляется на насосе (имеется специальное кольцо/ушко), другой на краю верхнего колодезного кольца. Это оптимальное решение как подвесить насос в колодце, чтобы корректировать глубину погружения аппарата и обеспечить возможность его поднятия в случае необходимости.
Распространенные ошибки
Выход насоса из строя может обосновываться не только по техническим причинам. Например, погружной насос необходимо поместить в колодец так, чтобы он не касался дна и бетонных стенок. Особенно часто поломки в таких ситуациях наблюдаются у центробежной техники.
Также установка погружного насоса в колодец должна быть проведена так, чтобы аппарат был подвешен на трос, а не на шланг или питающий кабель. В первый может сорваться, а при нарушении второго ломается техника, происходит замыкание с различными последствиями. Поэтому они должны быть без натяжения.
Насосная станция в частном доме: для колодцев и скважин
Коротко о главном
Насосы по типу установки различаются на два типа: погружные и поверхностные.
По принципу действия бывают вибрационные и центробежные модели, к последним также относится дренажный насос.
Поверхностные образцы должны устанавливаться над водной гладью, так как попадание воды на рабочий механизм здесь недопустим.
Глубина погружения насоса, это. Метод применения динамической характеристики скважины
Динамическая величина нестабильная. Отталкиваясь от условия использования источника, показатель будет постоянно изменяться. При откачке объем уменьшается
Для вычисления оптимальной глубины погружения глубинного насоса рекомендуется за основу брать динамическую характеристику. Эта величина отражает расстояние между поверхностью зеркала воды, в которую опущена водоносная труба, и поверхностью почвы. Уровень воды при этом подсчитывается с включенным оборудованием и в период с максимальным потреблением воды (как правило, это летние месяцы).
Проще вычислить оптимальную глубину, если в техническом паспорте скважины указаны еще величины статического уровня и дебита источника.
Дебит источника – это его производительность: какой объем воды она способна восполнять за единицу времени. Если мощность глубинного насоса превышает дебит скважины, последняя в конечном итоге просто высохнет.
Существует много сторонников, как придонного монтажа глубинного насоса, так и его установки в верхней части обсадной трубы. Каждый из этих видов имеет достоинства и недостатки, поэтому перед принятием решения следует внимательно с ними ознакомиться. Желательно также брать во внимание стандартные советы и рекомендации:
- При покупке глубинного насоса важно анализировать и сопоставлять производительность оборудования с дебетом источника.
- Прежде чем приступать к монтажу водяного агрегата, важно ознакомиться с его техническими и эксплуатационными характеристиками.
- Оборудование рекомендуется не ставить на дно скважины, поскольку оно быстро забьется илом, песком и мелкими водорослями. Устройство лучше устанавливать на специальный поддон, который обезопасит от забивания трубопровода и хорошо отразится на качестве колодезной воды.
- Если глубинный насос требуется устанавливать над зеркалом воды, скважину рекомендуется дополнительно оснащать датчиком «сухого хода» — поплавка, который обеспечит своевременное включение и отключение оборудования в зависимости от уровня воды в скважине или же сразу приобретать модификации, оснащенные специальными датчиками.
Правильно вычисленная глубина погружения насоса в скважине благоприятно отразится на качестве воды и эксплуатационном сроке всей системы водоснабжения.
При покупке лучше воздержаться от моделей вибрационного типа, которые отрицательно сказываются на состоянии обсадной трубы, а также поднимают со дна все твердые частицы, водоросли и прочий мусор.
На какую глубину опускать заборную трубу в скважину. Требования к обсадке
Ответ на вопрос, что такое обсадная труба для скважины, следует из ее назначения. После проведения бурения скважинная шахта нуждается в укреплении стенок и формировании прямолинейного канала для возможности опускания в источник глубинного электронасоса. Для этого формируют обсадную колонну из различного вида труб, соединяя их резьбой, сваркой, муфтами.
Основные требования к скважинным колоннам и соответственно трубам:
- Жесткость и прочность. Глубина бытовых скважин при заборе воды из артезианских источников достигает 200 м. При таких расстояниях стенки трубы в придонной области испытывают значительное давление грунта. Поэтому трубная оболочка должна выдерживать это давление без повреждения стенок или изменения формы сечения.
- Герметичность стыков. Так как колонна собирается из трубных фрагментов, при монтаже необходимо обеспечить их герметичное соединение. В противном случае произойдет утечка воды из скважинного канала за пределы колонны. Это повлечет образование плавунов и проникновение грязи в шахту.
- Экологичность. Подавляющее большинство бытовых скважин применяют для питьевого водообеспечения. Трубный материал не должен оказывать на воду вредное воздействие, изменяя ее химсостав.
- Химическая инертность. В период всего срока эксплуатации обсадная труба находится в водной и агрессивной среде почвы. Поэтому важно, чтобы материал труб был химически нейтрален во избежание его ускоренного разрушения.
- Температурная стойкость. Верхний участок обсадной колонны приблизительно с глубин менее 2 м от уровня земли попадает в зону воздействия внешней окружающей среды. Ее наружная температура, если брать районы экстремальными климатическими условиями, может изменяться от — 50 °С до + 40 °С. Материал трубы не должен менять своих физических и химических свойств в данном температурном диапазоне.
- Высокий эксплуатационный срок. Долговечность скважин напрямую зависит от их вида. Если источник на песке может эксплуатироваться в среднем около 5 лет, то срок службы артезианки доходит до 50 лет. Поэтому важно, чтобы обсадка артезианского источника могла простоять без разрушения оболочки весь этот период.
Глубина погружения насоса Водолей. Как правильно выбрать насос для скважины Водолей
Выбор и установка скважинного насоса Водолей должны учитывать характеристики скважины (ее дебит должен обеспечивать нужный объем водозабора) и расстояние до источника потребления воды, подбор устройства с нужными параметрами рассмотрим на следующем примере.
Необходимо обеспечить водой семью из 3 человек, расстояние до дома равно 30 м., максимальное расстояние до водного зеркала в скважине (динамический уровень воды, определяется при работающем электронасосе) составляет 20 м.
Решая, как определить потребление воды семьей из трех человек, можно воспользоваться усредненными данными, в большинстве случаев оно составляет 1,8 м. куб./ч.
Чтобы определить напор воды, необходимо суммировать длину вертикального и горизонтального участков с учетом потерь, а также рабочее давление в системе, переведенное в метры. Если напорный трубопровод имеет диаметр 1 дюйм, метр вертикального водяного столба приравнивают к 10 м горизонтального участка, общие потери в линии берут равными 20% (при расчетах напор в трубах умножаем на 1,2). Электронасос опускают на 2 метра ниже динамического уровня, для корректной работы автоматики в системе управления требуется создание в линии максимального давления около 3 бар., что соответствует 30 метрам вертикального водяного столба. В итоге получаем следующую формулу для расчета общего напора H в метрах вертикального столба:
Н = (22 + 30/10) х 1,2 + 30 = 60 метров.
Для выбора подходящей модели электронасоса используются графики напорных характеристик, из которых видно, указанной подаче в 1,8 м. куб./ч. и номинальному напору 60 м соответствует модель БЦПЭ 0,5 63У.
Как правильно опустить насос в скважину. Установка насоса в скважину
Когда конструкция собрана, начинается самое сложное – это монтаж в скважину. Прежде чем засунуть насос в обсадную трубу на него одевается защита, в виде кольца.
Опускать насос в скважину необходимо аккуратно и медленно. Так как насос весит достаточно много, эту работу необходимо выполнять нескольким людям.
Один отпускает страховочный трос, а остальные удерживают насос. Страховочный трос должен быть из нержавеющей стали, т.к. только данный металл сможет находиться долгое время в вое без появления коррозий.
Если вдруг при погружении насоса появилось какое-то препятствие, то, не совершая резких движений, попробуйте его обойти или вправо или влево.
Как правило, до начала погружения насоса проводится проверка скважины на наличие непредвиденных участков. 
Насос крепится на той высоте, которая Вам необходима, при условии, что она совпадает с техническими возможностями оборудования. Плюс насос должен полностью находиться в воде, но не должен доставать дна скважины.
Самое удачно расстояние до дна составляет два метра. Без учета таких особенностей все это может привести к быстрой поломке насоса из-за попадания мельчайших частиц, а также работы вхолостую.
В конце необходимо убедиться, что именно трос держит насос, а не труба. После этого трос прикрепляется к кронштейну.
Водоподающую трубу соединяем с насосом с одной стороны, а другим концом подсоединяем с накопительным баком.
В последнюю очередь насос подключается к электрическому питанию. При этом необходимо использовать специальный электрический кабель.
Место соединения с силовым кабелем должно быть закрыто термоусадочной муфтой. Если в доме зафиксированы скачки питания, то нужно установить генератор напряжения. Иначе, частые скачки могут вывести из строя насос.
При монтаже глубинного насоса необходимо его испытать и установить сколько расходуется воды за одну единицу времени и сколько потребляется электрической энергии. Заводские характеристики, указанные в паспорте насоса не всегда соответствуют действительности.
Манометром определяется рабочее давление в водопроводе. После выявленных значений Вы сможете определить точку работы глубинного насоса.
Если Вы хотите произвести монтаж глубинного насоса своими руками, то в сети интернет находится большое количество
При неправильном монтаже возникает вероятность быстрой поломки скважинного насоса. 
Одним из примеров, может быть насос, который находится не на своей рабочей глубине. Вместо 30 метров, его эксплуатировали на 50.
При таки параметрах такой насос не сможет поднимать воду, насос будет работать «впустую», без настроенного рабочего давления воды.
Установка насоса Водолей в скважину. Как правильно выбрать насос для колодца
Для правильного выбора насоса необходимо любому пользователю собрать некоторые технические данные, которые будут гарантировать, что насос будет подобран специалистами верно и выдаст требуемые параметры.
- Обязательно знать дебит скважины, то есть, какая часть воды поступит в скважину за определенное время. Если дебит будет отрицательным, значит насос успеет выкачать воду быстрее, чем скважина вновь наполнится водой. А работа насоса всухую, как было сказано выше, первый путь к поломке насоса.
- Проверка диаметра и качества обсадной трубы скважины: диаметр должен быть не менее рекомендуемого: 120 мм для насосов БЦПЭ и 100 мм для БЦПЭУ.
- Определить ориентировочный требуемый напор насоса: • суммировать в метрах все перепады высот напорного трубопровода от насоса до самой верхней водоразборной точки, • суммировать все горизонтальные участки трубопроводов, при этом потеря напора будет составлять 1 м на 5 – 10 метров трубы; • избыточный напор на излив в верхней точке водоразбора — 25 метров; • потери в местных сопротивлениях трубопровода (в углах, тройниках, поворотах), избыточное давление в случае установки гидроаккумулятора и пр. — данные параметры можно определить вместе со специалистами при покупке насоса, предварительно составив схему планируемой станции водоснабжения.
- Определить требуемый расход воды из учета количества точек водоразбора: душевая лейка 0,2 л/с, умывальник 0,12 л/с, мойка 0,12 л/с, кран для полива 0,3 л/с. В жилых домах, где одновременно всеми приборами не пользуются, можно применить коэффициент загрузки 0,7.
На какую глубину можно опускать насос малыш. Руководство по эксплуатации электронасосов Малыш, Малыш-М, Малыш-3 (БВ0,12-40, БВ0,12-20. 2014 15:59
Электронасосы
Руководство по эксплуатации 70ТНП.000.000 РЭ
Уважаемый покупатель!
Если у Вас небольшой сельский дом или дача, небольшой приусадебный участок, то Вы сделали правильный выбор, купив один из самых неприхотливых и экономичных насосов.
Перед началом эксплуатации внимательно ознакомьтесь с настоящим руководством по эксплуатации.
Особое внимание обратите на предложения, выделенные крупным шрифтом.
В Н И М А Н И Е !
ПРИ ПОВЫШЕНИИ В ЭЛЕКТРОСЕТИ НАПРЯЖЕНИЯ СВЫШЕ ДОПУСТИМОГО НАСОС НАЧИНАЕТ ИЗДАВАТЬ РЕЗКИЙ МЕТАЛ- ЛИЧЕСКИЙ СТУК.
В ЭТОМ СЛУЧАЕ СЛЕДУЕТ ОТКЛЮЧИТЬ НАСОС ИЛИ ПРИНЯТЬ МЕРЫ К СНИЖЕНИЮ НАПРЯЖЕНИЯ.
К сведению торгующих организаций и продавцов:
- Предприятие гарантирует работоспособность насоса без проверки.
- При продаже насоса разрешается кратковременное включение его без воды в сеть на время не более двух секунд.
- ОПИСАНИЕИ РАБОТА
Назначение
Электронасосы бытовые вибрационные (далее насос) БВ 0,12-40 «Малыш» ,
«Малыш-М» предназначены для подачи воды из шахтных колодцев и скважин с внутренним диаметром более 100 мм, электронасосы БВ 0,12-20 «Малыш-3» - из шахтных колодцев и скважин с внутренним диаметром более 80 мм, а также из открытых водоемов температурой до 35 °С.
Насос может использоваться для полива приусадебных участков, садов, огородов.
Вода не должна содержать агрессивных примесей. Массовая доля механических примесей не более 0,01 %.
Насос, кроме этого, способен перекачивать воду на большие расстояния го- ризонтально (свыше 100 м), т.е. подавать воду из водоемов, расположенных на значительном расстоянии от мест использования воды.
Насос выпускается в исполнении:
- с нижним забором воды под торговым наименованием «Малыш», «Малыш» (п).
Насосы с термозащитой маркируются буквой «К» рядом с вводом шнура питания.
- с верхним забором воды под торговым наименованием «Малыш-М», «Малыш-М» (п), «Малыш-3».
Буква (п) в обозначении определяет материал проточной части- пластмасса.
Класс защиты от поражения электрическим током I или II. Максимальная рабочая глубина погружения насоса – 3 м.
Допускается увеличение глубины погружения, например при малодебитной скважине.
Степень защиты IPX8.
На насосы «Малыш» и «Малыш-М» Сертификат соответствия № ТС RU C-RU.АЯ45.В.00019. Действителен по 26.06.2018 г. и
Сертификат соответствия № ТС RU C-RU.АЯ45.В.00011. Действителен по 08.06.2015 г.
Выдан ОСП НП «Сертификационный Центр НАСТХОЛ».
На насос «Малыш-3»
Сертификат соответствия № ТС RU C-RU.АЯ45.В.00019. Действителен по 26.06.2018 г.
Выдан ОСП НП «Сертификационный Центр НАСТХОЛ».