Как проложить канализационные трубы в частном доме. Виды канализационных труб и их особенности
- Как проложить канализационные трубы в частном доме. Виды канализационных труб и их особенности
- Наружная канализация в частном доме. Что из себя представляет наружная канализация?
- Как сделать канализацию в частном доме?
- Схема канализации в одноэтажном частном доме. Какую канализацию лучше сделать в частном доме
Как проложить канализационные трубы в частном доме. Виды канализационных труб и их особенности
Канализационные трубы, предназначенные для прокладки в земле, должны отвечать следующим требованиям:
- Иметь гладкие внутренние поверхности, чтобы к ним не цеплялся мелкий мусор. Он может скопиться в одном месте и образовать пробку.
- Быть прочными, способными выдержать нагрузку грунта, уложенного поверх трубопровода.
- Обладать устойчивостью к воздействию агрессивных сред.

Таким требованиям соответствуют канализационные трубы из нескольких материалов:
- Чугун. Чугунные канализационные коммуникации имеют огромный срок службы и способны выдерживать большие нагрузки. Однако из-за шероховатой внутренней поверхности очень быстро обрастают водным камнем. Много хлопот доставляет и сложная технология герметизации стыков. К тому же они хрупкие и тяжелые, поэтому их трудно транспортировать, прокладка коммуникаций в земле будет затруднена.
- Черная сталь. Это прочные и недорогие канализационные трубы, но быстро корродирующие в земле.
- Керамика. Изготавливаются из глины по технологии экструзии с последующим обжигом. За счет покрытия глазурью керамические трубы обладают идеальной гладкостью внутренних стенок, что позволяет им не зарастать отложениями длительное время. Они не подвержены коррозии, стойкие к воздействию агрессивных веществ, но неустойчивы к ударным нагрузкам, а также слишком дорогие и тяжелые для прокладки в частном доме.
- Железобетон. Очень прочные изделия, обладающие биологической и химической стойкостью. Однако из-за большого веса и проблем с монтажом становятся малопривлекательными для прокладки канализационных систем в земле.
- Асбоцемент. К преимуществам асбоцементных канализационных труб можно отнести высокую прочность, инертность к химическим реагентам, отсутствие коррозии, отличные теплоизоляционные свойства, небольшой вес и низкую цену. К недостаткам — низкую стойкость к ударным нагрузкам.
- Полиэтилен. Это недорогие канализационные трубы с высокой пропускной способностью. Они легки в монтаже и транспортировке, устойчивы к химикатам, газовой коррозии, долговечны. Технология выпуска подразумевает варианты с гладкой или гофрированной наружной поверхностью, коммуникации применяются для прокладки в земле на глубину до 15 метров, выдерживают рабочую температуру до 50 °С. Хранить полиэтиленовые трубы можно только в местах, защищенных от попадания прямых солнечных лучей.
- Полипропилен. Канализационные трубы из полипропилена могут выдерживать нагрев до 80 °С, обладают гладкими внутренними стенками, используются в основном для прокладки внутренней разводки в квартирах. Для устройства наружных магистралей в земле такие материалы редко используются ввиду малой жесткости и подверженности деформации.
- Поливинилхлорид. Трубы ПВХ применяются для прокладки трубопроводов как самотечных, так и напорных канализационных систем, бывают гладкостенными и гофрированными, отличаются высокой стойкостью к барическим нагрузкам, агрессивным средам и механическим воздействиям, диэлектрическими свойствами. При прокладке в земле трубы ПВХ соединяются раструбным способом. Такая технология соединения не требует использования специального оборудования, что снижает общую стоимость системы. Температурные ограничения для эксплуатации труб ПВХ составляют -10…+65 ºС.
Наружная канализация в частном доме. Что из себя представляет наружная канализация?
Когда нужна и где используется?
Наружная канализация — это система отвода стоков, расположенная не внутри, а снаружи здания. Она отвечает за доставку стоков к очистным сооружениям или за пределы населенного пункта.
Как работает: устройство и принцип действия
Наружная канализация состоит из нескольких важных элементов.
- Трубы различной длины и сечения. Они могут быть изготовлены из разных материалов. Служат для доставки стоков к очистным сооружениям или к автономным емкостям.
- Колодцы. Обязательный элемент, без которого невозможно будет почистить засорившиеся трубы, сделать дренаж, повороты и укладку труб с перепадом высот.
- Очистительные сооружения. К ним относятся выгребные ямы, септик, станции биологической очистки.
- Насос. Используется в напорной системе для перекачки нечистот от дома к очистному сооружению.
Существующие виды: особенности, характеристики, плюсы и минусы по сравнению с видами внутренней канализации
Особенность современной канализационной системы такова, что как без внутренней, так и без наружной канализации обойтись нельзя.
Наружная система имеет большой плюс в том, что реже засоряется по сравнению с внутренней, так как имеет трубопровод большего диаметра. Очистные сооружения находятся только снаружи.
Отличия наружной и внутренней канализации:
- Все элементы наружной канализации находятся снаружи, а внутренней — внутри здания.
- Для монтажа используются трубы разного типа. Наружное устройство требует установки более прочных труб широкого диаметра и хорошей изоляции, чтобы в холодное время года они не промерзали.
- Протяженность труб снаружи дома зависит от площади участка и удаленности очистных сооружений. Внутри дома важны его площадь и количество источников стоков.
- Коллекторы
- дренажные,
- ливневые,
- бытовые.
- ЛОС
- Централизованные очистные сооружения
- Станция биоочистки
- Септик
- механический,
- биологический,
Коллектор в частном или загородном доме — это система труб, отвечающих за отвод нечистот. Заканчивается система выгребной ямой, септиком или станцией очистки.
Коллекторы могут быть:
Выбор очистного сооружения зависит от количества проживающих людей, почвы, режима использования и т.п.
Локальные очистные сооружения (ЛОС) существуют отдельно от централизованной канализации, поэтому их часто называют автономной канализацией. ЛОС по назначению могут быть как хозяйственно-бытовыми, так и промышленными.
Главная задача подобных сооружений — глубокая очистка отходов для безопасности людей и окружающей природы.
К ЛОС относятся септики, станции биоочистки, фильтры.
Города и поселки имеют централизованные системы очистки, к которым подключены все городские здания. Стоки собираются в канализацию, проходят высокоэффективную очистку, после чего осадок используется в других целях, а вода проходит систему обеззараживания.
В небольших объемах такие методы не применяются. Это невыгодно и дорого, да и некоторое оборудование не может работать на маленьких объемах.
Биологическая очистка — наиболее эффективный и дорогой метод очистки. С помощью аэробных микроорганизмов и воздуха отходы перерабатываются в удобрение — активный ил.
Отходы отводятся на поля фильтрации или в сточные канавы. Для работы биостанций обязательно нужна электрическая энергия.
Септик — это установка, в которой используется один из методов очистки:
Такую установку можно купить готовую или сделать самостоятельно. Главное — сделать правильные расчеты и проектирование всей конструкции.
Как сделать канализацию в частном доме?
Обеспечение комфорта и качественной жизни в загородном доме является важным моментом для любого владельца такой постройки. Одним из факторов, которые позволяют обеспечить комфортную жизнь, является удобство оттока использованной воды и продуктов жизнедеятельности. Правильно рассчитанная на стадии проектирования и впоследствии правильно построенная канализация в частном доме будет залогом длительной эксплуатации, при которой не возникнет никаких проблем. Подобную конструкцию можно создать своими руками, если подойти к вопросу с максимальной ответственностью.

Основные требования
Во избежание каких-либо проблем в процессе создания канализации в собственном доме, лучше всего максимально следовать в данном процессе всем требованиям и стандартам, что расписаны в нормативной документации – СНиП. В этом случае все точно будет функционировать безотказно на протяжении длительного периода времени.
В какой угодно постройке, где проложен водопровод и есть забор воды, должна быть выполнена система, которая будет выводить стоковые массы. Механизмы водоотвода должны быть созданы и на участках. В целом такая сеть сможет не только обеспечить комфортную жизнь, но и не навредит экологии, а также существенно увеличит время пользования зданием.
Обычно канализация состоит из следующих систем:
- ливневой, которая отводит воду;
- наружной;
- внутренней.
Их необходимо проложить так, чтобы были соблюдены различные строительные сантребования к канализации в собственном доме.
Среди таких требований можно назвать:
- обеспечение нормального очищения;
- отсутствие риска в вопросе затопления постройки;
- обеспечение необходимого объема сточных вод;
- герметичное накапливание и транспортировка сточных вод.
Если говорить о требованиях к внутренним системам такого типа, то состоять они должных из следующих элементов:
- стояка, к которому прикрепляются все трубы;
- разведения труб, что осуществляет перекачивание сточных вод в направлении стояка;
- сантехприборов для водоотвода.


По нормам в механизме, часть которого расположена в постройке, должно быть достаточно места для свободного транспортирования жидкости от мест, где осуществляется слив до труб, которые осуществляют вывод за пределы постройки. При прокладывании канализации внутри постройки используют трубы из чугуна либо каких-то полимеров. На выходе размер такой трубы должен составлять 11 сантиметров. Естественно, что в данном механизме должна быть еще и вентиляция. Обычно ее проводят через стояк. Над каждым элементом делают вытяжное место, выходящее на крышу.


Если говорить о проекте наружных систем, то его создание осуществляется с учетом требований, прописанных в СНиП за номером 2.04.03-85.
По этому нормативному документу следует учесть следующие моменты:
- в механизме должны устанавливаться колодцы для обслуживания и очищения;
- для вычищения стоков нужна установка с применением биометодов;
- если речь идет о самотечной сети, то применяют полимерные, керамические или асбестоцементные трубы;
- трубы, которые размещены за границами постройки, должны быть в диаметре около пятнадцати сантиметров и заложены на уровне десяти-двенадцати сантиметров;
- если в строении мало этажей, то можно скооперировать несколько домов в единую сеть;
- если нельзя устроить самотечную систему, то лучше сделать выбор в пользу напорной канализации.


Еще один важный момент – подбор конструкции. Это действительно важно при проектировании канализационной автономной сети.
Тут могут быть три варианта септиков, которые используются:
- аэротенки;
- накопительный септик;
- очистной.
Теперь скажем о них чуть подробнее. Аэротенки – новейшие решения с использованием нескольких очистительных методик. После применения подобного септика жидкость очищается почти до 100-процентного значения. Воду можно легко выводить в землю, водоем и применять для полива. Септик накопительной категории является улучшенным вариантом выгребной ямы, в которой очистка не осуществляется, а лишь собираются стоки. Когда септик наполняется до определенного уровня, появляется необходимость его очистки. Обычно это осуществляется при помощи специального ассенизаторского оборудования.
Если говорить об отличиях от выгребной ямы, то никакой фильтрации в грунт в этом случае не осуществляется. Это значит, что никакого вреда экологии не наносится. Но все же данный вид септика применяется в последние годы крайне нечасто по причине дороговизны стоимости услуг специальной ассенизаторской техники. Такой тип можно использовать лишь тогда, если в доме вы проживаете сравнительно нечасто.
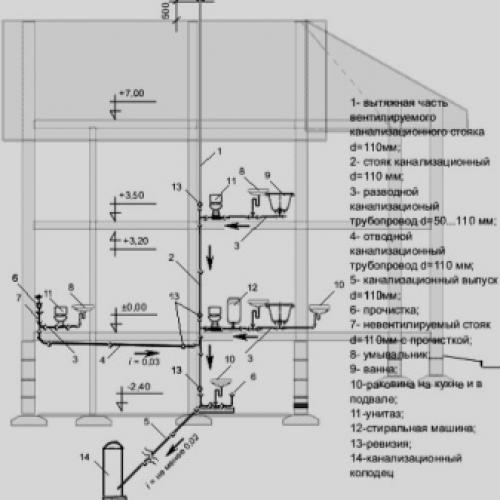
Схема канализации в одноэтажном частном доме. Какую канализацию лучше сделать в частном доме
Устройство канализации в частном доме состоит из разводки по помещениям и наружной сети. Внутри система может включать в себя один или несколько вертикальных стояков, к которым примыкают трубы с меньшим диаметром. По этим трубам, обязательно располагаемым с уклоном, сточная вода движется самотёком от точек расхода до места общего слива.
Устройство самотечной канализации в строящемся доме
Какие нюансы учесть при разводке труб
Попадая в стояк, вода под действием гравитации опускается вниз и поступает во внешний трубопровод большего диаметра, соединённый либо с центральной магистралью, либо с локальным накопительным или очистным сооружением.
При разработке схемы нужно учитывать несколько простых правил:
- Лучший вариант разводки для частного владения – это когда в схеме присутствует всего один стояк. А это возможно только тогда, когда санузел и кухня сконцентрированы в одной части дома и их разделяет только перегородка. Именно поэтому в квартирах эти помещения чаще всего располагаются рядом.
- К стояку идёт подводящая труба, к которой, как на фото снизу, подсоединяются все сантехнические приборы. Уклон труб диаметром до 80 мм должен составлять порядка 2 см на 1 м/п.
- Точки слива воды из приборов должны располагаться так, чтобы унитаз находился к стояку ближе всего – в этом случае, место его присоединения к отводной трубе окажется в самой низкой точке. Это важно, так как в противном случае стоки из унитаза могут попадать в отверстия для слива из других приборов.
Стояк в санузле
Совет: на трубе, идущей от посудомоечной машины и кухонной раковины, желательно установить жироуловитель.
Схема с жироуловителем
- По возможности, нужно избегать лишних поворотов трубопровода, так как именно в этих местах чаще всего и случаются засоры. Но если без них не обойтись, поворот нужно сделать как можно более плавным. Так, чтобы получить прямой угол, используют либо 3 колена по 30, либо 2 по 45 градусов.
Колено в 45 градусов
На заметку: чтобы не огибать дом, выход трубопровода из него должен располагаться с той стороны, где находится автономное очистное сооружение или центральный трубопровод.
Ввод канализации в дом в непосредственной близости от септика
Какие материалы лучше использовать
Сегодня уже не только в частном строительстве, но и в многоэтажках, для сборки канализационных трубопроводов используют не тяжёлую чугунину, а лёгкий, прочный и недорогой пластик, стыки которого заделываются полимерным герметиком.
Ассортимент смазок и паст для канализационных труб велик
При соединении сливного отверстия санитарного прибора с отводной трубой, очень важно устраивать гидрозатворы, роль которых играют U-образные трубы. Постоянно находящаяся в их изгибе вода является препятствием для проникновения в помещение зловонных запахов из канализации.
Пример устройства гидрозатвора
Ниже приведены сечения труб (в миллиметрах) для монтажа ветвей разводки, в зависимости от вида санитарного оборудования:
- ванна, раковина и душевой слив, если труба общая – 50;
- если всё по отдельности – 40;
- биде — 30 или 40;
- унитаз – 100
Примечание: эти цифры актуальны при условии, что унитаз находится в 1 метре от стояка, а остальные точки слива – не дальше 3-х. Если эти расстояния больше, диаметр труб придётся увеличивать.
Для стояка, в который идёт не только вода из кухни, но и стоки из туалета, трубы берут диаметром 100 или 110 мм. Такое же сечение должно быть у любого стояка в. Если же в доме туалета нет, а только душ и кухонная мойка, трубы размером 50 мм для установки стояка вполне достаточно.